
Comentariul autorului:
Situl este localizat în partea de est a orașului Buzău, care este în plina dezvoltare prin abordarea de proiecte cu teme sustenabile. Situl este bordat pe doua laturi de doua artere principale ale orașului, dotate cu pietonale și facilități publice de tip cafenele, magazine, spații publice. Ca volumetrii prezente, situl este flancat puternic de două fronturi de locuințe colective, în timp de alte doua fronturi raman deschise unul către oraș, iar altul către câmpurile agrare.
În prezent, situl si câmpurile agrare aparțin Stațiunii de cercetare și dezvoltare legumicolă Buzău, care este renumită pentru rezultatele excepționale în domeniu.
Proiectul urmarește să folosească activitatea principala a Stațiunii (cercetare si dezvoltare) și să creeze un nucleu sustenabil al orașului de agricultură urbană, loisir și alte activități sociale, economice si educationale.
Terenul se învecinează cu Parcul Tineretului, al doilea cel mai mare parc din oraș, cu campurile agrare, care formeaza țesutul urban natural in Est, și cu un țesut urban de locuințe individuale și colective, în Vest. Proiectul invită parcul sa traverseze terenul către țesutul urban construit, generând astfel ordine și o compoziție liniară pe sit, aducând natura mai aproape de oraș. Relația cu frontul de blocuri din N-E este ameliorată de zona de agricultură urbană. Tot pe latura aceasta se realizează accesele tehnice.
Partea de Sud a sitului comunică direct cu pietonalele existente și propuse și invită oamenii din două direcții principale ale orașului către piața agro-alimentară cu produse naturale crescute pe sit sau aduse.
Către strada Mesteacănului, în Vest, proiectul oferă un parc cu specii rare de copaci deja existenți pe sit, întreținuți de Stațiune, care are rolul de a extinde zona pietonală destinată străzii. Acest parc creează o legatură puternică oraș-sit-fond construit și ajută ca oamenii să ia parte vizual la activitățile întreprinse pe sit.
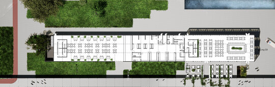
Centrul sitului cuprinde cele trei laboratoare principale ale Stațiunii, ele reprezintă "inima" întregului proiect. Cercetătorii își desfățoară activitatea și supraveghează oamenii care lucrează pe sit. În aceste laboratoare sunt multiple tehnici moderne de creștere a plantelor atât în interior cât și în exterior, cuprinse de Katherine Specht in "Urban agriculture of the feature" in tipologia de "Z Farming".
Partea dinspre Nord a proiectului cuprinde un restaurant pe baza conceptului "food-to-table", un campus pentru cercetători invitați și elevi de la școlile satelit și un lac de acumulare a apelor pluviale pentru atmosferă și irigații.
Se propun surse de energie regenerabilă, precum captarea de energie solară pe șarpantele dinspre S-E și S-V ale clădirilor, captarea de ape pluviale pentru irigații prin șarpantele concave, folosirea inteligentă a elementelor de umbrire pentru economia de energie, folosirea de materiale de construcție cu proprietăți termice bune și altele.
Pentru clădirile dimprejur, majoritatea locuințe colective cu calcane și acoperișuri terasate, se propune popularea calcanelor cu vegetație verticală pentru polenizatori și transformarea teraselor necirculabile în grădini. Astfel, clădirile vor beneficia diminuarea aportului termic in special pe timp de vară și de hrană sănătoasă în apropierea reședinței.