
Comentariul autorului:
Proiectul propus este dezvoltat de Villar Group și proiectat de Blue Projects. Villar Group este o firmă israeliană de investiții imobiliare, prezentă pe piață încă din anii '70.
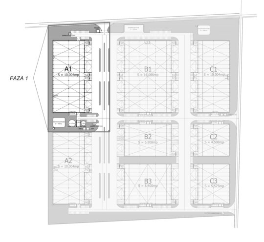
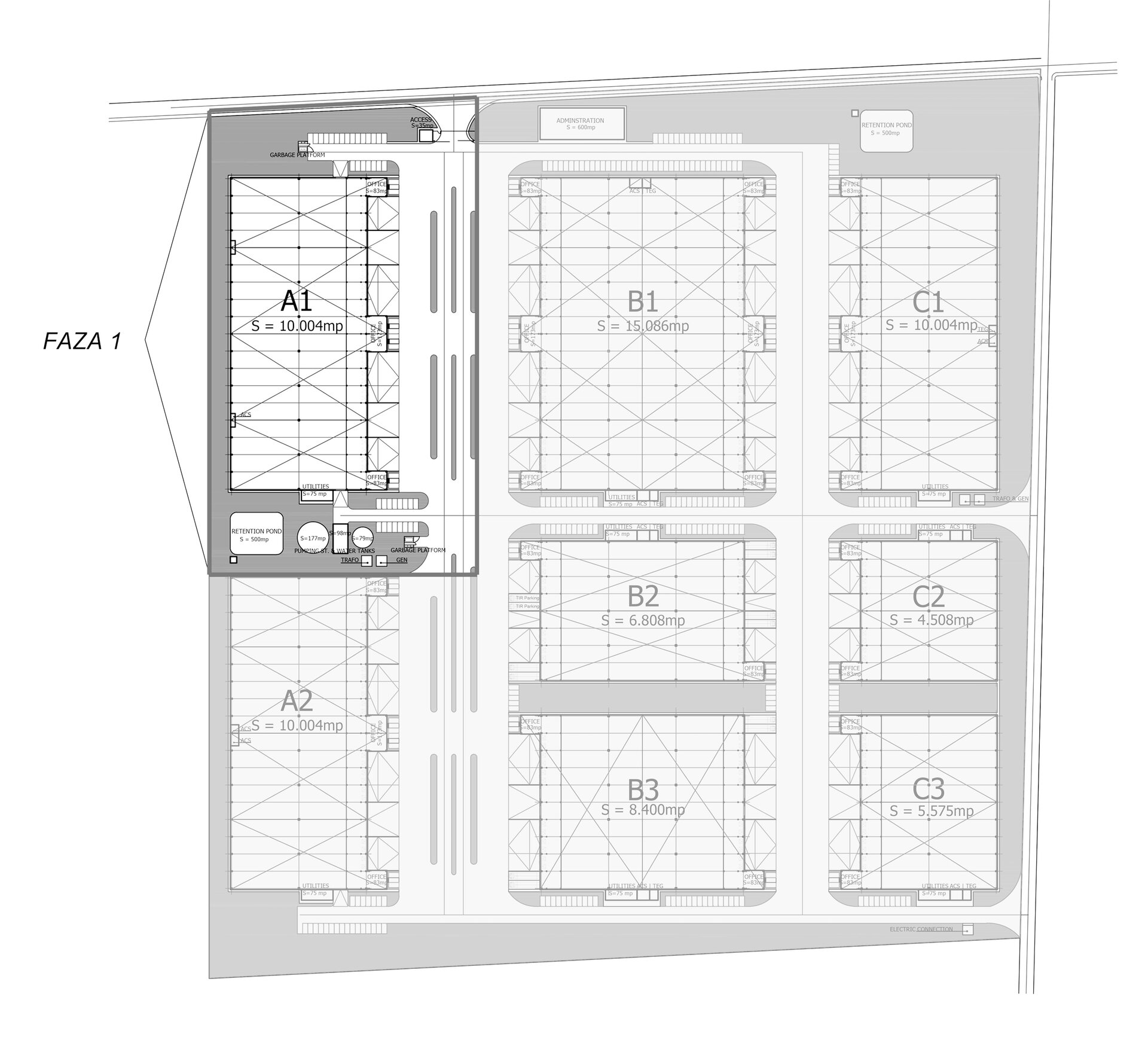
Villar Logistic Park Dragomirești, este un proiect imobiliar care are ca obiectiv principal închirierea de spații logistice pentru întreprinderi mici și mijlocii, iar la finalul lucrărilor va avea peste 80.000 mp de spații logistice închiriabile, alături de spații de birouri premium.
Deocamdată, această dezvoltare este planificată să fie construită în 5 faze până în 2028, Villar Dragomirești A1 fiind prima dintre aceste faze.
Locația pentru acest parc logistic este Dragomirești Vale, în apropierea autostrăzii A1.
În timpul fazei de concept pentru acest proiect, au fost convenite cu clientul o serie de criterii de proiectare obligatorii, care, atunci când vor fi implementate, vor crea unul dintre cele mai moderne, incluzive,unice, prietenoase cu utilizatorul si mediul, parcuri logistice din România.
Unicitatea dezvoltării este generată de 3 mari idei conceptuale: Asigurarea unui spațiu verde suficient pentru a avea un micro-climat plăcut, pentru a reduce căldura resimțită la nivel local și pentru a oferi o umbră amplă in tot parcul.
A doua linie de concept care a fost foarte importantă pentru a fi implementată și care face ca parcul logistic să fie unic în sine este grija care a fost acordată în proiectarea tuturor spațiilor cu gândul la accesibilitate, făcând din Parcul Villar Dragomirești primul parc logistic din România care este 100% accesibil persoanelor cu dizabilități, aceasta fiind una dintre valorile sale de bază. Al treilea factor determinant a fost reprezentat de valorile brandului si ce înseamnă acest lucru în ceea ce privește conceptul volumetric.
Fiecare clădire este proiectată pentru a avea unele elemente comune cu toate celelalte investiții pe care Villar Group le-a făcut în întreaga lume. Unul dintre aceste aspecte este reprezentat de copertina de deasupra docurilor. Pentru majoritatea clădirilor logistice care sunt dezvoltate în România, acest element arhitectural nu există, deoarece nu are un impact semnificativ asupra modului în care funcționează clădirea. În cazul Parcului Villar Dragomirești, copertina este unul dintre elementele arhitecturale de bază care a fost proiectat și care face ca această clădire să iasă în evidență față de restul clădirilor logistice din România.
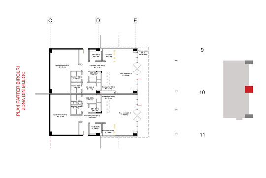
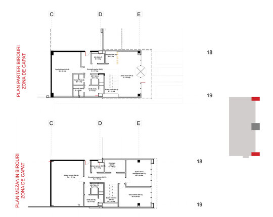
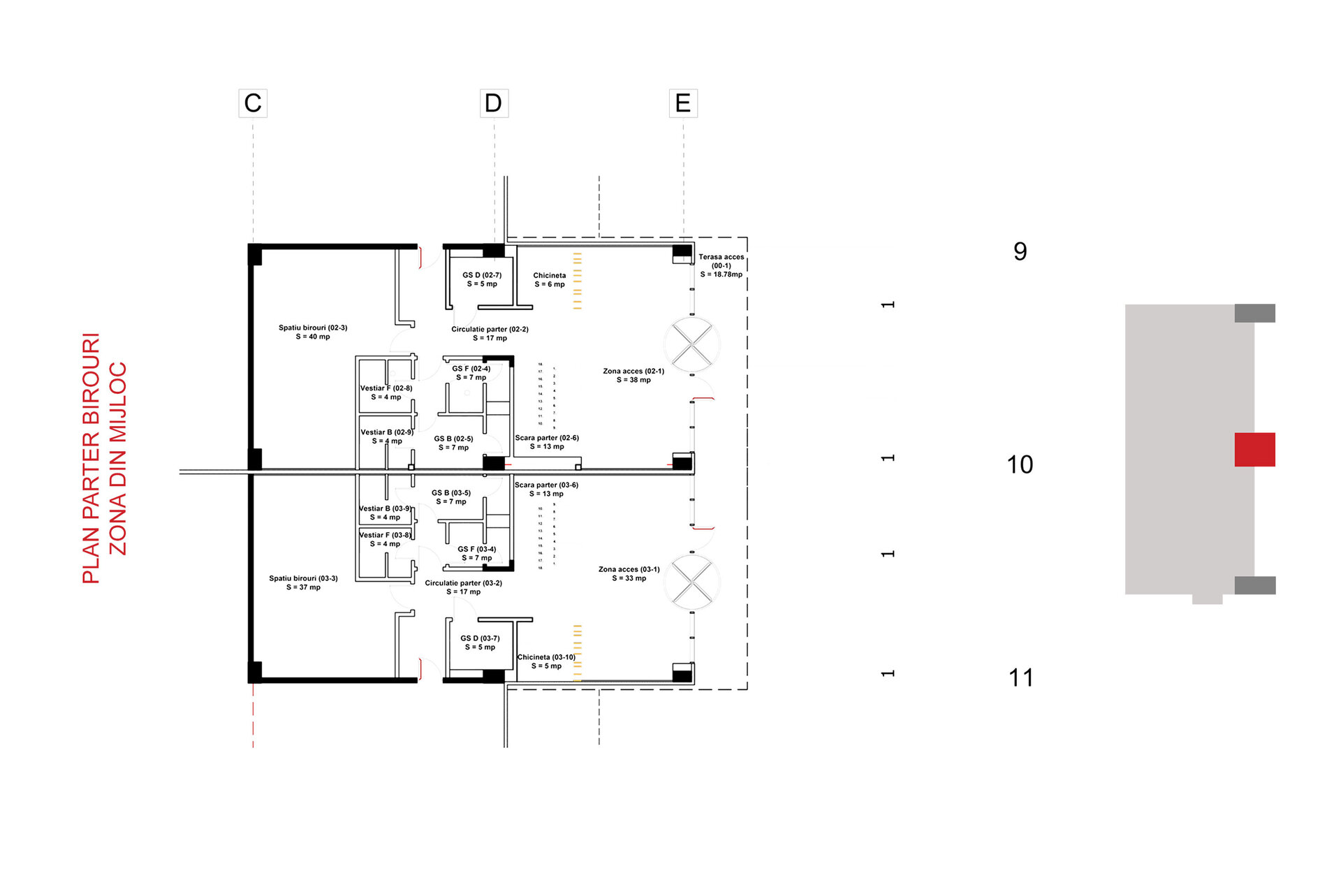
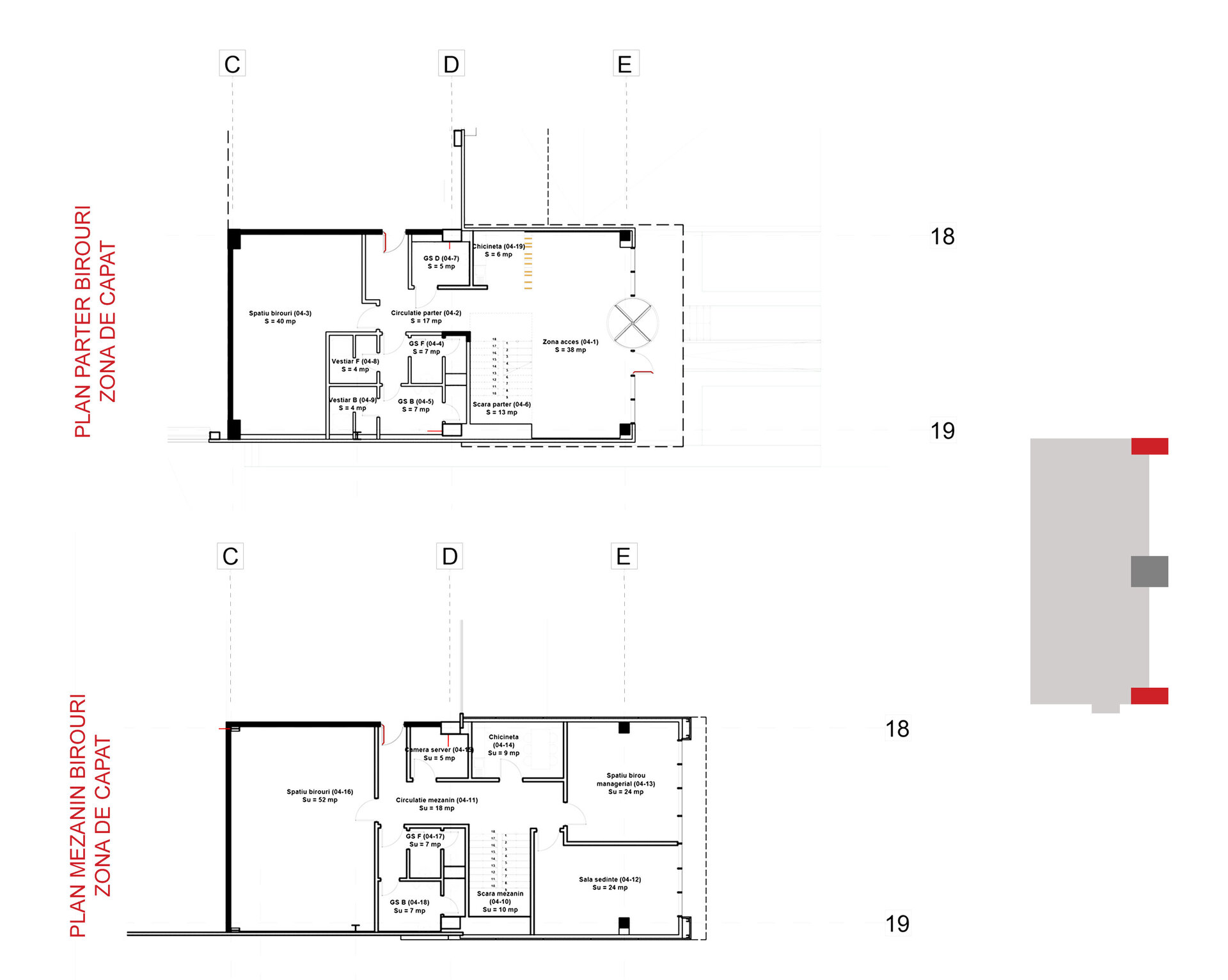
Volumetria clădirii este un alt aspect care face ca Villar Dragomiresti A1 să se deosebească de celelalte clădiri. Pentru acest ansamblu, unul dintre principalele elemente de design unic este reprezentat de faptul că toate spațiile de birouri ies în afara volumului principal de depozitare al clădirii. Acest fapt, împreună cu beneficiul de a avea un design unic pentru clădirea logistică, oferă o eficiență sporită în raportul birouri/spațiu de depozitare, maximizându-le pe ambele.
Volumul principal al clădirilor, grija pentru accesibilitate, spațiul verde și eficiența energetică nu sunt singurele elemente care fac din Parcul Villar Dragomirești un loc unic. Unele dintre cele mai impresionante aspecte se află în interiorul clădirii.
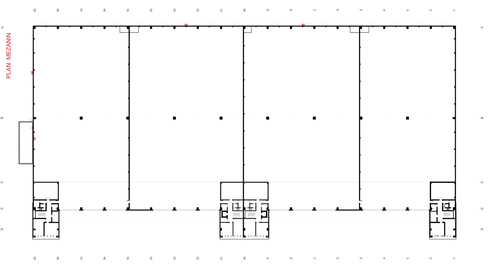
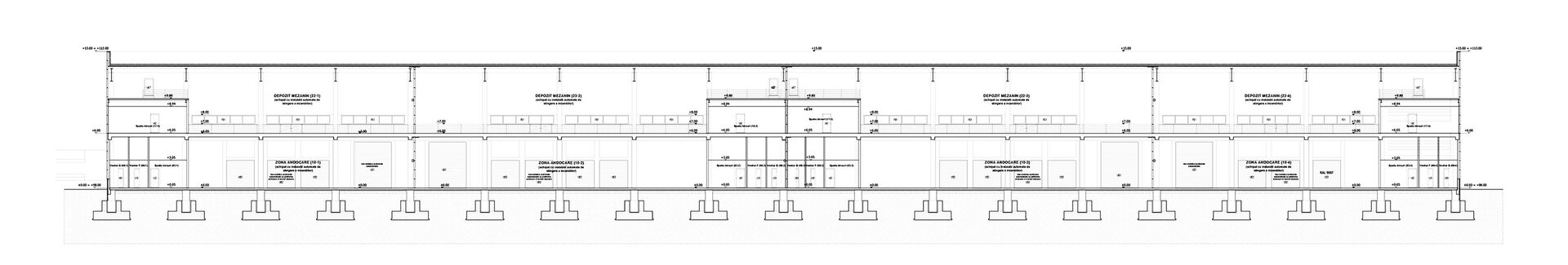
Mezaninul, reprezinta un concept nou pentru piața românească de logistică, și este folosit pentru depozitarea temporară a mărfurilor care se află pe drumul de intrare sau de ieșire din depozitul lung/mediu, economisind spațiu prețios în zona principală de depozitare.
Una dintre cele mai impresionante realizări de inginerie, proiectare și coordonare este modul în care am reușit să maximizăm înălțimea clădirii. Toate conductele și capetele de aspersoare sunt amplasate deasupra grinzilor principale, în spațiul dintre grinzi. Aceasta este o caracteristică unică pe piața clădirilor logistice din România și permite utilizatorului clădirii să maximizeze spațiul de depozitare pe axa verticală.
Ultimul aspect care diferențiază Villar Logistic Park Dragomirești de alte investiții similare este grija deosebită cu care au fost proiectate și executate toate finisajele, o atenție deosebită fiind acordată la orice îmbinare care avea mai multe finisaje, prin utilizarea unor profile speciale de aluminiu.
Parcul Villar Dragomirești este unul dintre cele mai inedite dezvoltări logistice care se desfășoară în prezent, iar când va fi finalizat va deveni unul dintre cele mai căutate hub-uri logistice de către întreprinderile mici și mijlocii.