
Comentariul autorului:
@Expo este situat pe Bulevardul Expozitiei, una dintre puținele zone de birouri aerisite din București, lângă Piața Presei Libere și la doar o scurtă plimbare de stația de metrou 1 Mai. Datorită locației sale strategice, complexul de afaceri este ușor accesibil din toate zonele orașului, oferind legături de transport excelente. Înconjurat de restaurante, bănci, facilități de wellness, mall-uri, hoteluri și având cel mai important centru expozițional chiar vizavi, @Expo oferă o experiență completă pentru chiriașii săi.
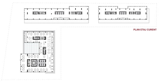
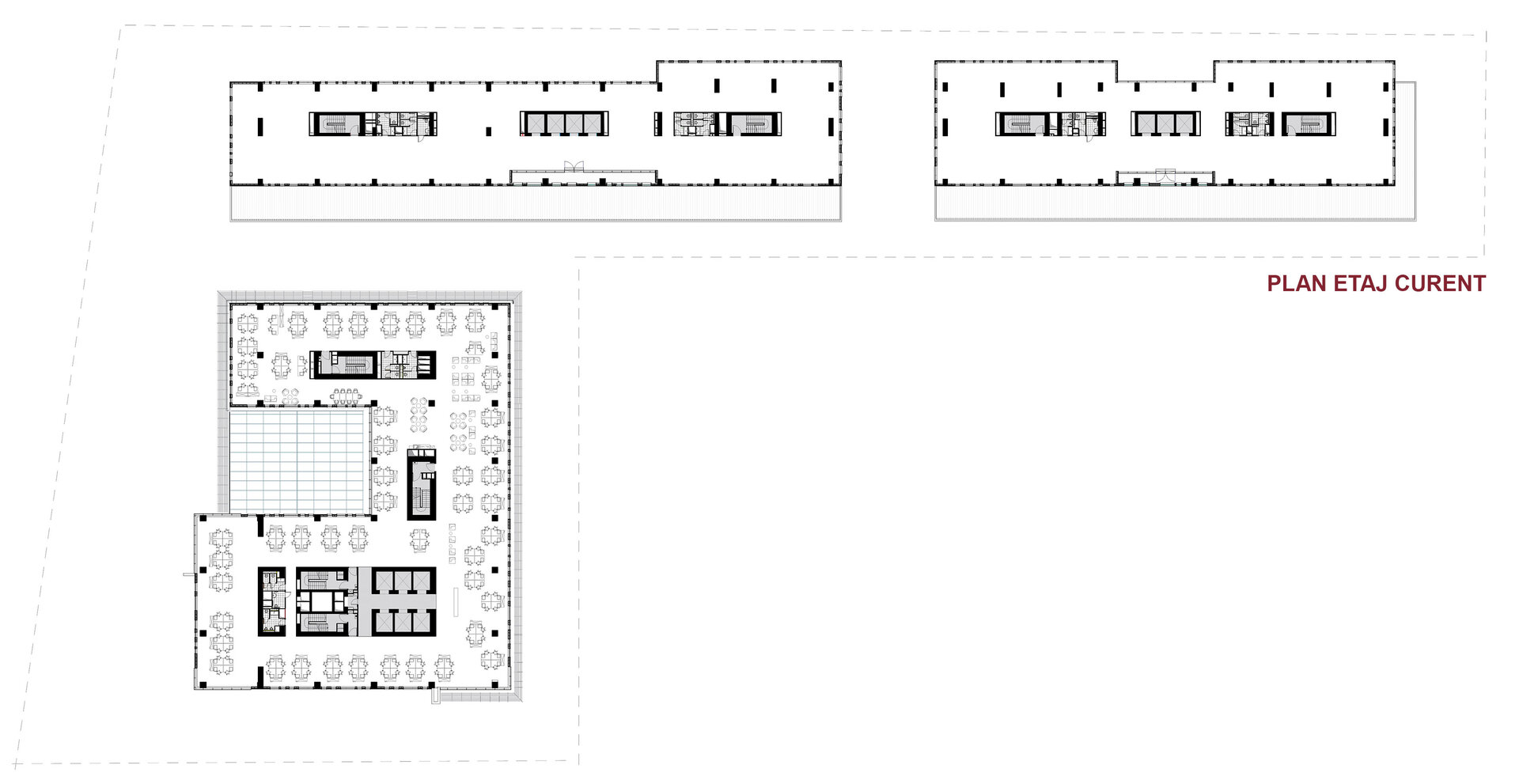
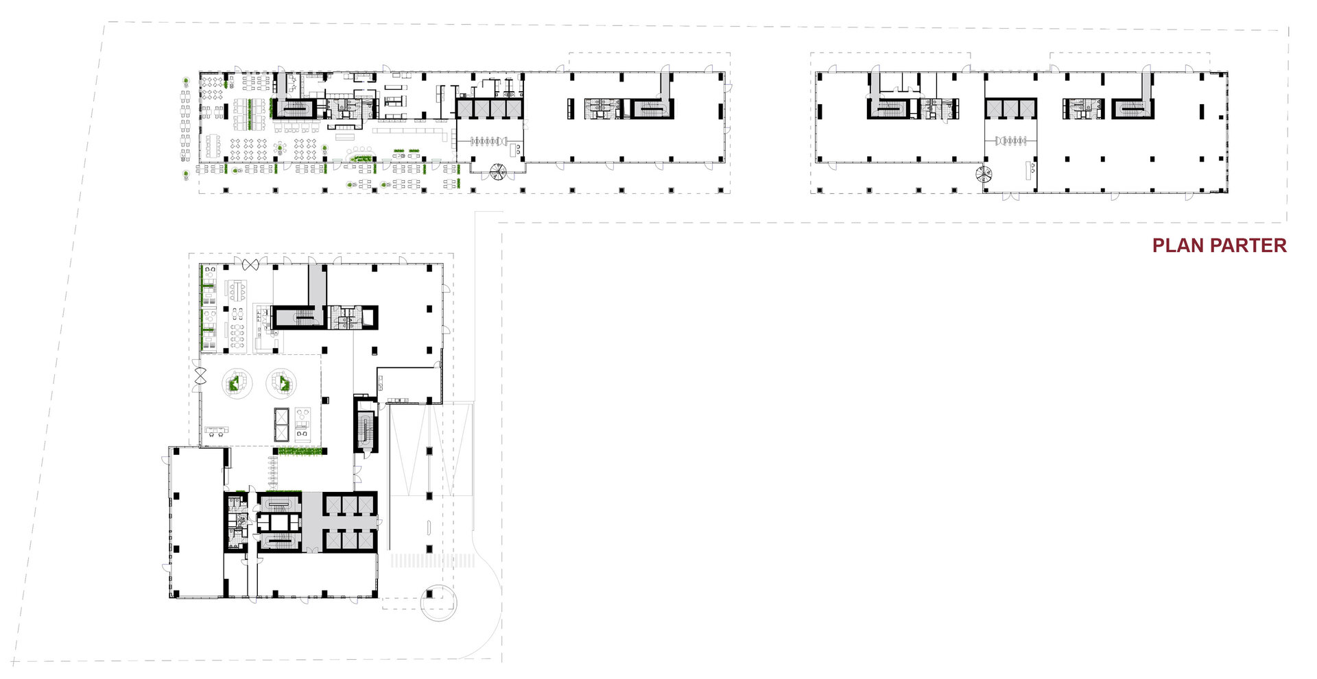
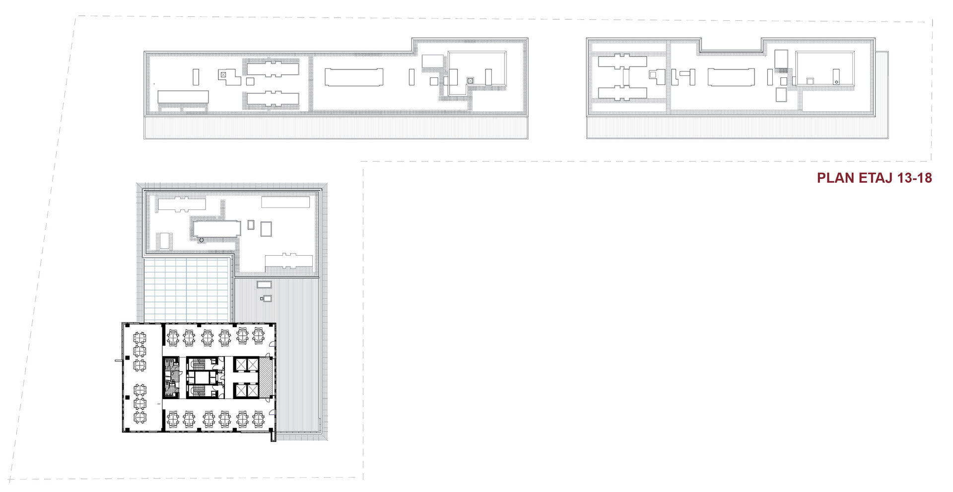
Acest complex modern cu trei clădiri, compus din două clădiri de birouri de înălțime medie și un turn, este situat în zona de nord-vest a capitalei și are o suprafață închiriabilă de aproape 50.000 mp. Dedicat companiilor care caută birouri de calitate și proiectate eficient, @Expo reprezintă o abordare proaspătă și nouă în peisajul clădirilor de birouri din oraș.
În zilele noastre, eficiența este esențială, așa că @Expo a fost proiectat cu atenție pentru a îndeplini cele mai exigente cerințe, oferind viitorilor chiriași tot ceea ce au nevoie pentru un spațiu de lucru productiv și de succes.
@Expo este orientat către chiriași, oferind caracteristici deosebite și beneficii multiple, cum ar fi zone de relaxare în aer liber, parcări pentru biciclete și încărcătoare de mașini electrice. În interior, clădirea dispune de corpuri de iluminat cu LED de înaltă eficiență amplasate în toate zonele de birouri, senzori de detectare a luminii și a mișcării pentru economisirea energiei, precum și o soluție BMS personalizată, concepută pentru @Expo.
- Centrul de afaceri @Expo este conform cu cele mai recente bune practici de eficiență energetică. În plus, proiectul este conceput pentru a obține atât un rating de certificare BREEAM "Excelent", cât și un certificat de performanță energetică de tip A.
- Învelișurile clădirilor sunt realizate din materiale compozite de înaltă calitate, asigurând eficiență energetică, confort și rezistență sporită
- Încălzirea și răcirea spațiilor de birouri se realizează cu plafoane radiante, concepute pentru a fi eficiente din punct de vedere energetic, aducând rapid toate spațiile la temperatura dorită.
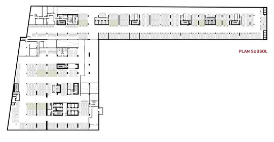
- Proiectul include 2 adăposturi de protecție civilă pentru întregul proiect, care adăpostesc în total 2/3 din capacitatea de cazare a clădirilor.
- Fiecare clădire este proiectată pentru a răspunde nevoilor individuale ale persoanelor cu dizabilități, fără a necesita asistență (acces, instalații de evacuare în caz de incendiu, funcționarea lifturilor și instalații sanitare).
- Apa de ploaie colectată în rezervorul de retenție va fi reutilizată printr-un sistem hidraulic dedicat pentru instalațiile sanitare și peisagistice
- Pereții mulați ai subsolului vor fi activați din punct de vedere termic, acționând astfel ca un schimbător de căldură gigant conectat la pompele de căldură, ceea ce reprezintă o soluție durabilă pentru producerea de energie termică sau de răcire instalată la fața locului.