
Comentariul autorului:
Ansamblul rezidențial Campeador City Timișoara, dezvoltat de Grupul Campeador, este localizat pe Calea Torontalului nr. 12 provizoriu, în apropierea aerodromului utilitar.
Prin tema de proiectare convenită între beneficiar și proiectant se cere proiectarea unui Ansamblul locuințe colective și spații comerciale, parcuri, alei de promenadă, locuri de joacă pentru copii, o grădiniță modernă, locuri de parcare subterane și supraterane.
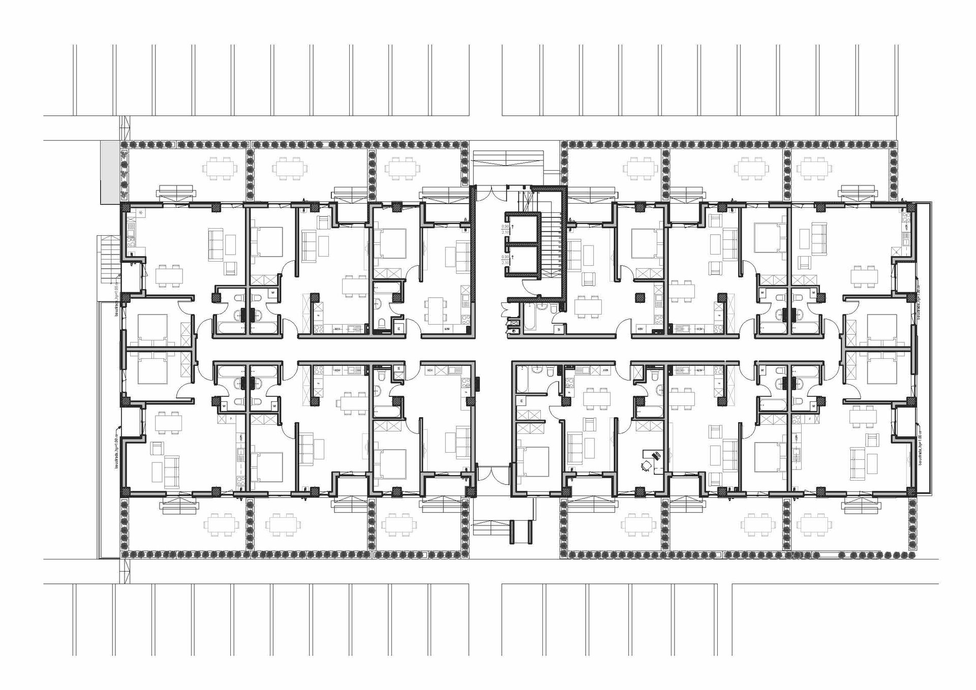
Ansamblul este compus din nouă clădiri și este dezvoltat în mai multe etape. Etapele finalizate și prezentate cuprind trei imobile de locuințe colective, cu un regim de înălțime subsol, parter, șase etaje și un etaj retras (S+P+6E+ER), cu un număr de încăperi bine dimensionate astfel încât să permită o locuire corespunzătoare într-un spațiu sporit și adaptarea funcțiunilor în conformitate cu necesitățile obiective ale viitorilor locatari.
Fiecare imobil va contine un număr de 95 de apartamente.
Soluția de compartimentare se bazează pe legislația în vigoare și pe necesitățile funcționale ale viitorilor cumpărători.