
Comentariul autorului:
Amplasamentul clădirilor este unul care articulează zona cu valoare arhitecturală și urbanistică semnificativă, conferită de juxtapunerea Vilei Minovici și Muzeului de Artă Apuseană cu ansamblul modernist format din Gara Regală Băneasa și Fântâna Miorița, cu zona dezvoltată recent la nord de Casa Presei Libere, compusă din clădiri de birouri de bună calitate. În acest context, inserția propusă a trebuit să răspundă ambelor vecinătăți tipologice, articulându-se atât cu scara ansamblului S-Park (situat către vest), cât și cu cea a fronturilor bine conturate ale scuarului dintre str. Tipografilor, str. Menuetului și str. Doctor Nicolae Minovici.
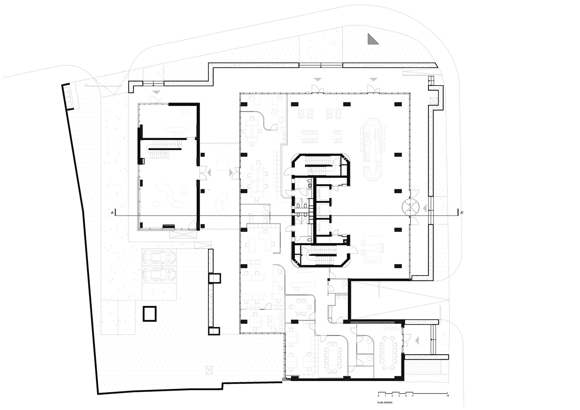
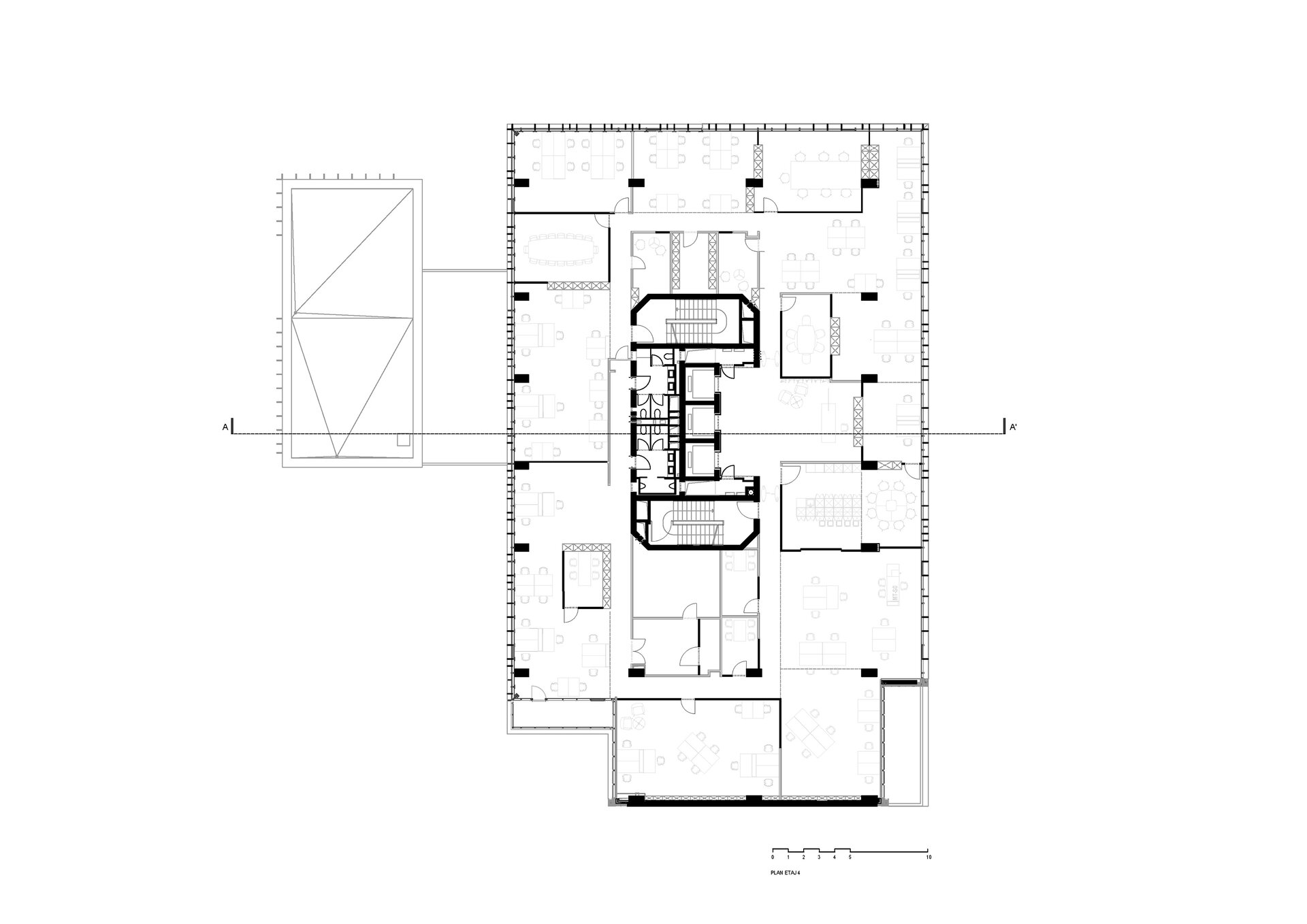
Ansamblul este format din două corpuri de clădire cu regimuri de înălțime diferite, Corp C1, regim de înălțime 4S+P+5E+et. 6 retras (h max = 26,00 m) și Corp C2, regim de înălțime S+P+2E (h max = 11,70 m).
Corpul C1 constituie volumul dominant al compoziției, orientat către scuarul din fața Gării Băneasa și aliniat cu frontul constituit de pe str. Menuetului. Destinația acestui corp este de parcare și spații tehnice (în subteran), respectiv birouri, servicii, alimentației publică, comerț și spații tehnice aferente acestora (în suprateran). Organizarea funcțională planimetrică a nivelurilor supraterane este clară și eficientă, cu un nod central de tip tub din beton armat, adăpostind două scări de evacuare, o grupare de ascensoare și unele spații tehnice sau anexă, și un platou deschis pentru birouri, cu libertate maximă de organizare în funcție de necesitățile specifice ale fiecărui utilizator. Corpul C2 este subordonat compozițional corpului C1 și articulat cu acesta prin câteva elemente de legătură, fiind aliniat la str. Tipografilor. El adăpostește spații tehnice (în subteran), respectiv spații expoziționale și de primire și birouri ale Uniunii Artiștilor Plastici (în suprateran). Parterul ambelor corpuri are un pronunțat caracter public (alimentație publică / spații expoziționale și de evenimente) și o funcționare autonomă în raport cu celelalte niveluri supraterane.