
Comentariul autorului:
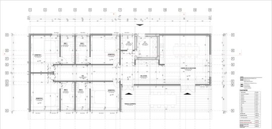
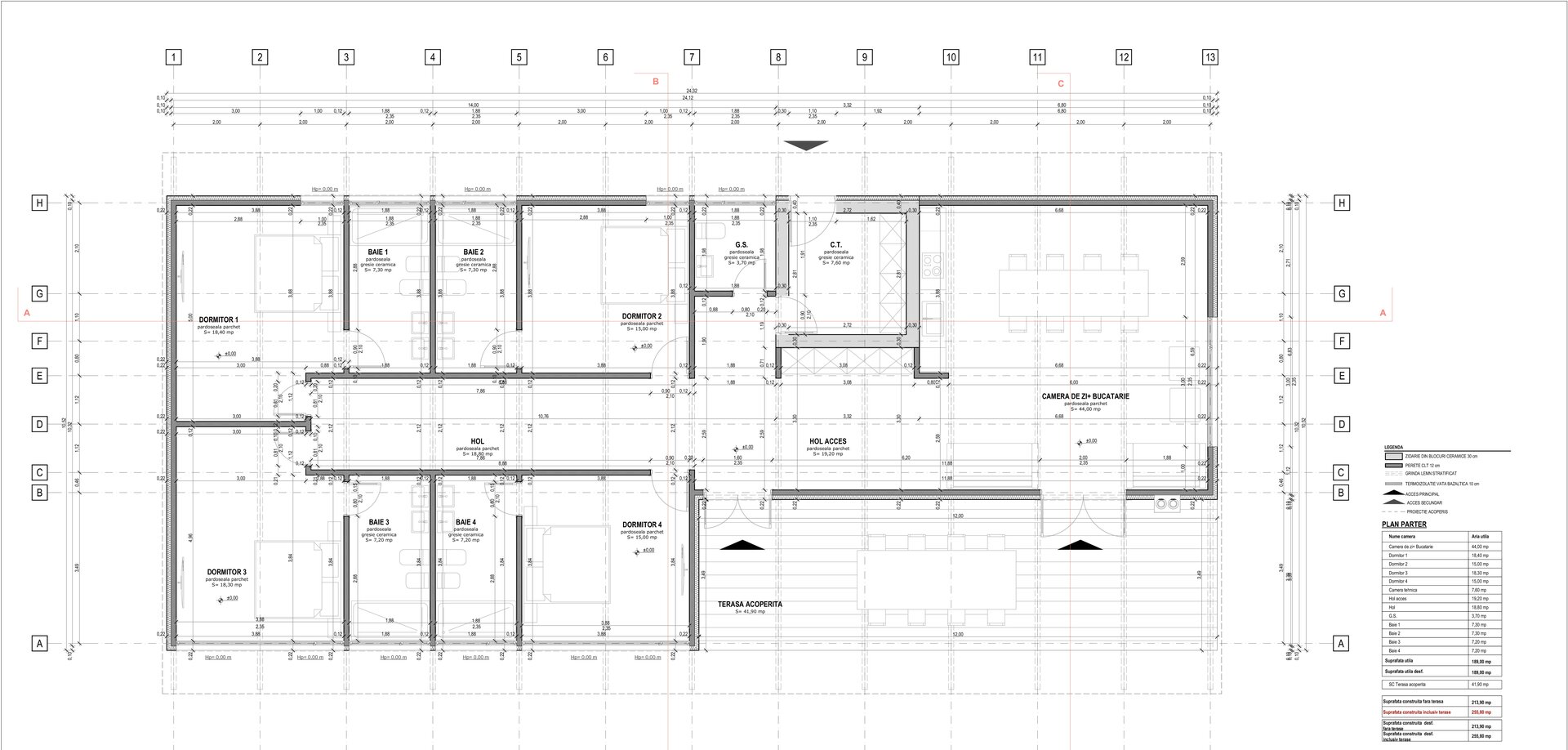
Bara de cazare pe parter amplasata in zona impadurita. Maniera de arhitectura, simpla, un concept si tema aprofundata de catre mine, ca arhitect in ultimii 20 de ani, in ceea ce priveste orizontala in arhitectura de liniste si asezare de a lasa forta principala naturii, prin asezarea ei.
Finisajele de grinzi lamelare face context si legatura cu lemnul- Bucovina Moderna.
Din punct de vedere functional pensiunea este formata din patru module de cazare cu baie proprie, camera de zi si bucatarie comuna deschise catre terasa, care ramane punctul dominant de comunicare cu exteriorul si deschidere vizuala.
In acest concept s-a dorit ca volumul sa nu fie delimitat de imprejmuire, ci sa comunice cu cadrul natural