
Comentariul autorului:
Toate siturile de temă din cadrul facultății au fost fie cadre construite destul de unitar, armonioase, fie situri virgine în peisaje naturale nealterate. Dându-mi seama că acestea sunt mai degrabă excepțiile, mi-am ales pentru diplomă un amplasament într-un cadru construit relativ recent, în mod aleatoriu si discordant - Sihăstria Putnei, judeţul Suceava.
Prin dizertația "Tradiţie şi Libertate în Alcătuirea Ansamblului Monahal – Cazul Moldovei" am încercat să înțeleg nevoile unor oameni foarte speciali, oameni aflați la limita dintre două lumi. Am analizat modul în care aceste nevoi se traduc în mediul construit și dinamica lor in decursul timplui (cu precadre compoziția ansamblului și ”aparatul” de acces).
În prediplomă am analizat elementele de mediu si cele culturale, elementele arhitecturale specifice zonei și am propus o posibilă dezvoltare pe termen lung care încearcă să regleze compozițional ansamblul. Propunerea, din considerente de amprentă asupra mediului, a încercat să înglobeze cât mai mult din ceea ce există construit deja și să armonizeze lucrurile din mers, etapizat.
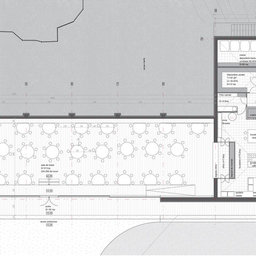
În proiectul de diplomă am studiat rezolvarea primelor necesități : sistematizarea terenului și conformarea spațială a incintei ; realizarea nucleului central cu trapeză și bucătărie, birouri, pangar, bibliotecă.; aparatul de acces, zona de parcare, intrarea în incintă, clopotnița.
Intervenția propusă încercă să echilibreze ansamblul, generând „soclu și spătar„ bisericii mici (1758-1996) astfel încât volumul noii biserici (2002-2007) să nu mai pară discordant de mare.
Volumele propuse replică la nivel de ansamblu elementele de morfologie ale arhitecturii tradiționale din Bucovina.