
Comentariul autorului:
Prin acest proiect de diplomă mi-am propus sa duc la un alt nivel percepția bucureștenilor asupra clădirilor înalte, percepția acestora asupra unei locuiri decente dar și să demonstrez că o clădire înaltă nu dăuneaza întotdeauna orașului sau mediului înconjurator, dacă este amplasată acolo unde orașul are nevoie de ea.
Având aceste principii bine setate am dezvoltat întregul proiect pe P.U.Z-ul aprobat în 2007 care propune amplasarea unui pod pe axa E-V a intersecției pentru decongestionarea traficului, dezvoltarea unui Business Center pe spatiul fostei uzine de la “Timpuri Noi”.
Pornind de la aceaste principii si de la nevoile zilnice ale bucureștenilor, poluarea, fluxul de mașini la orele de vârf, am dorit ca prin acest proiect, să arat perceptia mea asupra locuirii, asupra organizarii unor cladiri de birouri dar si importanta naturii in vietile noastre.
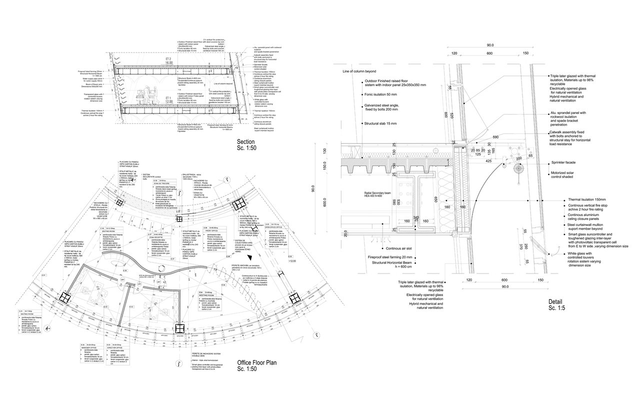
Din acest motiv am ales un sit, unde din punct de vedere compozițional este nevoie de un punct de reper vertical, o dominantă. Are nevoie de o îmbunătațire a calitații aerului deoarece se află într-o zonă intens circulată, la intersecția unor artere de importanță majoră (Bld. Nerva Traian și Splaiul Unirii). Datorită traficului intens zona nu este foarte pupulată de aceea am propus o reactivare a spațiului înconjurător prin amplasarea unei clădiri de birouri și crearea unor locuințe generoase orientate spre noua promenadă amenajată pe malul Dâmboviței ,astfel punând în valoare măcar o porțiune din acest unic râu al Bucureștiului. De asemenea proiectul își propune să dea un exemplu pentru modul de punere în practică a sustenabilității, astfel apa gri colectată este folosită la întreținerea și irigarea spațiilor verzi (gradini interioare) din interiorul turnului. Fatada "Double-skin" finisată cu celule fotovoltaice transparente având o medie de captare a energiei solare de cca. 45%/an, iar sistemul solar de prelevare a datelor poate adapta intensitatea umbririi geamurilor. În scopul eliminării poluării, clădirea este direct conectată la transportul public prin stația de metrou de la “Timpuri Noi” și are pus în aplicare programul “car sharing”, precum și facilitățile de utilizarea bicicletei ca mijloc de transport în comun având dușuri și vestiare în subsolul clădirii.
Clădirea de locuințe
Imobilul de apartamente amplasat pe sit în vecinătatea clădirii de birouri flanchează Bld. Calea București, iar prin forma sa crează o incintă deschisă de relaxare și loisir spre râul Dâmbovița
Pentru a crea o transparență vizuală la nivelul pietonilor clădirea de apartamente rezidențiale are in proportie de 70% parterul liber. Legătura cladirii cu solul, se realizează punctual prin cele două noduri de circulație verticală și prin amenajarea celor 2 spatii comerciale.Fiecare apartament este un duplex ce deține un mic spațiu verde amenajat la intrare în apartament, iar în apropierea nodurilor de circulație și în capetele clădirii se găsesc zone publice generoase.