
Comentariul autorului:
O cultura a inovației aduce beneficii societății, mai ales în formula parteneriatului dintre sectorul public și cel privat, care permite transferul direct de informații dintre universități, centre de cercetare și companii. În România, astfel de colaborări sunt în stadiu incipient, iar o intervenție urbanistic-arhitecturală le poate facilita, constituind cadrul propice unei interacțiuni interdisciplinare.
Contextul local asociat propunerii este constituit de fostele platforme industriale de pe malul Dâmboviței, în curs de transformare într-una din zonele de concentrare a centrelor de afaceri din București, având acces direct către rutele pentru alte orașe importante, cât și o bună legătură cu rețeaua de transport urban. Prezența campusului Universității Politehnice, cu instituțiile de învățământ și doua centre de cercetare ar putea determina apariția unui parc tehnologic universitar, punând la dispoziție infrastructura, iar centrul propus ar putea deveni astfel un nucleu pentru transferul tehnologic și inovație.
În consecință, primul obiectiv al proiectului este acela de a facilita comunicarea dintre două țesuturi urbane. Propunerea este amplasată pe cornișa Dâmboviței, asemănător intențiilor inițiale ale proiectantului campusului universitar, prof.dr.arh.Octav Doicescu, care considera că prin legătura cu bulevardul Iuliu Maniu, este asigurată prezența campusului la nivel urban. Astfel, este facilitată tranziția de la țesutul cu regim de înălțime mare la cel al campusului universitar. Mai mult, este creat un spațiu public, inexistent în împrejurimi în prezent, iar parterul clădirii este gândit ca o zonă de trecere,ca element de legătură dintre oraș și campus. Totodată, propunerea încearcă să țină cont de direcțiile și capetele de perspectivă generate de configurația inițiala a campusului, care pun în valoare Rectoratul ca piesă principală a compoziției.
Al doilea obiectiv al proiectului este de a proiecta un cadru pentru utilizatori din domenii diferite,care încurajează demersurile inovative și este gândit ca o alternativă a mediului de lucru rigid.
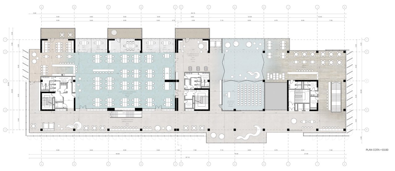
Organizarea spațiala este determinată de procesele din spatele inovațiilor tehnologice, existând trei zone principale: pentru brain-storming (elaborare de proiect), cu grad mare de flexibilitate, pentru prototipare și zona pentru testare, toate însoțite de spații pentru relaxare și socializare. Totodată, există și o zonă publică în care se pot desfășura expoziții sau competiții menite să familiarizeze publicul larg cu domeniul tehnologiei.
Al treilea obiectiv al proiectului este acela de a folosi elemente care reflectă destinația clădirii. Astfel, sunt înglobate materiale precum sticla și metalul, iar fațadele devin dinamice printr-un sistem de parasolare motorizate care contribuie la eficiența termică.