
Comentariul autorului:
Situl face parte dintr-un tesut urban rezidential constituit incepand cu perioada de dupa primul razboi mondial, pe coasta dintre cornisa si terasa superioara a vaii Cibinului, in continuarea cartierului Iosefin spre vest-sud-vest. Caracterul initial al zonei este alterat in prezent de tendinta regretabila de divizare a parcelelor mari, indesire a fondului construit si cresterea regimului de inaltime, de multe ori in contradictie cu panta naturala a terenului.
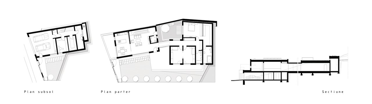
In acest context, principalul atu al sitului il va reprezenta tocmai declivitatea accentuata a terenului ce permite o excelenta relatie vizuala cu silueta zonei de nord-vest a orasului, amplasarea casei pe teren potentand acest lucru si respectand regulile de insorire. Casa face parte dintr-un ansamblu de doua locuinte individuale, fiecare cu acces separat, terenul beneficiind de deschidere atat la strada Saliste (casa de sus, care urmeaza a fi construita intr-o faza ulterioara), cat si la strada Litovoi Voda (casa de jos).
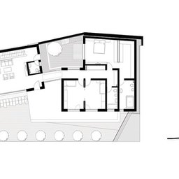
Zonele functionale ale casei de jos isi gasesc lacas intr-un volum care se cuibareste in panta naturala a terenului, parand a se naste din acesta. Fiecare terasa generata de aceasta dispunere va fi o terasa verde, perspectivele asupra orasului fiind perpetuu asumate.
Desi orientarea fata de punctele cardinale a parut in prima faza defectuoasa, o data adapostita de panta terenului, casa se desface catre lumina, principala materie prima a amenajarilor interioare, si o face atat in planuri verticale prin suprafete vitrate generoase, cat si in plan orizontal, prin luminatorul prin care pana si incaperile din subsol sunt conectate cu cerul.
Fiind partial ingropata in pamant (cota terenului natural in partea de sud-est este la +3,50m si la vecinul din nord-est la +7,00m), casa are un consum redus de energie, atat in sezonul rece, cat si in cel cald, agentul termic fiind asigurat de o pompa de caldura prin intermediul a doua puturi forate la 70 metri adancime.
Din strada, casa se ofera cu timiditate privitorului, dar o data intrat, ghidat in permanenta de lumina, spatii si privelisti neasteptate se deschid, culminand cu tandemul curte interioara-terasa verde pe casa, de unde, cu indrazneala si invaluit in mirosul de levanda, poti privi pana foarte departe.