
Comentariul autorului:
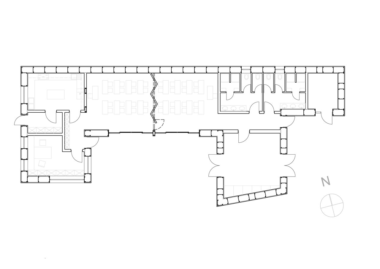
Centrul de Resurse a Comunității (CERC) Boldești-Scăeni este un experiment inițiat de OMV Petrom, la Boldești-Scăeni, unde și-au dorit să demareze și un program educațional și vocațional pentru copii. Pentru a putea desfășura în condiții optime acest program educațional, a apărut nevoia unei clădiri.
In procesul de integrare a comunităților rrome trebuie să existe o atenție deosebită pentru identitatea lor, pentru cultura și tradițiile care îi fac speciali. Programul educațional și vocațional coordonat de Amare Rromentza pune accent pe aceste lucruri, însă am încercat să folosim și arhitectura, atât ca rezultat, dar mai ales ca proces, pentru a cultiva un apetit și o asumare a meșteșugurilor încă existente în comunitatea lor. Astfel, am angajat pe perioada șantierului 3 bărbați din comunitatea rromă. Am folosit tehnici și materiale tradiționale, cu care ei sunt obișnuiți, împreună cu lucruri mai moderne, specializându-se astfel în noi tehnici de construire, care le pot oferi o șansă suplimentară pentru a-și găsi locuri de muncă.
O serie de materiale de construcție fac parte din cultura rromă. De exemplu tencuielile de lut sau nuielele, folosite pentru realizarea gardului, a stabilizării straturilor supra-înălțate din grădină, a tavanului și abajururile din cele două încăperi principale.
Clădirea stă pe o fundație din șuruburi metalice, fiind prima construcție civilă din România cu o astfel de fundație. Structura este din lemn. Are o structură dublă, cu umplutură din baloți de paie. Aceeași secțiune este folosită atât pentru planșeul pardoselii, cât și pentru pereți și acoperiș, eliminând astfel punțile termice.
Eficiența energetică este abordată în 3 pași:
1. Reducerea pierderilor de energie – eliminarea punților termice, o bună izolare (stratul de 50 de cm a baloților de paie este suplimentat la interiorul acoperișului cu 20 de cm de vată minerală, respectiv cu 5 cm de termoizolație din fibre lemnoase la exteriorul pereților), tâmplării cu triplu vitraj și bună etanșeizare a ramelor.
2. Reducerea consumului de energie – Orientarea vitrajelor spre sud pentru a beneficia de aportul solar, streșini largi pentru a proteja clădirea de supraîncălzire pe timpul verilor, iluminat cu LED-uri, aparate electrice și electrocasnice eficiente energetic, recuperator de căldură.
3. Producerea de energie din surse alternative – Folosim un sistem solar alcătuit din 30 de panouri fotovoltaice și 2 panouri termice, care acoperă tot necesarul de energie electrică pe parcursul unui an. Energia electrică va fi mai întâi folosită direct de consumatorii clădirii. Surplusul este cedat în rețea, iar când necesarul de energie depășește producția, energia electrică suplimentară este preluată din rețeaua publică.
Opus intrării există un teren de 440 de metri pătrați, unde practicăm agricultura, tot sub forma unui program educațional, prin care copiii cultivă legume.