
Comentariul autorului:
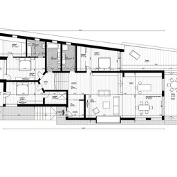
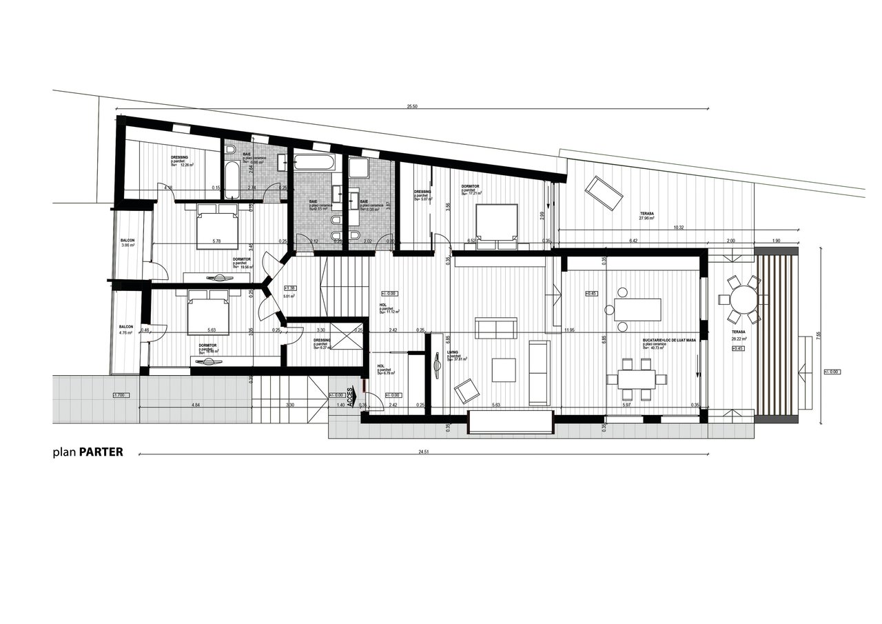
Concepul este simplu, se separă funcţiunile pe verticală în trei volume. Unul este demisolul cu garaj pentru două maşini şi spaţiile tehnice, al doilea este zona de zi cu accesul, livingul, locul de luat masa şi bucătăria, toate într-un open space. Livingul se separă de zona de bucătărie şi de locul de luat masa printr-o mică diferenţă de nivel de trei trepte. Din acest open space se deschide al doilea volum spre dormitoare printr-o scară generoasă. Casa are două dormitoare, fiecare cu dressing şi baie. La parter spre gradină se deschide un spaţiu în extensie la living, camera de oaspeti. Casa este una inteligentă din punct de vedere al instalaţiilor interioare.
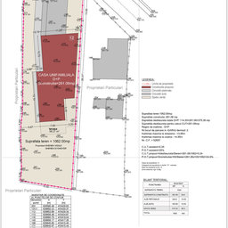
La exterior s-a folosit placajul decorativ cu piatră, placaj cu lemn și balustradă de sticlă.