
Comentariul autorului:
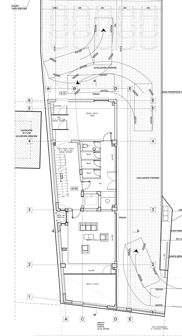
Constructia prezentata are regimul de inaltime P+2E +M si destinatia de bloc de locuinte colective, propuse pentru inchiriere catre terti.
Primele variante ale proiectului au fost realizate in anul 2012, iar finalizarea lucrarilor a avut loc in anul 2015.
Pe teren exista o locuinta P+1 E, in stare avansata de deteriorare ce prezenta pericol si care a fost desfiintata.
Noua constructie abordeaza o planimetrie poligonala, adaptata formei parcelei si un volum contemporan, minimalist, in acord cu tendintele arhitecturale actuale.
Volumele dominante ale casei se aliniaza cu laturile dinspre est si nord ale terenului.
Structura este clasica pentru acest tip de program – cadre si placi din beton armat, inchideri din zidarie.
In total sunt prevazute 5 apartamente de 2 si 3 camere, avand suprafata construita intre 60-99 mp, precum si o serie de spatii comune amplasate la parterul constructiei.