Ediții: 2023 | 2021 | 2018 | 2016 | 2014 | 2012

Apartament A.B.

Autori:
Paul Mihai Moldovan, Florin Vasile Lazăr
Colaboratori:
Execuţie mobilier:
Terminus Prod SRL
Salice Prodcom SRL
Localizare:
România, jud. Cluj, Cluj-Napoca
Indicatori:
Su: 65 m2
Amenajat pentru a întruni cerinţele şi necesităţile unei tinere domnişoare, Apartamentul A.B. este gândit într-un regim modular în care jocul culorilor şi al spaţiilor trasează linii de echilibru într-o amenajare voit eclectică. Construit pe durata a patru ani, fapt vizibil în diferenţele şi evoluţia soluţiilor între primele şi ultimele piese montate, apartamentul respiră două stiluri din a căror balansare rezultă un spaţiu viu, degajat şi aerat.

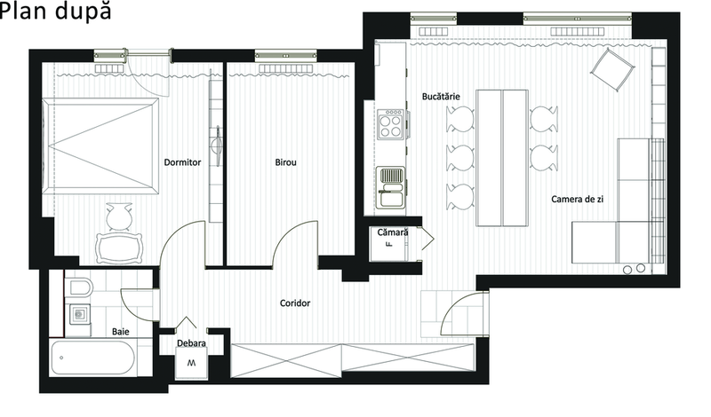
Situat la un etaj superior, pe latura estică a unui bloc construit în anii ’80, apartamentul se desfăşoară pe o suprafaţă utilă de 65 mp unde pereţii vopsiţi în lavabil alb contribuie la o iluminare uniformă a spaţiilor pentru a pune în evidenţă tocmai jocul culorilor alese de client şi contrastul stabilit între diferitele sisteme de mobilier. Ca şi în cazul altor proiecte semnate ateliercetrei, mobilierul se defineşte ca design de obiect, fiind construit într-un stil unitar şi definitoriu.

Tonalităţile de culoare ale mobilierului intră în dialog echilibrat cu pardoseala din parchetul de nuc, iar tavanul este tratat simplu în gipscarton cu scafe pentru draperii şi perdele. Perdelele au fost în mod voit gândite să fie cât mai „grele” şi să creeze astfel un raport eclectic cu spaţiul şi mobilierul amenajării. Dulapul de pe hol cuprinde toate modulele de depozitare pentru a elibera spaţiul din apartament, iar zidul living-ului a fost spart pentru a crea un monovolum ce defineşte raporturile formale şi funcţionale astfel stabilite.

Atât baia cât şi dormitorul păstrează elemente decorative gândite împreună cu clientul – de la tapetul cu motiv floral de la capul patului, până la plăcile decorative cu cristale, covoare şi draperii, spaţiul oferă o intimitate şi o ambianţă cu caracter feminin perfect integrate conceptului modular de ansamblu. Acelaşi caracter modular este amplificat de utilizarea gresiei de 30x60 cm în baie şi faianţei de 10x10 cm în bucătărie, care intră în dialog direct cu unitatea de ansamblu a amenajării.

Apartamentul A.B. se defineşte printr-un funcţionalism eclectic ce redesenează cadrele interioare pentru a eficientiza locuirea spaţială. Utilizarea eficientă a luminii şi a interiorului în vederea unei aerisiri a spaţiului, încercarea de a crea continuitate la nivel formal şi material, sau capacitatea de a integra motive decorative contrastante fac ca această amenajare să-şi găsească un echilibru dinamic, simplu şi funcţional, modulat pe nevoile cotidiene ale clientului. Accentul ergonomic principal al amenajării, trasat de spaţiile de depozitare din living, oferă o perspectivă inedită asupra modalităţilor alternative de concepere şi desenare a unui spaţiu, fără a face rabat de la aspectul practic sau estetic. El reprezintă o posibilă definiţie a acestui spaţiu viu, ca viziune de ansamblu asupra locuirii şi ca modalitate de a imagina spaţiul dincolo de constrângerile şi limitările sale fizice.

Panouri pentru expoziție

Click pe panouri pentru a le vedea la mărimea orginală (se vor deschide într-o fereastră nouă)