Ediții: 2023 | 2021 | 2018 | 2016 | 2014 | 2012

Locuinţă individuală

Autor:
Dan Corneliu Şerban
Colaboratori:
Arhitectura: Arh. Ana Luben, Arh. Simina Dron, Arh. Radu Turcanu, Arh. Raluca Padurariu, Arh. Reka Fulop, Arh. Emoke Jakab, Arh. Gheorghe Bratu, Arh. Florin Cobuz, Stud. Arh. Alexandra Buleu, Stud. Arh. Ecaterina Mocanescu
Structura: Ing. Andrei Zybaczynski (AVZ Design Grup)
Instalatii: Ing. Mihai Terzi, Ing. Cristina Terzi (Smart Design Instalatii)
Localizare:
România, Bucureşti
Indicatori:
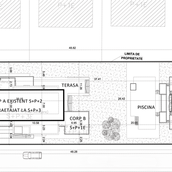
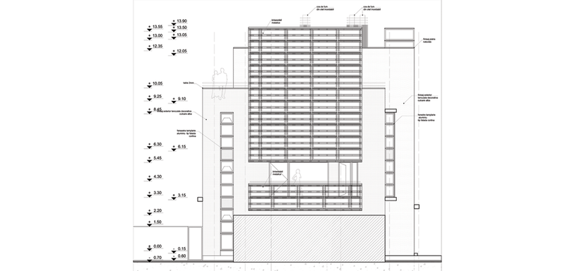
RH: S+P+3E / Sd: 1200 m2
In contextul unui tesut urban in transformare efervescenta , aliniata cu constructii de data recenta sau « foarte recenta » , situata intr-o zona fara istorie urbanistica , constructia prezentata a devenit un polarizator de interes , fara sa se fi intentionat neaparat astfel .
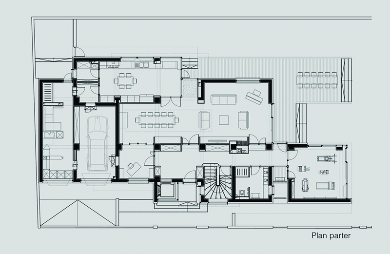
Tema la care a trebuit sa raspunda acest proiect a fost de adaptare a unei locuinte existente la solicitarea pe care a definit-o beneficiarul , pe parcursul utilizarii acesteia .
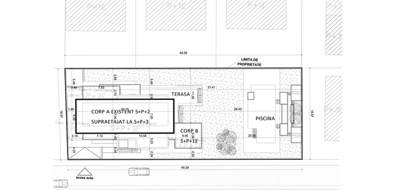
Lucrarea reprezinta o extindere atat pe verticala cat si in plan a unei locuinte mai vechi, datand din anii 90, realizata pe atunci in stil modern.
Constructia initiala era in forma de L, cu regim S+P+2E si ramane din punct de vedere volumetric unul dintre elementele compozitiei actuale.
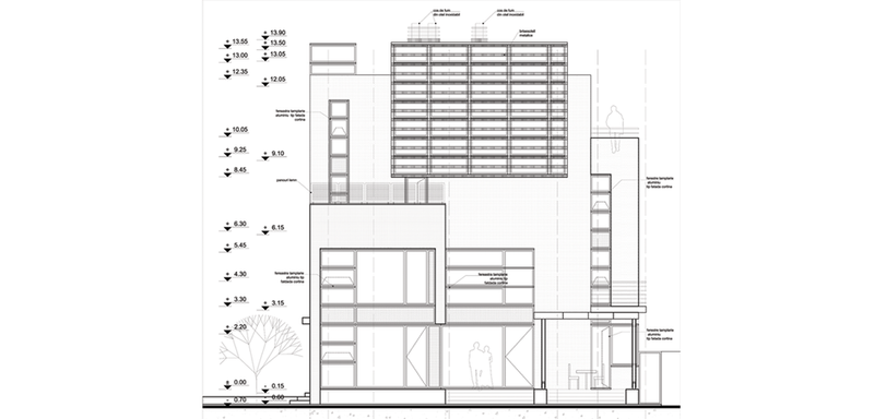
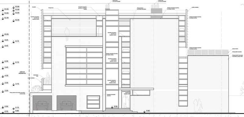
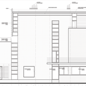
Compozitia actuala este insa una mai substantiala, fiind potentata de prezenta masica a mai multor volume noi, cum ar fi volumul nou S+P+1E, volumul de sticla al liftului ca si dominanta verticala, precum si o serie de planuri minerale sau cu o consistenta mai aerata care diversifica la randul lor compozitia.
Rezultatul este unul total diferit, foarte contemporan si surprinzator de unitar pentru o paleta atat de variata de interventii, materiale, volume. Pozitia si diversitatea volumelor redau senzatia de miscare iar dinamismul nu este doar unul formal ci are si o componenta temporala, pastrandu-se in mod deliberat un element lizibil care sa aminteasca privitorilor initiati de originea stilistica a casei: cunoscatorii arhitecturii moderne vor regasi in nucleul central, in special in zona copertinei si intrarii, elemente compozitionale specifice modernismului amintind de originea mai veche a casei. Acest gest, asumat in mod deliberat de catre proiectanti este lasat ca un indiciu, exclusiv pentru cunoscatori.

Panouri pentru expoziție

Click pe panouri pentru a le vedea la mărimea orginală (se vor deschide într-o fereastră nouă)