Ediții: 2023 | 2021 | 2018 | 2016 | 2014 | 2012

Imobil locuinţe colective P+2E+M

Autor:
Bogdan-Constantin Neagu
Colaboratori:
arh. amelia pop
fota arh. andrei margulescu
Localizare:
România, Bucureşti, str. Prof. Gh. Costaforu nr. 5 vezi harta
Indicatori:
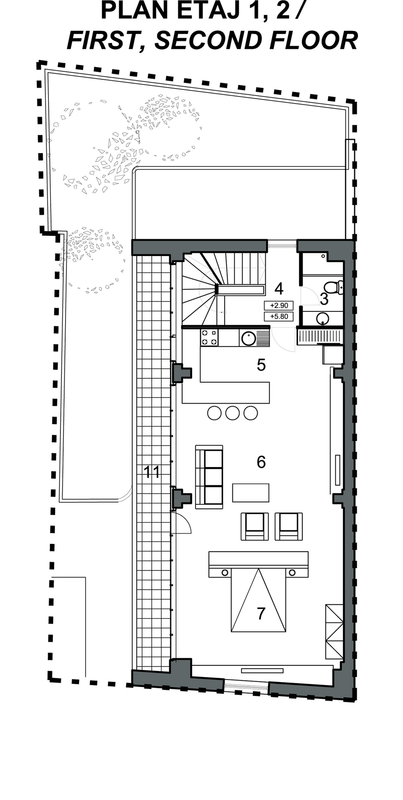
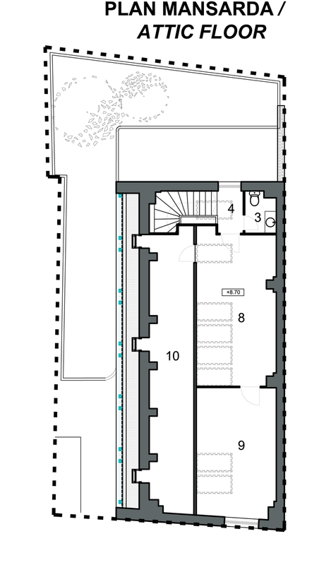
RH: P+2E+M / Sd: 331.74 m2 / POT: 45% / CUT: 1.6
Proiectul este amplasat intr-o zona de locuite mici, pe parcelari traditionale, in afara zonelor de protectie. Suprafata redusa a terenului a impus o dezvoltare pe verticala si o planimetrie compacta, de tip open space, cu doua apartamente individuale, unul pe doua niveluri, la parter si etaj si unul la etajul al doilea, cu acces printr-o scara interioara comuna.
Estetica fatadelor variaza de la plin cu goluri impuscate inspre strada, la benzi de vitraje pe fatada orientata inspre curte.

Panou pentru expoziție

Click pe panou pentru a-l vedea la mărimea orginală (se va deschide într-o fereastră nouă)