Ediții: 2023 | 2021 | 2018 | 2016 | 2014 | 2012

Casa Lara

Autor:
Mihai Mircea Tudose
Colaboratori:
Structura: CON SAM PRO S.R.L.
Constructor: antrepriză proprie
Localizare:
România, jud. Timiş, Timişoara, str. Traian Vuia nr. 1B vezi harta
Indicatori:
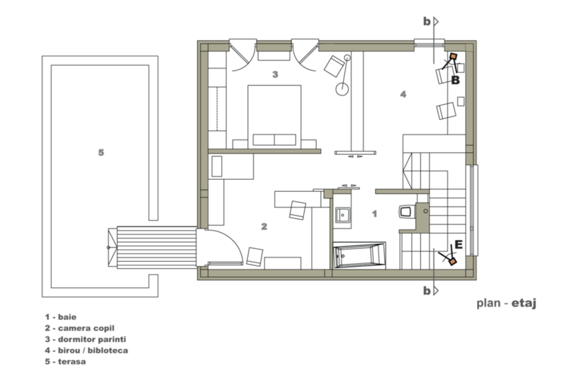
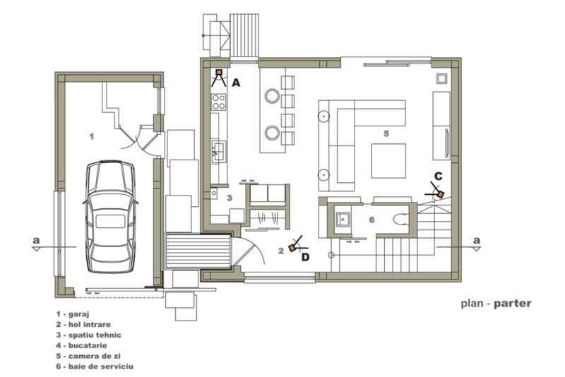
RH: P+1 / Sd: 140 m2 / Su: 120 m2 / POT: 32% / CUT: 0.55
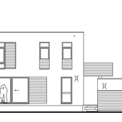
Încă din schiţele iniţiale a apărut forma simplă şi eficientă a unui cub. Rigiditatea formei şi culoarea deschisă a acestuia au tras dupa sine nevoia unui element cald "LEMNUL", care apare ca accent şi rol decorativ, reancorând volumul în sfera rezidenţială. Volumul relativ mic şi compact a dictat o anumită abordare a întregii teme de locuit: uşi glisante, lipsa caloriferelor pe pereţi, transparenţe vizuale...

De asemenea proiectul combină contrastele dintre privat şi public, opac şi transparent, umbră şi lumină. De aici rezultând fatada putin perforata spre stradă (public) şi spre spatele casei mai vitrată (privatul).

Panouri pentru expoziție

Click pe panouri pentru a le vedea la mărimea orginală (se vor deschide într-o fereastră nouă)