Ediții: 2023 | 2021 | 2018 | 2016 | 2014 | 2012

Locuinţă individuală Şerban

Autor:
Bogdan-Constantin Neagu
Colaboratori:
arh. llambi zoja
arh. dragos constantin
foto: arh. andrei margulescu
Localizare:
România, jud. Ilfov, comuna Corbeanca, str. Primăverii vezi harta
Indicatori:
RH: S+P+1E / Sd: 350 m2 / POT: 30% / CUT: 0.3
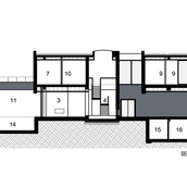
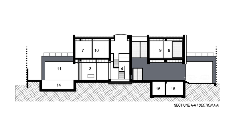
Amplasamentul se află într-o zonă rezidenţială aerisită, adiacentă oraşului, departe de ţesuturi urbane care să impună constrângeri volumetrice sau stilistice. Contextul general - reprezentat de vile individuale cu arhitectura medie, omogena, lipsita de personalitate si cu gabarite supradimensiuonate in multe dintre cazuri- ne-a impus atat noua, cat si beneficiarului, o pozitie contrastanta. De profesie aviator, acesta a venit cu deschiderea catre forme fluide si cu cerinta ca locuinta sa aibe functie de reprezentare. Raspunsul nostru a fost o locuinta manifest si cu un caracter introvertit – ce rezida din amplasarea golurilor pe fatade, retragerea fata de strada si deschiderea catre terasa cu piscina din spatele proprietatii. Raportul dintre amprenta casei si limitele terenului, cat si pozitionarea vecinatatilor construite la distante destul de mari, permit perceperea vilei din unghiuri ample, iar formele fluide ale acesteia impulsioneaza privitorul spre contemplare panoramica. Fiecare dintre cele patru fatade este diferita si egala ca importanta, in timp ce multitudinea perspectivelor releva cursivitatea volumului general. Intregul concept volumetric e definit de doua zone alveolare unite de un corp liniar ce le pune in evidenta. In ameobe se gasesc principalele functiuni: zona de zi si biroul la parter, iar la etaj patru dormitoare. Bara ce le intersecteaza indeplineste functia de legatura: acces, bucatarie si pasarela cu terase ample. Volumul liniar porneste de pe aliniament, ca parte integranta a gardului dinspre starda si inglobeaza si elemente ale amenajarii exterioare: o parcare si o terasa adiacenta piscinei, ambele acoperite. Una dintre ameobe coboara pana la nivelul subsolului, unde se gasesc sala de fitness, o sauna, o depozitare si centrala termica cu o mica curte de lumina. Accesul principal in imobil este amplasat discret, pe una dintre fatadele lungi si este protejat de o copertina in consola din profile metalice si policarbonat. Detaliul pentru scurgerea apelor pluviale de pe zona de copertina a fost gandit special pentru armonizarea cu restul volumetriei. Desi desenul planului este fluid, toate spatiile compuse sunt perfect functionale, fara zone inaccesibile sau greu de utilizat. Contrastul dintre curb si rectiliniu e accentuat si cromatic: ameobele sunt albe, iar volumul liniar e de culoare gri antracit. Ca finisaj exterior al anvelopantei s-a folosit un termosistem performant, iar tamplariile exterioare, incuzand si luminatorul circular de deasupra casei scarii, au fost asigurate de Schuco. Solutiile tehnice, detaliile de executie si materialele de finisaj folosite nu au ridicat probleme speciale, fapt dovedit prin realizarea fidela a proiectului propus de noi.
Vila Serban propune un alt fel de arhitectura domestica, cu personalitate, ce a fost recompensata cu locul 2 la “Fatada anului 2010”.

Panouri pentru expoziție

Click pe panouri pentru a le vedea la mărimea orginală (se vor deschide într-o fereastră nouă)