Ediții: 2023 | 2021 | 2018 | 2016 | 2014 | 2012

Locuinţă individuală Leca

Autor:
Bogdan-Constantin Neagu
Colaboratori:
arh. Iulian Oanta
ing. Iordan Relu
Localizare:
România, jud. Ilfov, comuna Corbeanca, bd. Erou Iancu Nicolae vezi harta
Indicatori:
RH: D+P+2E / Sd: 328.76 m2 / POT: 32% / CUT: 0.67
Locuinta unifamiliala, in regim de inaltime S+P+2E are acces carosabil pe parcela din strada Erou Iancu Nicolae, cu 2 locuri de parcare in garajul situat la parter.
Parcela are forma regulata in plan, aproximativ patrata, cu un front la strada de 20.37m si adancime maxima de 23.90m, rezultand o suprafata de 483.59mp. Locuinta este construita pe parcela paralela cu limitele laterale ale terenului, retrasa de limita nord cu 1.50m, retrasa cu 2,00m fata de limita est, cu 2,70m fata de limita sud si cu 5,88m fata de strada.
Locuinta are intrarea principala pe fatada vestica.
Subsolul, in suprafata construita de 48.75mp, este compus din centrala termica, ventilata natural cu ajutorul unei curti de lumina de 3.75mp, spatiu de depozitare, hol si scara acces parter.
Parterul, in suprafata construita de 158.40mp, este compus din: hol acces, living, dinning, bucatarie, grup sanitar si garaj pentru doua masini.
Etajul 1, in suprafata construita de 108.44mp, este compus din: dormitor matrimonial cu baie si dressing, un dormitor cu baie si terasa partial circulabila.
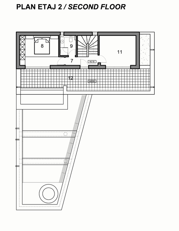
Etajul 2, in suprafata construita de 61.92mp, este compus dintr-un dormitor, birou, grup sanitar si terasa circulabila.
In amenajarea parcelei era prevazuta initial si o piscina, care se va executa ulterior.
- Regimul de inaltime al locuintei este de 9.85 m la atic (s+p+2)

Panou pentru expoziție

Click pe panou pentru a-l vedea la mărimea orginală (se va deschide într-o fereastră nouă)