Ediții: 2023 | 2021 | 2018 | 2016 | 2014 | 2012

Ansamblu rezidenţial Transilvania

Autori:
Dragoş Şerban Ţigănaş, Florin Marius Dico, Iulia Maria Kulcsar, Ioan Bera
Beneficiar:
SC TRANSILVANIA CONSTRUCTII SA
Localizare:
România, jud. Cluj, Cluj-Napoca, str. Dorobanţilor nr. 132-134 vezi harta
Calea Dorobanţilor din Cluj este o arteră principală ce uneşte centrul oraşului de cartierul Mărăşti, un cartier cu o densitate foarte de mare de locuitori. Ansamblul rezidenţial Dorobanţilor, format din două corpuri de locuinţe colective, vine să completeze funcţional fondul construit, ridicând însă standardul în calitate şi aspect.
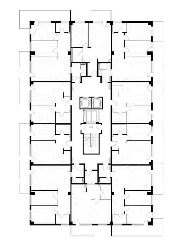
Construcţiile de mici dimensiuni, aflate în afara zonei protejate vor face loc volumelor propuse, ce incearcă să învioreze aspectul general prin crearea unui joc al balcoanelor şi logiilor pe faţadă. Parcajele şi spaţiile tehnice sunt amplasate la primele două niveluri ale clădirilor (subsol şi parter), maşinile lăsând astfel loc spaţiilor înierbate şi vegetaţiei precum şi locurilor de relaxare şi joacă.
Primul corp adăposteşte 56 de apartamente şi 8 apartamente duplex desfăşurate pe 9 niveluri. Cel de-al doilea corp oferă 110 apartamente şi 10 apartamente-duplex desfăşurate pe 11 niveluri.

Panou pentru expoziție

Click pe panou pentru a-l vedea la mărimea orginală (se va deschide într-o fereastră nouă)