Ediții: 2023 | 2021 | 2018 | 2016 | 2014 | 2012

Ansamblu rezidenţial Meteor 19

Autori:
Dragoş Şerban Ţigănaş, Florin Marius Dico, Iustinian Marius Orza
Beneficiar:
SC Vector Expert SRL
Localizare:
România, jud. Cluj, Cluj-Napoca, str. Meteor nr. 19 vezi harta
Indicatori:
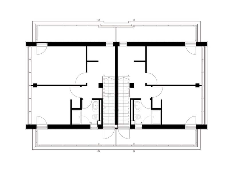
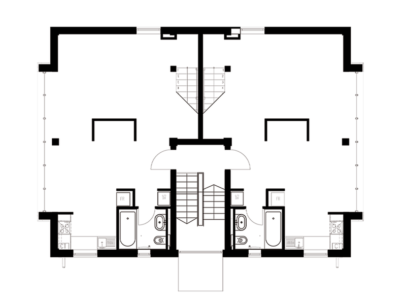
RH: S+P+2E / Sd: 784 m2 / POT: 35% / CUT: 0.9
Proiectul şi-a propus să readucă în discuţie locuirea în vila urbană. Cele două case sunt aşezate pe o dală îngropată destinată parcării şi depozitării. Dialogul dintre ele este mediat de o grădină interioară care caută o armonie simetrică. Volumul duplexurilor se exprimă clar în faţada prin placajul de lemn care le încălzeşte. Rigoarea liniilor pregăteşte deschiderea ferestrelor mari, transformate în ecrane către peisajul proxim şi cel îndepărtat. O invitaţie prin grădina de faţadă, un peisaj, o oază interioară şi multă linişte luminoasă.

Panou pentru expoziție

Click pe panou pentru a-l vedea la mărimea orginală (se va deschide într-o fereastră nouă)