Ediții: 2023 | 2021 | 2018 | 2016 | 2014 | 2012

Locuinţă Snagov

Autor:
Radu Canciovici
Colaboratori:
Arhitectura: arh. Dan Voicu, arh. Cristina Canciovici (Cardo Plan)
Structura: ing. Cristian Constantinescu (Advance Plan)
Instalatii: ing. Aurel Marin (Hidro Shop)
Project Management: AMDI construct&development
Beneficiar:
Razvan Petrovici
Localizare:
România, jud. Ilfov, Snagov, str. Zorelelor, nr.cad. 262 vezi harta
Indicatori:
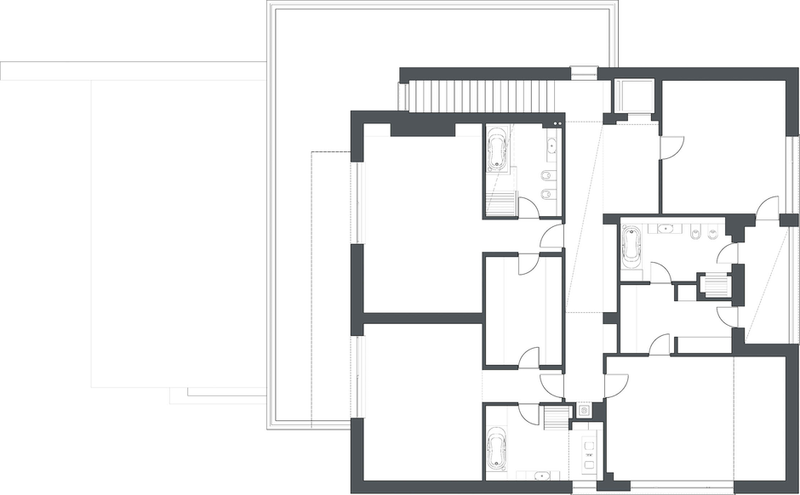
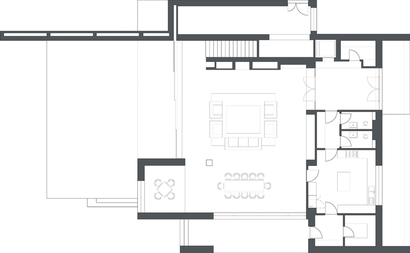
RH: P, P+1 / Sd: 972 m2 / Su: 820 m2 / POT: 6.61% / CUT: 0.10
Amplasamentul privilegiat ( pe malul lacului Snagov ), a dictat o serie de date de tema si, implicit, solutia adoptata. S-a optat pentru realizarea unei cladiri de tip "fata si spate", cu majoritatea camerelor orientate catre lac, fapt care face ca cladirea sa fie mult mai spectaculoasa vazuta dinspre lac. Spatiile sunt foarte generoase (living de 120 mp, terasa de 90mp). De asemenea, s-a mai dorit realizarea unei anexe pentru angajatii permanenti ai proprietarului, a unui garaj pentru 3 masini si a unui ponton.
Casa are evidente tente moderniste, solutie potrivita pentru locuinte din motive tehnice si economice, in contextul actual. Simplitatea devine deci o nevoie, abilitatea proiectantului putand insa transforma aceasta situatie intr-un atu prin proportie si armonie.

Panouri pentru expoziție

Click pe panouri pentru a le vedea la mărimea orginală (se vor deschide într-o fereastră nouă)