Ediții: 2023 | 2021 | 2018 | 2016 | 2014 | 2012

Imobil locuinţe str. Xenopol nr. 2, Bucureşti

Autor:
Ioana Duţescu
Colaboratori:
Arhitecti: arh. Cristiana Tobosaru, arh. Bogdan Tobosaru
Structura: prof.dr.ing. Mircea Crisan; lect. ing. Vlad Petrescu
Beneficiar:
privat
Localizare:
România, Bucuresti, str. A. D. Xenopol nr. 2 vezi harta
Indicatori:
RH: S+P+5E / Sd: 2103,65 m2 / POT: 61% / CUT: 3,18
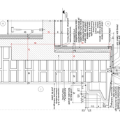
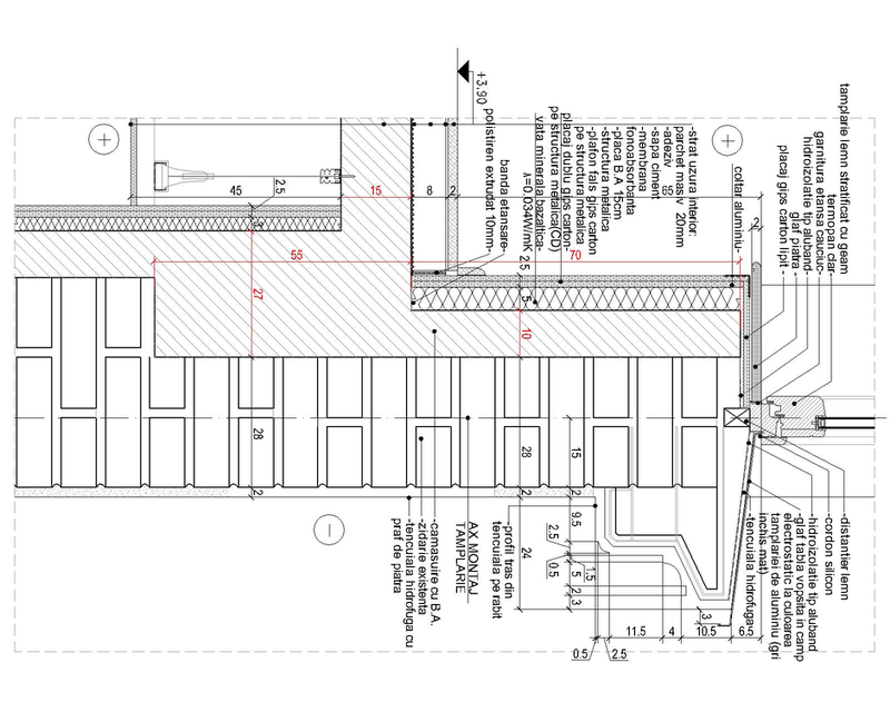
Parcela cu suprafata de 522mp a fost ocupata anterior de o cladire p+1, a carei decoratie, de factura neoromaneasca, a fost identificata de studiul istoric ca avand valoare culturala semnificativa in zona vizibila dinspre spatiul public, in zona de curte avand insa valoare modesta. Tema de proiectare a solicitat o valorificare cat mai buna a parcelei, in conditiile respectarii cerintelor exprimate de studiul istoric si Directia Monumentelor istorice. Astfel s-a conturat solutia prezervarii fatadelor si dezvoltarea extinderii in retrageri succesive (atat de la strada cat si pe verticala, pentru a pastra la nivelul perceptiei stradale impactul fatadelor prezervate. Principiul de compozitie a presupus introducerea extinderii ca fundal pe care sa se evidentieze fatadele pastrate.
La conformarea extinderii s-au evitat volumele masive si s-a urmarit articularea de volume mai mici care sa rupa senzatia de masivitate si sa conduca, prin juxtapunerea de materiale si texturi, catre diversitatea specifica tesuturilor urbane de inceput de secol XX, urmarind totodata si unitatea compozitiei. Prin caramida rosie s-a tintit relationarea vizuL cu Biserica Anglicana, creind in acelasi timp si un accent de culoare
S-a acordat mare atentie corelarii tipurilor de goluri ale extinderii cu golurile fatadei vechi. S-au preluat aceleasi dimensiuni de gol, precum si raportul plin gol al fatadei . Pentru a sublinia relationarea cu fatadele pastrate, s-au introdus elemente cum sunt solbancurile si balustradele stilizate. Tranzitia de la vechi la nou se face gradual, geometria ferestrelor simplificandu-se odata cu trecerea de la un registru de retragere si finisaj la altul.
Prin contrast cu fatadele catre str. A.D. Xenopol si str. Arthur Verona, catre Gradina Icoanei, acolo unde nu existau aceleasi constrangeri de imagine, s-a adoptat un vitraj generos in zonele de living, urmarindu-se o deschidere si o comunicare cat mai directa intre spatiul interior si cel exterior, beneficiind la maxim de vecinatatea imediata a gradinii.
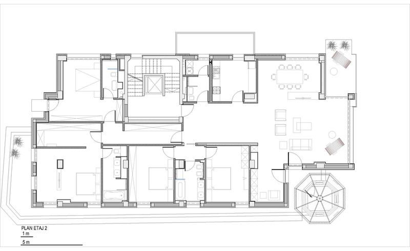
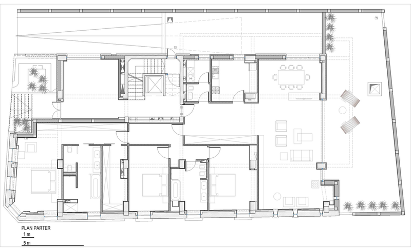
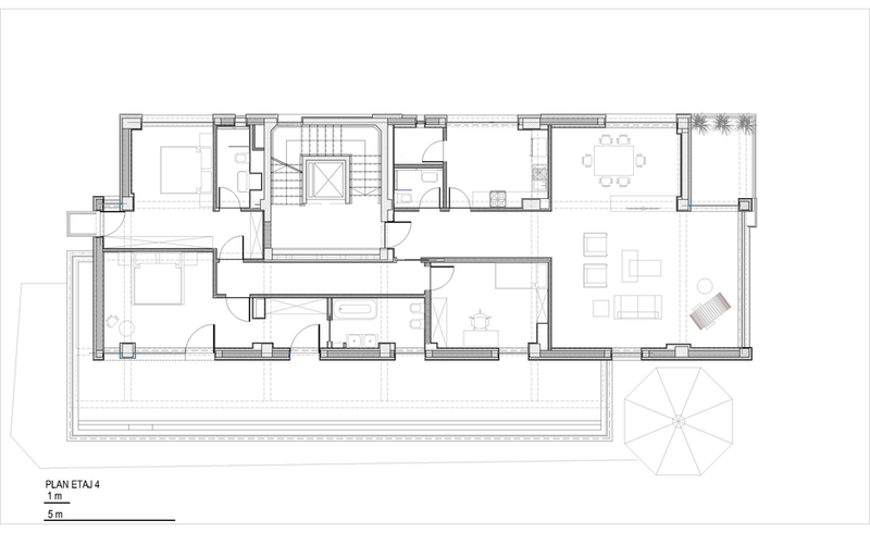
Din punct de vedere functional, fiecare etaj adaposteste un apartament generos cu deschidere la Gradina Icoanei pe zona de zi. Acest lucru a fost posibil datorita traficului auto redus pe strazile invecinate, permitand orientarea zonei de noapte catre ele.

Panouri pentru expoziție

Click pe panouri pentru a le vedea la mărimea orginală (se vor deschide într-o fereastră nouă)