Ediții: 2023 | 2021 | 2018 | 2016 | 2014 | 2012

Casa Dincă C.

Autor:
Silviu Mihăilescu
Colaboratori:
Structura: S.C. IDEEA PROIECT S.R.L.
Localizare:
România, Bucureşti, str. Gura Făgetului nr. 77 vezi harta
Indicatori:
RH: P+1 / Sd: 174.7 m2 / Su: 134.7 m2 / POT: 23% / CUT: 0.46
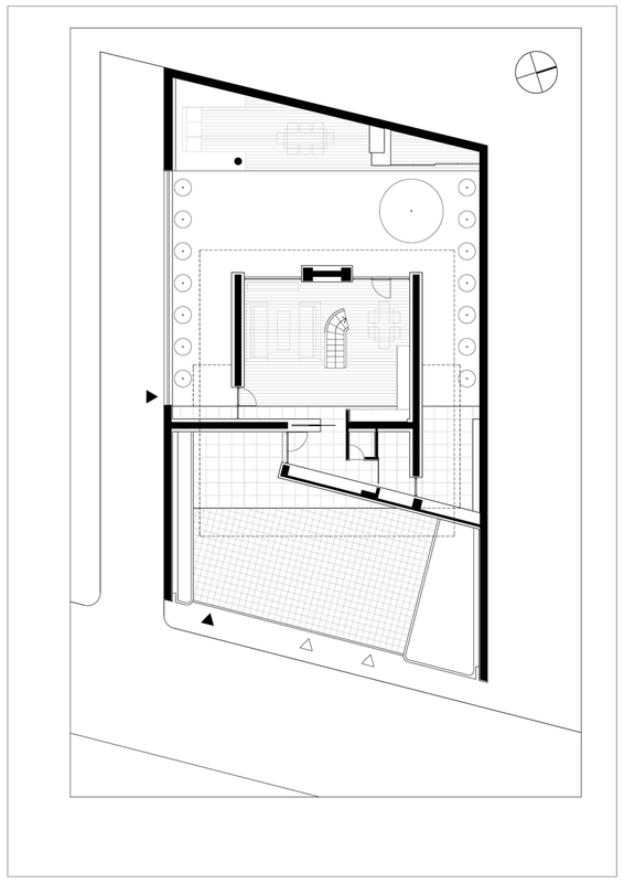
Fiind un program cu un caracter intim pronuntat, rezolvarea spatiilor interioare si confortul trebuie sa primeze, in paralel cu acesta fiind rezolvata si realatia cu strada si cu spatiul public. In cazul casei Dinca C., datele de tema initiale cereau rezolvarea a trei dormitoare si doua bai la etaj, iar parterul trebuia sa beneficieze de un living pe doua niveluri, toate acestea pe o parcela dificila, in principal din cauza deschiderii foarte mici la strada.
Accesul in casa este ghidat de un zid director ce urmeaza forma de paralelogram a parcelei, orientarea volumului principal al casei fiind dictat de directia lateralelor parcelei.
La nivelul parterului, zona tehnica si grupul sanitar sunt rezolvate in buzunarul rezultat intre zidul director mai sus mentionat si volumul principal al casei, pentru ca restul spatiului parterului sa se desfasoare sub forma unui open space ce inglobeaza zona de living, dining-ul si bucataria. Toate aceste spatii graviteaza in jurul scarii, ce capata un rol director in cadrul compozitiei.
Scara este centrul de greutate al spatiului interior, atat datorita pozitiei ei in plan, cat si datorita golului de deasupra living-ului si dining-ului. In acest sens, decalarea planului etajului fata de planul parter, dar si acoperirea intr-o singura apa care se deschide spre fatada principala, determina o ierarhizare firesca a spatiilor interioare, raspunzand exigentelor prezentate mai sus, si totodata rezultand un volum dinamic si spectaculos.
La nivelul parterului, buzunarul din zona accesului rezolva zona “tehnica” a casei, bucataria si zona de circulatie sunt acoperite de volumul etajului, pentru ca livingul si diningul sa beneficieze de zona de subpanta, unite prin intermediul scarii.
Volumul etajului adaposteste in zona joasa spatiile dedicate bailor si dressing-ului, pentru ca zona inalta, ce se deschide catre fatada principala sa fie dedicata celor trei dormitoare, ce beneficiaza de lumina favorabila a rasaritului.
Compozitia este intregita in curtea din spate de un mic lounge si de o zona de luat masa in aer liber, ce rezolva functional unghiul dintre lateralele parcelei si latura sa din spate.
Volumul construit reuseste astfel sa devina o prezenta dinamica la nivel urban, adapostind in acelasi timp spatii interioare generoase intr-un volum compact si de mici dimenisuni.

Panouri pentru expoziție

Click pe panouri pentru a le vedea la mărimea orginală (se vor deschide într-o fereastră nouă)