Ediții: 2023 | 2021 | 2018 | 2016 | 2014 | 2012

Dantela

Autori:
Andrei Mihăilescu, Oana Mihăilescu
Beneficiar:
persoana privata
Localizare:
România, jud. Ilfov, Pipera, bd. Erou Iancu Nicolae vezi harta
Indicatori:
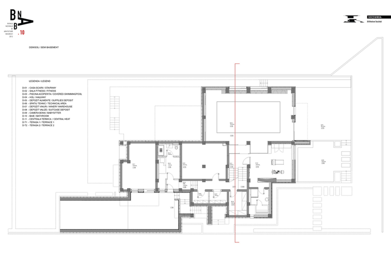
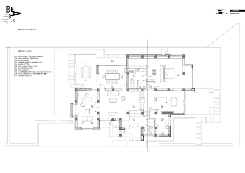
RH: P+1 / Sd: 800 m2 / Su: 670 m2
…dantela ‘cubica’ la exterior cu o transpunere fluida in interior _ asa am putea defini conceptul folosit pentru realizarea proiectului - locuinta unifamiliala - prezentat.
Aceasta locuinta beneficiaza de trei fatade principale, situandu-se pe un teren cu deschidere mare, intre alte doua proprietati la fel de deschise. De aceea am eliminat delimitarile de proprietate opace, inlocuindu-le cu ‘perdele’ de verdeata naturala si incurajand ‘dialogul proximitatilor’ intre cele trei proprietati. Este o locuinta care beneficiaza din plin de relatia cu natura, respira prin suprafetele mari vitrate de pe cele trei laturi, asigurand in acelasi timp intimitatea si linistea familiei.
Fatadele cladirii sunt conturate prin jocul volumetric al elementelor, atat in plan orizontal cat si in plan vertical : retrageri de volume, terase, pergole din lemn care intregesc subtil volumele decupate, elemente verticale lamelare marcate cu placari de lemn, balustrade de sticla care sustin jocul de volume. ‘Dantela cubica’ este pusa in valoare de lumina naturala, dar adevaratul ‘spectacol’ , intreaga scenografie, se ‘dezlantuie’ dupa lasarea serii, prin iluminatul propriu al fatadelor.
Interiorul locuintei este tratat prin contrast cu jocul volumelor exterioare, optand pentru suprafete mari definite cu acelasi finisaj ( placari de pereti compuse cu dressing-uri, spatii de depozitare, dulapuri ): finisaj de lemn, finisaj de lemn lacuit mat si/sau lucios, placari din piele, tapetare, panouri fixe si mobile tridimensionale lacuite mat, etc. Astfel, ‘dantela’ finisajelor peretilor imbraca intr-un mod original volumele rectangulare interioare, aducand un plus liniilor drepte. Dantela interioara este sustinuta si prin alegerea unor elemente punctuale cu forme fluide, organice _corpuri de mobilier, obiecte sanitare si corpuri de iluminat.
Conceptul de ‘dantela’, cu cele doua exprimari diferite pentru exteriorul si interiorul locuintei, s-a centrat pe relatia intrinseca dintre forma,textura si lumina. Si astfel ‘dantela’ a devenit … ‘acasa’.

Panouri pentru expoziție

Click pe panouri pentru a le vedea la mărimea orginală (se vor deschide într-o fereastră nouă)