Ediții: 2023 | 2021 | 2018 | 2016 | 2014 | 2012

Casa C

Autori:
Mihai Ene, Ştefan Cristescu
Colaboratori:
Structura: ing. Paul Ioan, ing. Paula Ciuchea (Profesional Construct)
Beneficiar:
-
Localizare:
România, Bucureşti, str. Vasile Lascăr vezi harta
Indicatori:
RH: D+P+2E+M / Sd: 533 m2
CASA C
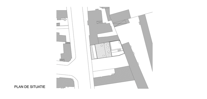
Intervenţia pe un sit aflat într-un vechi cartier bucureştean a fost o oportunitate pe care ne-o doream şi care ni s-a oferit în 2006, sub forma unei case pe strada Vasile Lascăr.
Terenul pus la dispoziţie, cu o deschidere de aproximativ 10 m, având calcane la Nord şi Est şi un lot viran la Sud, se găseste într-o porţiune a străzii ce încă mai păstrează locuinţe de la începutul secolului trecut, agresate tot mai insistent de arhitectura de proastă calitate din ultimii 20 de ani.
Tema de proiectare cu care ne-am confruntat presupunea realizarea unei locuinţe pentru o familie tânără, formată la acel moment din trei membri. Ea a fost de la începutul procesului clar definită împreună cu beneficiarul, stabilindu-se ca obligatorii câteva aspecte: o intimitate aproape totală în relaţie cu strada, transparenţă maximă faţă de curtea privată şi un spaţiu interior extrem de fluid.
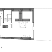
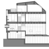
Răspunsul nostru la acest set de cerinţe s-a materializat într-o casă D+P+2+M, dispusă pe aliniamentul stradal, care profită de întreaga lăţime a lotului şi se dezvoltă între cele două limite ale acestuia.
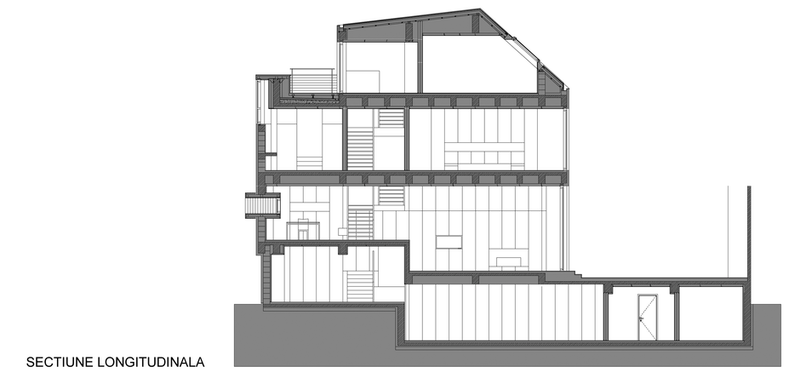
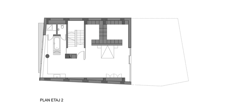
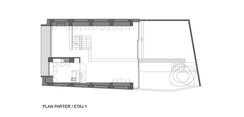
Secţiunea, mai curând decât planul, este instrumentul ce defineşte aici spaţiul. Un gang de 3 m face legătura dintre stradă şi curtea din spatele lotului, protejează intrarea şi, în acelaşi timp, asigură două locuri de parcare acoperite. Introducerea acestui element a permis definirea unui spaţiu interior complex, care până la etajul al doilea se dezvoltă la jumătate de nivel; în ce priveşte legătura dintre demisol, holul de primire, living şi bucătărie, ea se face prin intermediul unei jumătăţi de rampă.
Ambiguitatea funcţională căutată, în special a spaţiilor de la demisol şi parter, precum şi suprafeţele relativ mari s-au dovedit binevenite atunci când, pentru o scurtă perioadă, casa a funcţionat ca o combinaţie de birou şi locuinţă.
Faţada de la stradă are două deschideri, fiecare încercând, prin modalităţi diferite, să asigure intimitatea cerută de temă: la nivelul etajului 1, o fereastră în bandă foarte îngustă prezintă un rebord pronuntat, care face foarte dificilă vizibilitatea dinspre stradă a spaţiului interior; la etajul 2, fereastra care corespunde băii matrimoniale are, în ciuda unei dimensiuni generoase, un parapet de 2 m. Faţada opusă străzii este complet vitrată la nivelul parterului, asigurând legătura vizuală totală interior / exterior.
Din punct de vedere structural, intenţia a fost de a elibera spaţiul interior, aproape complet, prin dispunerea elementelor de susţinere verticală - stâlpi în formă de T - pe limitele laterale ale sitului. Aceasta a însemnat un efort structural care a presupus o atenţie specială acordată planşeelor, optându-se pentru rezolvarea lor în sistem casetat.
Proiectul ne-a convins încă o dată de complexitatea problematicii inserţiilor în situri urbane tradiţionale, dorinţa noastră nemărturisită fiind o racordare, cu mijloace contemporane, la experienţa în materie a arhitecturii interbelice.

Panouri pentru expoziție

Click pe panouri pentru a le vedea la mărimea orginală (se vor deschide într-o fereastră nouă)