Ediții: 2023 | 2021 | 2018 | 2016 | 2014 | 2012

Durante

Autori:
Andrei Mihăilescu, Oana Mihăilescu
Beneficiar:
sc Eurocastel SA
Localizare:
România, jud. Prahova, Ploieşti, str. Anton Pann vezi harta
Indicatori:
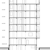
RH: P+M+6 / Sd: 2549 m2
Durante

Zona istorica…tesut urban destructurat…un centru care cere nou, actual si confortabil in materie de locuire…acestea sunt provocarile si totodata raspunsul nostru pentru imobilul residential din centrul Ploiestiului.

La prima vedere poate parea ‘atipic’ zonei, fiind un insert modern cu forme précis conturate si dezvoltat pe verticala. Dar exact acestea au fost atuu-rile pe care am mizat si pe care le-am imbinat in mod subtil cu cerintele zonei in care este amplasat : am optat pentru un volum al cladirii in care zonele vitrate sunt subordonate dimensional zonelor de plin, iar aceste zone de plin sunt tratate diferentiat, pentru marcarea volumelor, cu vopsitorie texturata, similara cladirilor din zona, si cu o placare de fatada ventilata in textura de lemn, cu placi in dimensiuni diferite, care sa vibreze planul fatadei si in acelasi timp sa-l scaleze.

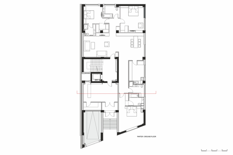
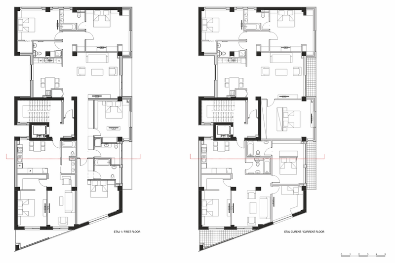
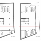
Din punct de vedere functional imobilul beneficiaza de doua subsoluri pentru parcare ( primul subsol este accesat direct din strada,al doilea subsol este accesat prin intermediul unui lift rutier ), iar parterul, mezaninul si cele 6 etaje au fost concepute astfel incat gradul de scalabilitate si flexibilitate al apartamentelor sa reprezinte un alt atuu in procesul de comercializare al acestora. Si am reusit. Am formulat mai multe alternative functionale si de compartimentare, atat pentru fiecare apartament cat si pentru fiecare etaj in intregime, oferind astfel potentialilor clienti diverse optiuni ‘predefinite’, structurate ca abordare, care sa se inscrie in conceptul general si de detaliu al cladirii si care sa ofere ‘retete’ de succes pentru relatia proprietar-client fara a recurge la compromisuri si/sau solutii conjuncturale.

De aceea proiectul s-a bucurat de un real succes, dezvoltatorul comercializand intregul imobil intr-un timp scurt, in plin declin al pietei imobiliare.

Panouri pentru expoziție

Click pe panouri pentru a le vedea la mărimea orginală (se vor deschide într-o fereastră nouă)