Ediții: 2023 | 2021 | 2018 | 2016 | 2014 | 2012

Casa Badea

Autor:
Bogdan Tofan
Colaboratori:
Arhitectura: arh. Claudia Dragomir, arh. Ionut Panait
structura: ing. Paul Buzamurga
termoventilatii: ing. Elena Stefanescu
instalatii electrice: ing. Mihai Constantinescu
instalatii sanitare: ing. Ion Obretin, ing. C. Vulpas
Localizare:
România, Bucureşti, str. Elena Clucereasa nr. 49B vezi harta
Indicatori:
RH: P+1 / Sd: 240 m2 / Su: 132 m2
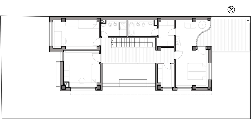
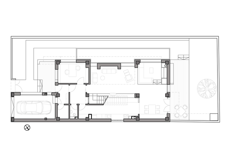
Proiectul a avut ca scop realizarea unei locuinte urbane, cu calcan, orientata est - sud- est. Locuinta are repartizata zona de zi la parter: birou, spatiu deschis cuprinzand livingul, scara si locul de luat masa, bucataria, grup sanitar, si zona de noapte la etaj: trei dormitoare, doua bai si o terasa. Livingul este deschis pe verticala spre sud, iar pasarela de la etaj, care uneste dormitoarele, priveste de sus in spatiul generos si in gradina de la sud. Fatada este configurata ca o panglica continua alba care inconjoara spatiul de locuit si aduna volumetria casei.

Panou pentru expoziție

Click pe panou pentru a-l vedea la mărimea orginală (se va deschide într-o fereastră nouă)