Ediții: 2023 | 2021 | 2018 | 2016 | 2014 | 2012

ATR House

Autor:
Dragoş Rugină
Localizare:
România, jud. Vaslui, Vaslui, str. Tipografiei nr. 2 vezi harta
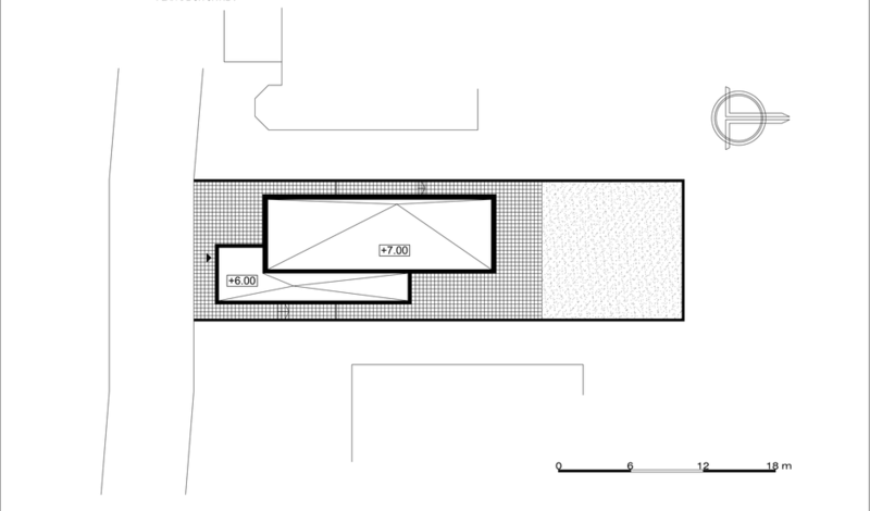
ATR House este un proiect de locuinta urbana, conceputa sub forma unei manifestari a simplitatii intr-un context construit ambiguu. Constrangerile unui teren ingust, precum si retragerile urbanistice impuse, au fost transformate in mijloace arhitecturale. Solutia este subordonata axei de miscare dinspre spatiul public spre cel privat, reflectand conditiile geometrice si dinamice ale sitului.

Intrucat proiectul se situeaza intre o cladire ecletica neglijata si una post- comunista, acesta devine parte dintr-o trilogie neintentionata de momente istorice. Apare, asadar, masa critica pentru dezbatere si analiza arhitecturala. Fatada stradala este conceputa astfel incat legaturile vizuale catre zona publica sa fie reduse la minim, cu toate ca prezenta casei este sustinuta de un volum impresionant in consola, care protejeaza accesul intr-o maniera impozanta si neobisnuita.

Detalierea atenta a fatadelor si optiunea pentru materiale simple completeaza si sustin calitatile volumetrice generale, rezultatul fiind un produs arhitectural cu personalitate puternica. Comunicarea stransa, dintre spatiul interior si gradina privata exterioara, se datoreaza vitrajelor generoase ale fatadei posterioare, zona de zi avand o perpetua relatie cu exteriorul. Gradina interioara din centrul casei, deschisa pe doua niveluri, introduce o miscare verticala si faciliteaza dialogul vizual intre cele doua niveluri de locuire. Astfel, vegetalul alaturat mineralului, umanizeaza designul minimalist al interiorului.

Peretii de incinta, simpli, albi, ce inconjoara terenul pe trei laturi, contribuie la jocul inchis/deschis, public/privat.

Demersul de proiectare a pornit de la preferinta clientului pentru designul contemporan si de la dorinta acestuia de a beneficia de spatii cu o atmosfera intima, dar in acelasi timp dinamice. Conceptul a urmat o serie de etape de distilare stilistica, pentru a obtine o arhitectura expresiva si desavarsita.

Panouri pentru expoziție

Click pe panouri pentru a le vedea la mărimea orginală (se vor deschide într-o fereastră nouă)