Ediții: 2023 | 2021 | 2018 | 2016 | 2014 | 2012

Casa C

Autor:
Dragoş Petru Bocan
Colaboratori:
Arh. Dumitrele Emilia
Arh. Giurea Diana
Arh. Gherase Loredana
Arh. Mătieş Ciprian
Structura: S.C. THM GRUP S.R.L.
Instalaţii: S.C. C& C INSTAL S.R.L.
Localizare:
România, jud. Arad, Arad, str. Romei nr. 5 vezi harta
Indicatori:
RH: S+P+1E / Sd: 473.53 m2 / Su: 307.28 m2 / POT: 35.01 / CUT: 0.95
Casa prezentată în lucrarea de faţă este amplasată într-un cartier rezidenţial liniştit al Aradului situat în imediata proximitate a falezei râului Mureş. Ea a trebuit să se încadreze în atmosfera locaţiei, să ofere un spaţiu interior destul de mare raportat la sit şi un grad mai ridicat de intimitate.

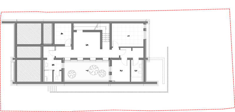
Spaţiul interior, desfăşurat pe trei nivele este organizat în jurul dominantei verticale reprezentate de locul de luat masa. În jurul acestui spaţiu se organizează circulaţia verticală, orizontală, introducerea luminii şi ventilaţia naturală. Dining-ul porneşte din parter, traversează etajul şi este luminat la partea superioară de un grup de patru ferestre zenitale automatizate. Circulaţiile tangente la el mai primesc lumină de pe partea sudică prin nişte ferestre încadrate într-un perete consistent şi texturat. La partea nordică traseul din subsol până la etaj este recognoscibil fiind marcat de un perete în formă de „U”, care îşi păstrează textura pe toate nivelele.

Spaţiul interior dominant este marcat la exterior printr-un intrând-rost în volumetrie, separând construcţia în două corpuri legate printr-un zid retras penetrat de goluri înalte accentuate de ancadramente de oţel. Acest zid, important pentru compoziţie, se poate citi de la etaj, pană la subsol, unde coboară într-o curte de lumină scufundată.

Exteriorul casei este un continuu dialog între orizontale şi verticale, reprezentate de zidurile principale, respectiv de planşee, care se prelungesc spre exterior, formând rezalite, balconul la stradă şi, cel mai important pentru aspectul general, o cornişă generoasă perimetrală care se extinde mult în consolă spre sud conferind ansamblului un aspect primitor şi protectiv.

Lumina este o temă importantă fiind introdusă şi folosită în diverse moduri pentru a crea un interior familiar şi divers. Ea separă cornişa orizontală de la partea superioară de restul construcţiei cu ajutorul unei benzi de ferestre şi joacă un rol definitoriu pentru caracterului spaţiului interior care este mult mai viguros datorită iluminării diverse, mai ales datorită aportului de lumină zenitală.

Texturile interioare şi exterioare sunt esenţiale pentru definirea identităţii atât la nivel de ansamblu cât şi la nivelul fiecărei încăperi în parte. Texturile exterioare sunt reţinute, reprezentate de un perete ventilat placat cu fragmente de travertin pentru planele verticale accentuate şi de o tencuială albă simplă. Spre deosebire de exterior care este reprezentat mai mult de non-culori, interiorul primeşte o paletă de culori calde texturate, dar unificate de un omniprezent parchet de nuc şi de albul tavanelor.

Anvelopa cu un grad mare de izolare, tâmplăriile avansate împreună cu instalaţiile asigură un grad ridicat de confort furnizând încălzire, răcire, mai multe nivele de iluminat cu un consum redus de energie.

Relaţia cu clientul şi cu constructorul este definitorie pentru această lucrare, ea fiind una continuă şi întotdeauna bună, caracterizată de un dialog permanent.

Panouri pentru expoziție

Click pe panouri pentru a le vedea la mărimea orginală (se vor deschide într-o fereastră nouă)