Ediții: 2023 | 2021 | 2018 | 2016 | 2014 | 2012

Casa CN

Autor:
Eliodor Streza
Colaboratori:
arh. Monica Butnaru

Structura: Rozini srl
Fotografii: Cosmin Dragomir
Beneficiar:
Ionel David
Localizare:
România, Bucuresti, Aleea Codrii Neamţului nr. 3M vezi harta
Indicatori:
RH: Sp+P+1 / Sd: 316 m2
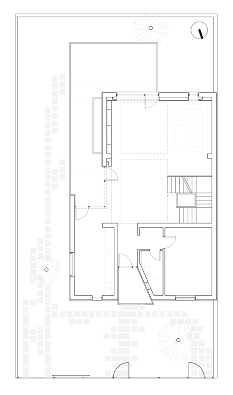
Această locuinţă din Bucureşti este construită pe un teren de 350 mp amplasat peste suprafata unui fost parc. Pentru a nu distruge vegetatia bogata a fostului parc si pentru a pastra atmosfera zonei, arhitectul şi beneficiarul au convenit asupra păstrării unui număr cât mai mare din arborii existenţi pe teren; au fost astfel menţinuţi trei dintre cei patru arbori.
Arborii pastrati au determinat amplasarea casei pe teren fiind elemente de conditionare similare cu conditionarile de urbanism.
Conform planului de urbanism se putea construi o casa cuplata la calcan pe latura de est. Impletind dorinta beneficiarului de a avea o sarpanta cu invelitoare de tigla si ideea de a avea o volumetric cu linii moderne, a condus la organizarea acoperisului in trei pante care se aduna spre interior, spre o zona ingusta cu jgheab ascuns.
Aceasta solutie a multumit pe toata lumea si a creat in acelasi timp spatii generoase si spectaculoase in etaj unde tavanul interior a urmarit pantele acoperisului.
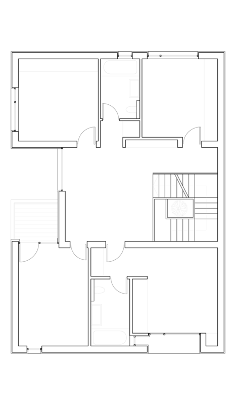
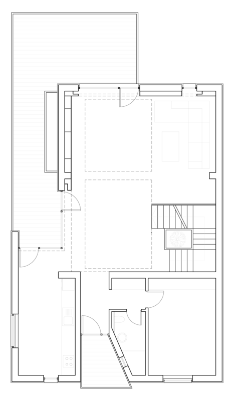
Casa este organizata cu un subsol tehnic, cu un parter ce cuprinde zona de zi, bucatarie, grup sanitar, un dormitor si cu un etj ce cuprinde 4 dormitoare si 2 bai.
Etajul se extinde peste parter cu un dormitor intr-o consola generoasa ce ofera curtii mai mult spatiu si in acelasi timp umbreste terasa de dedesupt (din parter).
Pozitia centrala a scarii intr-un spatiu deschis, cu lumina naturala din abundenta atat la parter cat mai ales la etaj (geamuri generoase si ferestre velux) ofera casei un element de atractie si fluiditate spatial intre nivele. Holul etajului castiga functionalitate devenind un spatiu de joaca preferat de copii.
Fluiditatea spatiala se observa si in plan orizontal la nivelul parterului. Prin amplasarea golurilor si transparenta gardului spre strada privirea poate strabate prin casa dintr-o parte in alta a terenului.
Tavanul din beton aparent al livingului, placarile cu sticla vopsita ale bailor, balustrada de sticla a scarii prinsa doar in cantul placii de beton, mobilierul la comanda incastrat si disimulat in culoarea peretelui, spatiile deschise, fluide illuminate natural, sunt solutii accesibile care odata acceptate isi dezvaluie aturile, aduc “sarea si piperul” si acele elemente de culoare.

Panouri pentru expoziție

Click pe panouri pentru a le vedea la mărimea orginală (se vor deschide într-o fereastră nouă)