Ediții: 2023 | 2021 | 2018 | 2016 | 2014 | 2012

Casa „G”

Autor:
Mihaela Eliza Buzilă
Localizare:
România, jud. Argeş, comuna Bascov, sat Valea Ursului vezi harta
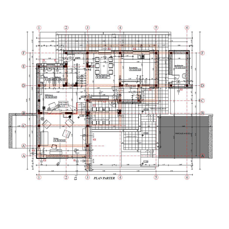
Proiectul prezentat rezolvă o locuinţă unifamilială pe un teren în pantă. Amplasamentul a fost ales astfel încît casa să profite de perspectivele favorabile asupra văii, construcţia fiind plasată la liziera pădurii. Am propus o "curgere" de terase descoperite care se aşează pe pantă din jocul cărora a reieşit volumetria de ansamblu. Proiectul este în curs de finalizare urmînd ca, dacă trece de preselecţie, să prezentăm fotografii ale obiectivului finalizat.

Panou pentru expoziție

Click pe panou pentru a-l vedea la mărimea orginală (se va deschide într-o fereastră nouă)