
Comentariul autorului:
Zona aleasă fost cea a Stațiunii de Cercetări Horticole USAMV. Amplasamentul inițial se situa adiacent intersecției dintre strada Constantin Brâncuși și strada Borhanci, însă a fost sugerată orientarea către Nordul stațiunii, la una dintre intrările existente, vis a vis de Parking Băișoara.
Situl dispune de numeroase conexiuni cu zonele cheie ale orașului și cu amplasamentele facultăților conexe, cu ajutorul liniilor multiple de transport în comun existente. Regimul de înălțime este relativ variat în zona studiată, iar funcțiunile principale regăsite sunt cele de locuire și învățământ, cercetare.
Conceptul urbanistic urmărește 3 puncte principale:
- continuarea caracterului de urbanism deschis a zonei prin transformarea unei bariere (și anume, gardul de beton actual) într-un spațiu deschis publicului - o piațetă pe post de „capăt de perspectivă”
- crearea unei noi zone verzi publice care face o legătura pietonală cu Parcul Detunata și deservește atât cartierul, cât și stația de bus de vis a vis
- rematerializarea amprentei unei foste sere, care a devenit un spațiu neîngrijit și neutilizat.
Astfel, centrul se deschide către piațeta publică, iar clădirile adiacente existente pot primi, în urma unei renovări, funcțiuni mai apropiate caracterului stațiunii, cu scop educativ (ateliere de horticultură, centru gastronomic, un magazin mai amplu, etc.)
Clădirea centrului se împarte în 2 volume conectate: unul destinat cercetării, mai retras, și celălalt cu scop informativ și educativ, în contact cu spațiul public.
Astfel, gradarea public-privat în interiorul clădirii se va face de la dreapta la stânga (adica de la E la V) și de jos în sus.
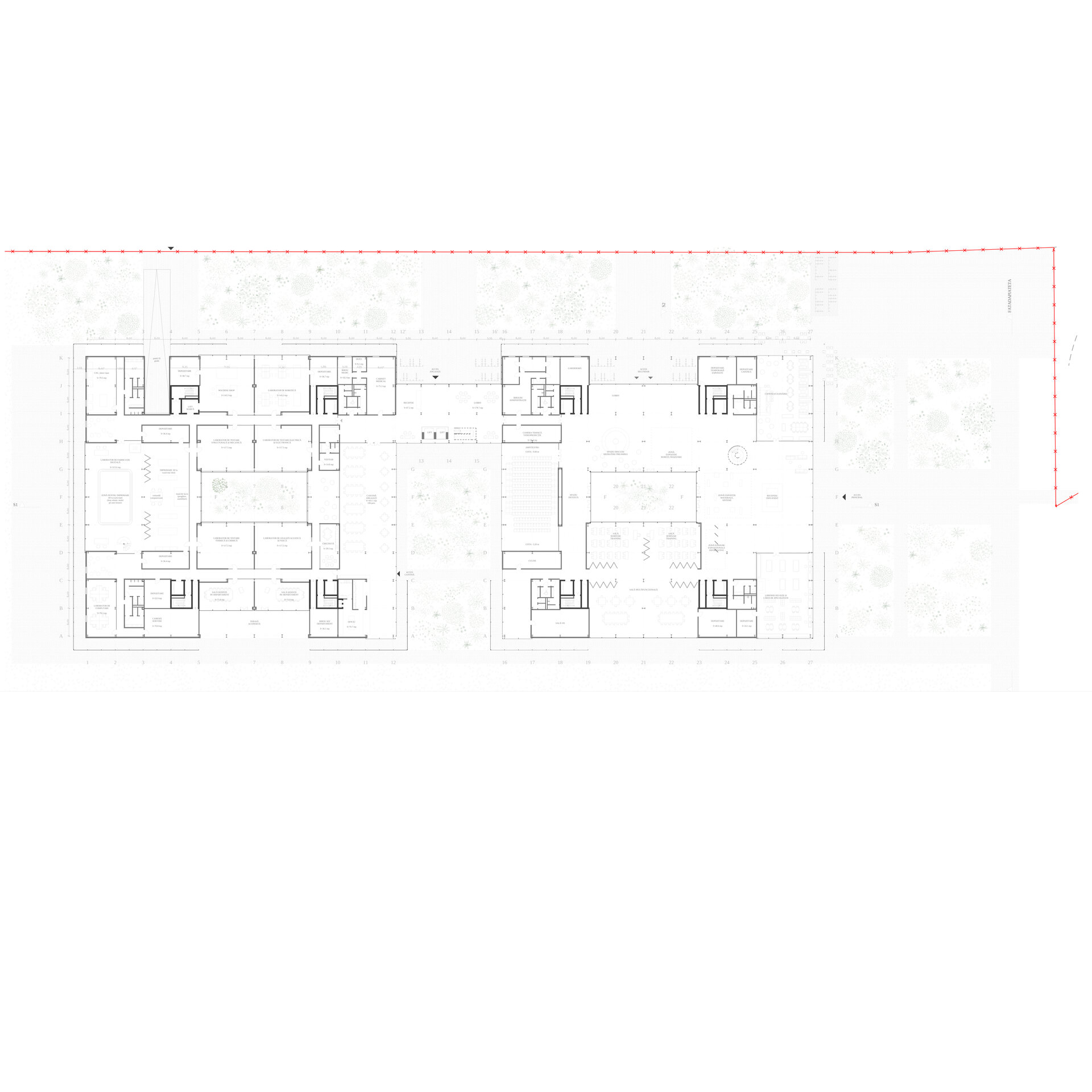
Legătura dintre corpuri prezintă intrarea angajaților, iar intrarea principală a publicului se face dinspre piațetă. Un foaier amplu, multifuncțional o conectează de intrarea secundară și găzduiește zone de primire și discuții, zone expoziționale și două funcțiuni deschise către piațetă - o cafenea și o librărie cu reviste științifice. Foaierul deservește atât sălile multifuncționale, de seminar și amfiteatrul, cât și spațiile de la etajul superior.
Cercetarea, ca flux al informației, se desfășoară sus în jos, datorită greutății echipamentelor. La parter se desfășoară astfel departamentul de inginerie a sistemelor, cu laboratoare specifice de fabricație aditivă, substractivă și de manipulare robotică, laboratoare de testare și de computare.
Adiacent gradinii principale este amplasată și o cantină pentru angajați.
Curțile au, în primull rând, rol sustenabil de ventilare a fațadelor și iluminare prin forma lor strategică, ținând cont de unghiul razelor de-a lungul zilei - curțile se alungesc pe laturile N-S și se îngustează pe E-V.
Legătura dintre corpuri prezintă intrarea angajaților, iar intrarea principală a publicului se face dinspre piațetă. Un foaier amplu, multifuncțional o conectează de intrarea secundară și găzduiește zone de primire și discuții, zone expoziționale și două funcțiuni deschise către piațetă - o cafenea și o librărie cu reviste științifice. Foaierul deservește atât sălile multifuncționale, de seminar și amfiteatrul, cât și spațiile de la etajul superior.
Cercetarea, ca flux al informației, se desfășoară sus în jos, datorită greutății echipamentelor. La parter se desfășoară astfel departamentul de inginerie a sistemelor, cu laboratoare specifice de fabricație aditivă, substractivă și de manipulare robotică, laboratoare de testare și de computare.
Adiacent gradinii principale este amplasată și o cantină pentru angajați.
Curțile au, în primull rând, rol sustenabil de ventilare a fațadelor și iluminare prin forma lor strategică, ținând cont de unghiul razelor de-a lungul zilei - curțile se alungesc pe laturile N-S și se îngustează pe E-V.
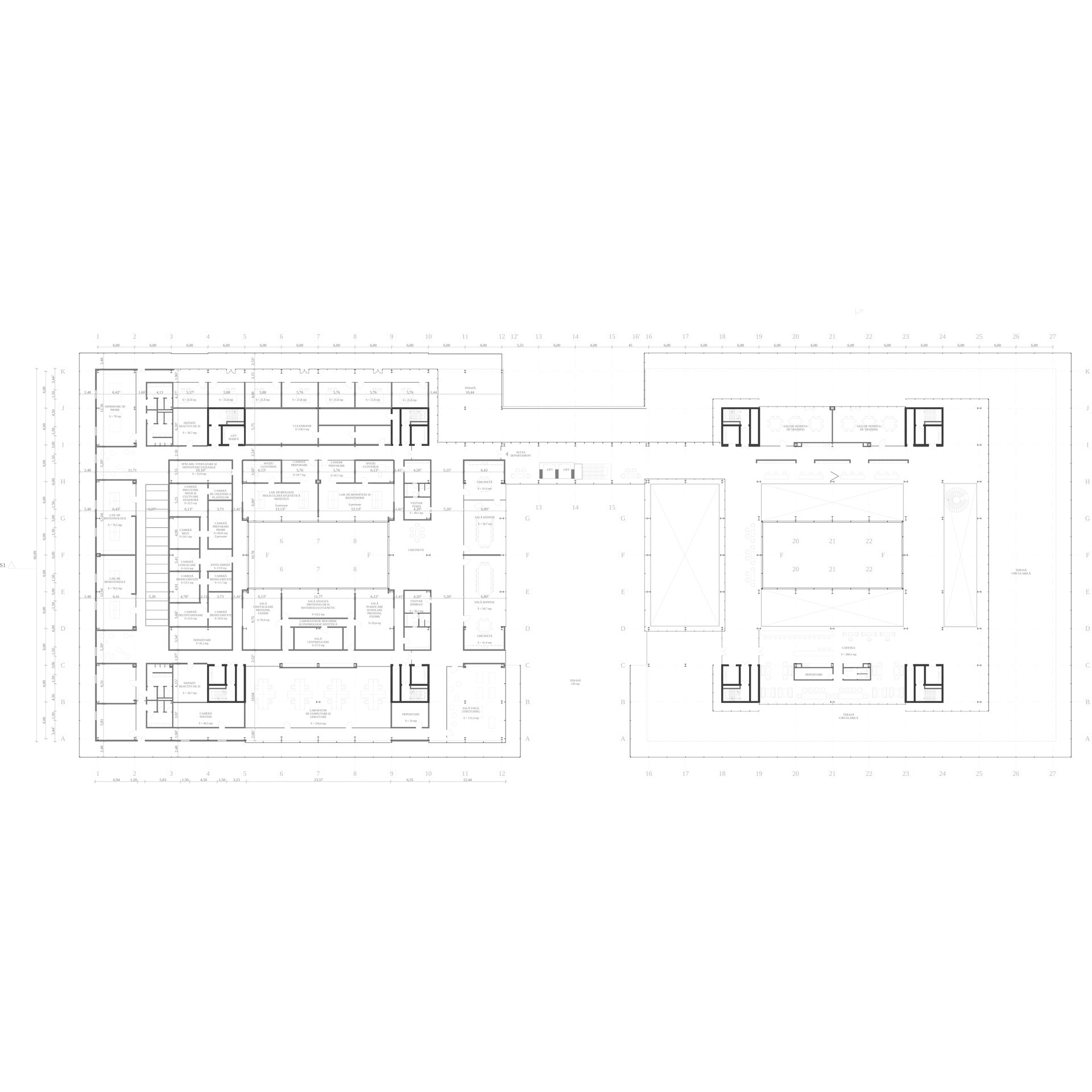
Etajul 1 găzduiește spații destinate studenților și masteranzilor, precum săli de training, de seminar, săli media și laboratoare de diferite dimensiuni și capacități, iar adiacent curții principale, se află o bibliotecă specializată.
Se poate observa schema de circulație clară, cu coridoare ce se alipesc curții, creând zone de pauză sau îndepărtându-se pe latura lungă, lăsând loc funcțiunilor să beneficieze de lumină naturală.
În zona de cercetare, la acest etaj avem departamentul de inginerie a materialelor, cu laboratoare de cercetare, de testare și de computare. Schema de circulație se respectă și aici și este completată de un coridor exterior zonei de laboratoare, ce găzduiește spații complementare, dincolo de filtru vestiarelor. Practic, circulația este împărțită în două fluxuri - unul curat, înspre interior, și unul murdar, spre exterior.
În interiorul departamentului este și o bibliotecă de materiale, care comunică pe verticală cu laboratorul de fabricație de la parter printr-o scară elicoidală și o pratformă hidraulică.
Ultimul etaj este destinat departamentului de cercetări biologice și biologie sintetică, unde se nasc soluții inovatoare, prin adaptare sau chiar manipulare genetică, ce se pot dezvolta în celelalte două departamente.
Cercetarea pornește astfel de la scara nano și micro, la scara materialelor și, în final, la scarra sistemelor.
În corpul public, etajul se retrage, făcând loc unei terase mai intime pentru cercetători și viitorii specialiști, care se află în legătură directă cu o cafenea și săli de training și de ședințe. Deasupra se află zona de cazare destinată în special cercetătorilor, dar și doctoranzilor și invitaților/practicanților din-afara orașului. Grădina principală are ca prim rol separarea celor două corpuri.
Transparența oferită de materialitatea corpului de legătură, ce găzduiește intrarea angajaților, permite o relație vizuală între stradă și stațiune, ce susține conceptual caracterul de urbanism deschis al zonei.
Fațada reflectă simetria și modularitatea planului, având și câteva elemente de accent, precum spargerea colțului către stradă.
Coaja exterioară va reprezenta un punct principal al inovației în proiect, materialul placajelor fiind realizat în cadrul centrului de cercetare. Astfel, aplicația la scară arhitecturală a unor inovații, vor fi expuse și publicului, implinind 3 roluri: rol estetic și de „spectacol” pentru public, rol aplicativ - testare la scară arhitecturală reală și rol sustenabil - prin proprietatea materialului de a îndeplini anumite funcții, fără niciun fel de poluare.