
Comentariul autorului:
Proiectul propune o revitalizare imaginară a unei loc oniric, care "îți dă o ușurință, ca și cum ai trăi într-un tablou" (Federico Fellini). Locul imaginat este zona EUR cartier adiacent Romei, un teritoriu cu o puternică încărcătură arhitecturală și culturală, dar care suferă de o subutilizare evidentă a spațiilor publice. Proiectarea a pornit de la o reflecție critică asupra lipsei unor spații incluzive și flexibile, capabile să răspundă nevoilor diverse, dorințelor și activităților spontane ale comunității locale. Ca studiu de caz central, a fost analizată relația dintre portic și dialogul dintre spațiile construite și cele neconstruite din jurul Palatului Națiunilor Unite — un reper atât simbolic, cât și fizic al zonei. Mai mult, în plan secund a fost studiat felul în care locul scenografic în sine poate suporta un decor nou.
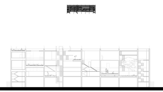
Prima etapă a analizei s-a concentrat pe reinterpretarea porticului nu doar ca spațiu tranzitoriu sau rezidual, ci ca oportunitate arhitecturală. Din această perspectivă a luat naștere o intervenție vizionară: crearea unui nou tip de portic, atașat celui existent, dar extins și pe verticală. Această extindere, pe care am numit-o „camere urbane”, transformă un gol perceput anterior ca fiind marginal și subevaluat într-un loc vibrant și semnificativ. Conceptul își extrage inspirația din lirismul abstract al artistului italian Fausto Melotti și din atmosferele onirice, ușor suprarealiste, prezente în cinematografia lui Federico Fellini, împletind arta, arhitectura și narațiunea spațială.
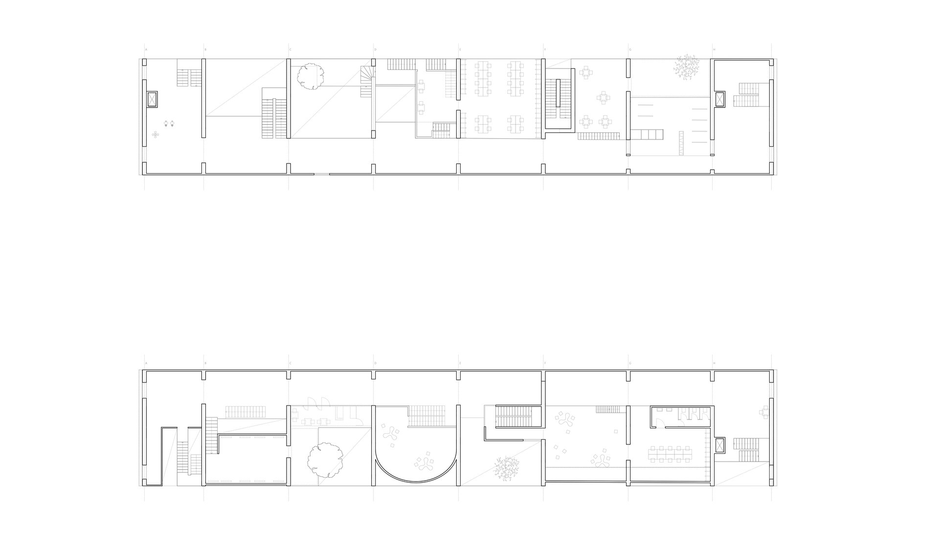
Prima dintre cele două structuri propuse este amplasată strategic între clădirile existente și este articulată printr-o succesiune de partiții structurale care găzduiesc o diversitate de „camere urbane” deschise: zone de lectură, spații verzi, platforme colaborative, zone de joc și agrement, precum și spații flexibile pentru evenimente culturale. Ele sunt concepute ca adevărați „condensatori sociali” — spații comunitare a căror absență s-a resimțit până acum în oraș — integrate într-un limbaj arhitectural complementar, ce păstrează densitatea existentă și adaugă un nou puls în inima cartierului.
A doua structură reimaginează fațada interioară, folosind un limbaj arhitectural diferit de cel al primeia. Este alcătuită dintr-o structură metalică aeriană, ușoară, care integrează o scară desfășurată pe întreaga lungime a fațadei. Acest element nu doar creează o circulație verticală dinamică, ci și reface relația, mult timp neglijată, dintre curtea interioară și clădirile din jur, creând conexiuni pe toate nivelurile și stimulând permeabilitatea vizuală și fizică.
Împreună, aceste două intervenții alcătuiesc ceea ce poate fi descris drept o scenografie a jocului urban — o narațiune spațială stratificată și interactivă, aflată în continuitate cu țesutul cartierului. Ele invită utilizatorii să experimenteze locul în multiple moduri: să îl parcurgă, să se oprească în el, să îl locuiască temporar sau permanent și să își reconfigureze constant relația atât cu întregul și părțile sale, cât și cu granița dintre interior și exterior. Astfel, proiectul nu adaugă doar structuri noi, ci redefinește modul în care spațiul poate fi perceput, utilizat și locuit emoțional în peisajul urban în continuă transformare al zonei EUR.