
Comentariul autorului:
Amplasată într-un luminiș al unei păduri de stejari, casa prezintă tema locuirii temporare și a locuirii în natură. Un loc al creației pentru un cuplu care își dorește învecinarea cu natura și extrovertirea casei către aceasta.
Tema de proiectare a avut ca parametri definitorii construirea unei reședințe care să adăpostească acest cuplu într-o suprafață desfășurată sub 100 mp.
Pornind de la acest criteriu, fără echivoc, dimensiunea ne-a trimis cu gândul la aceea a unui pavilion — la un pavilion locuibil. În acest sens, am propus o trimitere referențială la Black Pavilion de Buero Wagner, dar în cazul nostru nucleul proiectului reprezintă articulația cu exteriorul.
La nivel de concept, casa este caracterizată printr-o fațadă flexibilă, versatilă, adaptabilă nevoilor, ce permite dublă deschidere în peisajul montan. Pe o latură, prispa pe dublă înălțime, luminată zenital, care odată deschisă mărește zona utilă a casei la nivelul parterului. Iar pe de altă parte, zona de zi a casei ce se orientează spre pădure, unde panourile fațadei se deschid și formează o zonă protejată, o extindere a zonei de zi în spațiul exterior, în cadrul natural. Astfel, conturul casei estompează și întrepătrunde limitele spațiului interior cu cel al naturii.
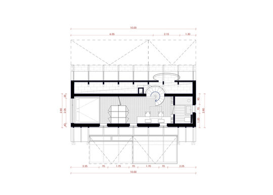
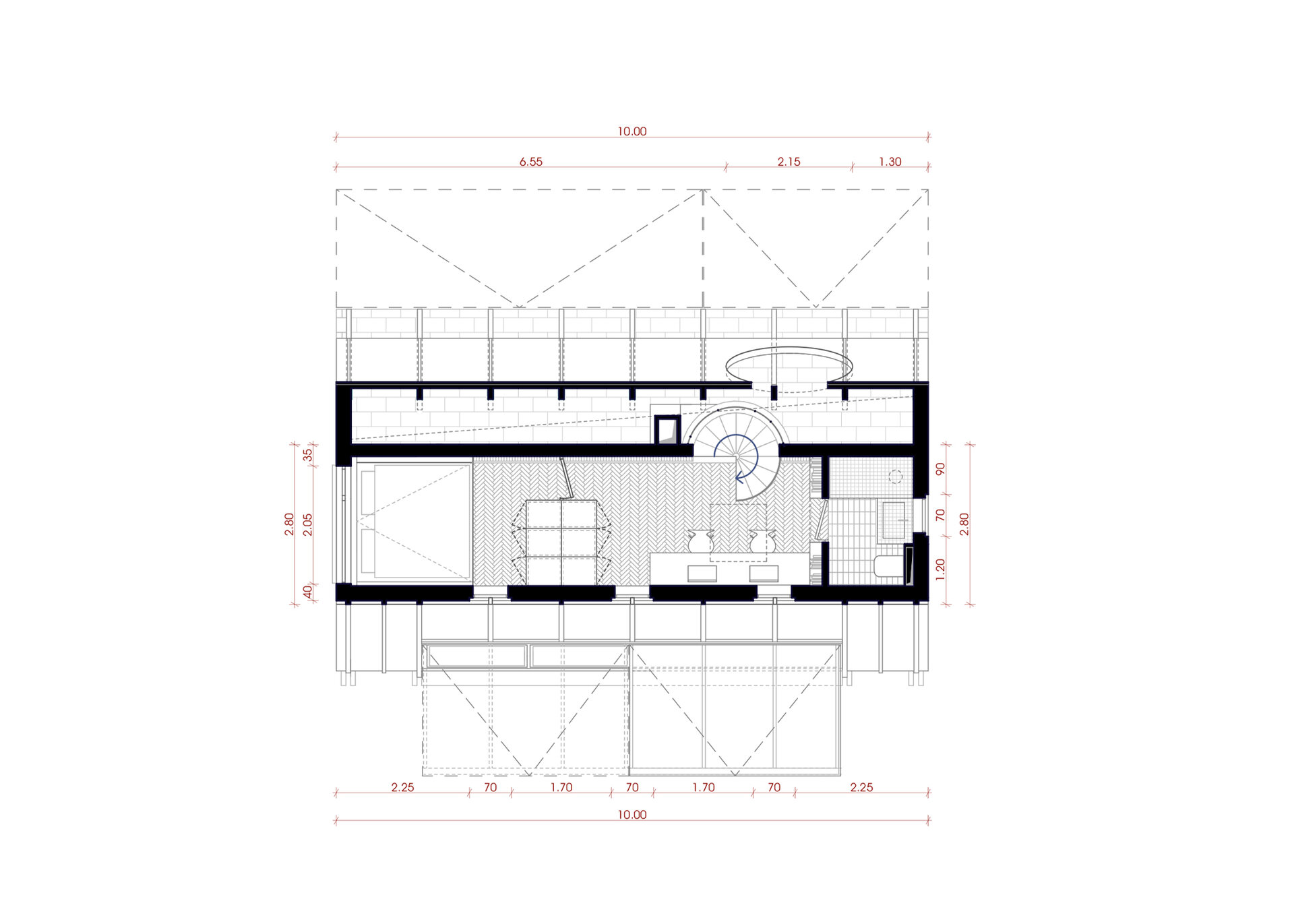
Nucleul casei reprezintă șemineul în jurul căruia se desfășoară zona de zi. Aici este adăpostită bucătăria, diningul, livingul, o toaletă de serviciu și o depozitare — pe o parte, și prispa — pe cealaltă. Accesul se face după modelul arhetipal al intrării pe prispa și apoi în spațiul comun al casei. Parterul e unul flexibil, un perete pivotant permite contopirea cu zona prispei și maximizarea suprafeței parterului fără a afecta funcționalitatea casei, oferind un alt mod de a o parcurge. Alăturat șemineului, dintr-un volum filiform dinamic, stă scara ce te conduce la etajul superior, zona de noapte și biroul de creație. Lumina care pătrunde accentuează zona intimă a casei, venind prin oculusul decupat din fațada prispei, zenital deasupra biroului și prin trei fante în fațadă pentru priviri "de-a lungul pădurii".
La exterior, învelisul și structura de lemn sunt tratare cromatic în contrast complementar cu frunzișul de stejar, cu o nuanță de bordeaux ce scoate la iveală venatura lemnului. Singura piesă din beton, un beton lăsat aparent din cofraj, rămâne șemineul, ca miez al casei.