
Comentariul autorului:
Școala de vară ARCHÉ s-a desfășurat în comuna Dragu din județul Sălaj și a reprezentat o inițiativă complexă de educație alternativă și regenerare culturală, cu accent pe patrimoniu, comunitate și inovație. Programul a reunit studenți și tineri profesioniști din domenii diverse, precum arhitectură, arheologie, peisagistică, antropologie, geografie, studii culturale și jurnalism, oferindu-le posibilitatea de a lucra direct cu monumente istorice aflate în stare critică și de a contribui la testarea unor modele interdisciplinare de regenerare a mediului rural prin patrimoniu și oameni.
Castelul Wesselényi-Bethlen, moara cu valțuri și biserica de lemn din Dragu au constituit reperele principale ale atelierelor. Activitățile au îmbinat analize stratigrafice și cercetări de arheologie a arhitecturii cu documentarea mulinologică și cu intervenții delicate de conservare a lemnului, toate coordonate de specialiști consacrați și desfășurate împreună cu participanții. Tehnologiile digitale moderne, de la fotogrametrie la scanări 3D și LiDAR, au permis realizarea unor modele interpretative utile atât pentru înțelegerea procesului de degradare, cât și pentru elaborarea unor scenarii de conservare și valorificare. Materialul rezultat din zidul colapsat recent al castelului nu a fost tratat ca deșeu, ci ca resursă valoroasă de memorie și de cunoaștere, integrat într-o abordare sustenabilă care îmbină principiile ecologiei patrimoniului cu cele ale economiei circulare.
Un element esențial al școlii l-a constituit dimensiunea comunitară. Localnicii au participat la ateliere și mese comune, la dialoguri despre potențialul patrimoniului ca motor al dezvoltării și la evenimente culturale deschise publicului. Copiii au explorat castelul și au lucrat direct cu piatra și cărămida, exersând prin joc și contact nemijlocit relevanța monumentului. Foști morari au transmis memoria tehnică și socială a morii, iar invitații au deschis perspective prin dezbateri și sesiuni de co-creare. Festivalul Fain de Dragu, desfășurat la final, a demonstrat că patrimoniul poate deveni resursă vie și sărbătoare colectivă, reunind sute de participanți locali și vizitatori.
Școala a inclus și ateliere complementare de bioarheologie și de interpretare a peisajului cultural, excursii la situri UNESCO și muzee de referință, precum și întâlniri cu inițiatori de proiecte emblematice pentru revitalizarea patrimoniului din România. Aceste activități au oferit participanților o perspectivă comparativă și au consolidat sentimentul de apartenență la o rețea mai largă de practici inovatoare.
În același timp, experiența a scos în evidență necesitatea unor acțiuni continue. Parcul dendrologic al castelului, parte a aceluiași ansamblu monument istoric, a fost decimat de-a lungul timpului, iar arborii istorici supraviețuitori se află într-o stare precară. Este nevoie de evaluări fitosanitare, de planuri de reconstrucție peisageră și de reînscrierea acestui spațiu în viața comunității ca parc cultural, educativ și recreativ. Anexele păstrate ale fostului domeniu nobiliar trebuie documentate și integrate într-o strategie coerentă de revitalizare a peisajului cultural, într-o viziune de ansamblu care să îmbine cercetarea istorică cu intervențiile contemporane.
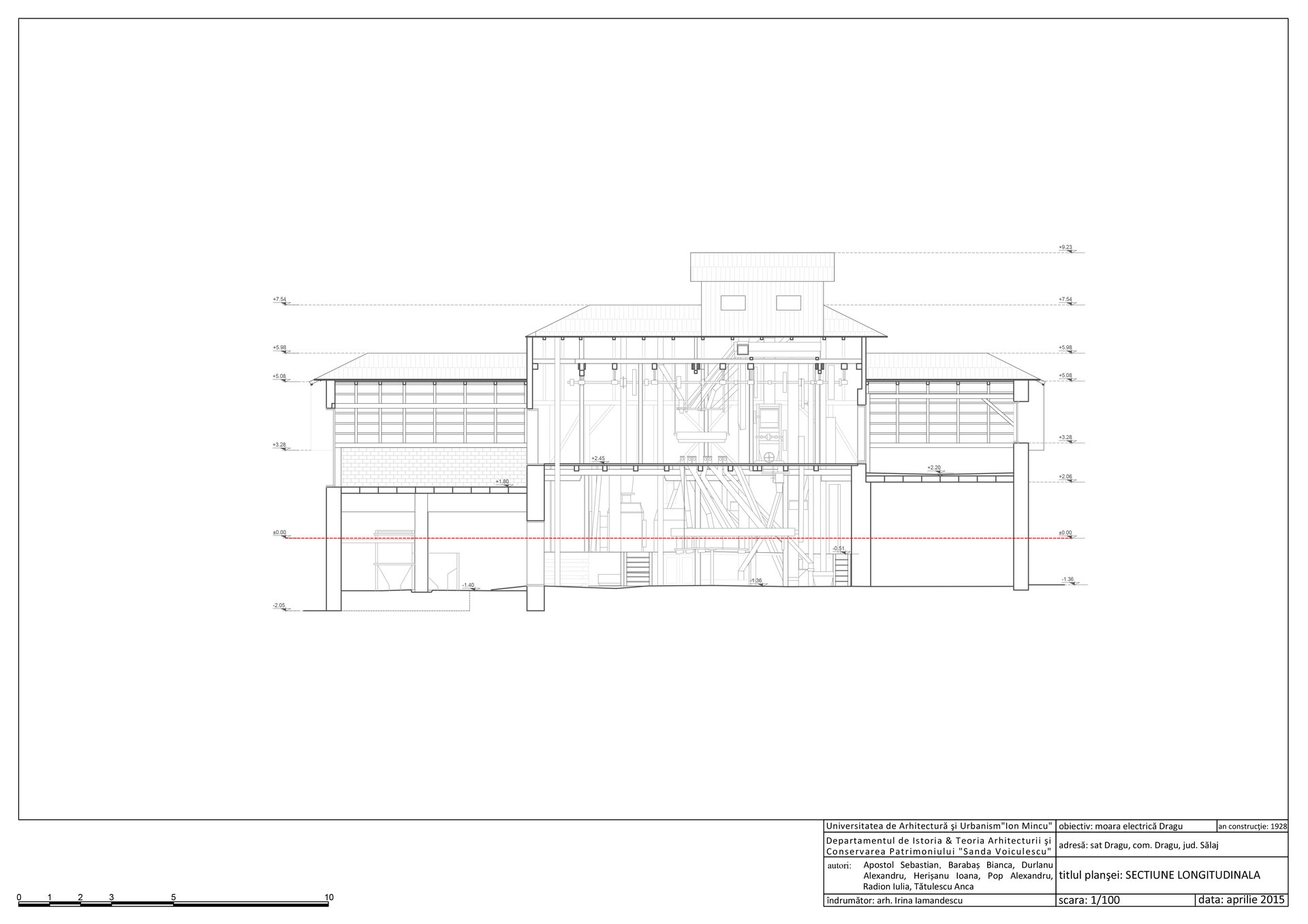
În cazul bisericii de lemn au fost realizate până acum operațiuni de documentare și diagnostic, care au evidențiat vulnerabilitățile structurale și necesitatea unor intervenții imediate. Printre planurile prioritare pentru viitor se află reinstalarea clopotelor dispărute și consolidarea structurii afectate, acțiuni esențiale pentru asigurarea stabilității monumentului. Aceste intervenții planificate vor constitui baza unui program amplu de restaurare și reintegrare a bisericii în viața comunității, cu respect față de specificul său material și spiritual. Moara cu valțuri, rar exemplu de patrimoniu tehnic rural, are nevoie de restaurare completă și de repunere în funcțiune, pentru a putea fi valorificată simultan cultural și economic.
În perspectivă, este necesară finalizarea unui plan de interpretare a patrimoniului local, care să includă atât documentarea și cercetarea patrimoniului construit și mobil, cât și o abordare integrată asupra patrimoniului natural. Biodiversitatea locală, ilustrată prin speciile vegetale tradiționale și prin resursele de plante cu valoare alimentară și medicinală, contribuie la patrimoniul imaterial al comunității și oferă oportunități pentru o dezvoltare economică diversificată. O strategie de management al biodiversității poate deveni un instrument pentru valorizarea resurselor locale și pentru întărirea identității culturale.
Tot acest ansamblu complex trebuie gândit în logica unui mecanism sustenabil de valorificare a peisajului cultural din Dragu. Acesta poate deveni un produs turistic cinstit, autentic și modern, bazat pe principiile slow tourism, pe experiențe imersive și pe modele contemporane de turism cultural european. În acest sens, patrimoniul nu este doar un obiect de conservare, ci o infrastructură de dialog și de dezvoltare care creează punți între generații și deschide noi perspective pentru comunitățile rurale.
Școala de vară ARCHÉ a demonstrat că patrimoniul poate fi o resursă vie, capabilă să genereze solidaritate, să inspire creativitate și să fundamenteze dezvoltări durabile. Ea a devenit un nucleu formativ și experimental pentru regenerarea culturală și socială a comunei Dragu și un exemplu replicabil de integrare a patrimoniului în dezvoltarea locală și în formarea noilor generații de specialiști.