
Comentariul autorului:
Proiectul propune dezvoltarea unui ansamblu educațional integrat, conceput ca o mică comunitate urbană care îmbină funcțiuni educative, de cazare, recreere și socializare. Ideea de bază este aceea de a crea nu doar o infrastructură de învățare, ci un cadru complex, un ecosistem educațional și social capabil să stimuleze interacțiunea, apartenența și sentimentul de comunitate. Prin organizarea spațiilor, ansamblul urmărește să răspundă nevoilor diverse ale utilizatorilor – de la elevi și profesori, până la vizitatori și comunitatea locală – printr-o arhitectură deschisă, flexibilă și prietenoasă.
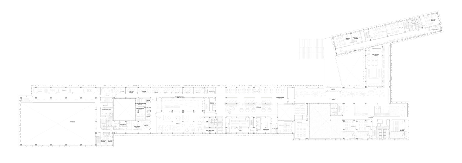
Configurația generală a ansamblului este gândită pe principiul fragmentării controlate. Patru volume principale, fiecare cu regim de înălțime și identitate funcțională proprie, sunt dispuse pe o bază comună și articulate la nivelul parterului printr-un dialog direct cu solul și spațiile exterioare. Această bază funcționează ca o platformă comunitară, un spațiu al întâlnirilor și al traversărilor cotidiene, unde interiorul și exteriorul comunică permanent. Peste această fundație fragmentată se suprapune un volum suplimentar, amplasat la etajul întâi, care devine elementul unificator al întregului ansamblu. Acest corp de legătură funcționează ca o punte arhitecturală și funcțională, reunind cele patru entități distincte într-o compoziție coerentă și într-un organism unitar.
Volumetria este clar articulată:
Corpul A și Corpul B găzduiesc activitățile educative și administrative, fiind structurate în jurul unor holuri de primire generoase, săli de curs și ateliere specializate. Acestea devin spațiile unde procesele pedagogice se desfășoară în mod formal, dar și unde se stimulează creativitatea și colaborarea.
Corpul C, cu regim de înălțime P+6E, reprezintă verticala dominantă a ansamblului. Aici sunt dispuse spațiile de cazare pentru elevi și cadre didactice, dar și o serie de funcțiuni colective menite să susțină viața cotidiană a campusului: săli de lectură, spații de socializare, zone de studiu informal. Această clădire devine un reper vizual și simbolic al întregului complex.
Corpul D adăpostește sala multifuncțională, un spațiu polivalent care integrează atât infrastructură sportivă, cât și dotări pentru evenimente comunitare, conferințe sau spectacole. Acest corp își asumă rolul de deschidere către comunitate, fiind gândit să deservească atât campusul, cât și orașul.
Corpul Z este spațiul articulator, situat la nivelul etajului întâi. Acesta concentrează funcțiunile comune – săli de mese, bibliotecă, ateliere și zone de recreere – și se conectează cu exteriorul prin intermediul unei pasarele. Rolul său este esențial: devine inima socială a ansamblului, un loc unde fluxurile utilizatorilor se intersectează și unde comunitatea se coagulează.
Un alt aspect important este ierarhia spațiilor, gândită pe trei niveluri de accesibilitate. La parter și în spațiile exterioare sunt amplasate funcțiunile semi-publice, deschise și comunității: grădini tematice, terenuri de sport, cafenea, recepție, mediatecă. Acestea se constituie ca locuri de întâlnire și interacțiune, invitând la dialog și conectare. La etajul întâi, funcțiunile comune sunt reunite într-un nucleu social și educativ, unde activitățile formale și informale se împletesc natural. La nivelurile superioare, zonele de cazare pentru elevi și cadre didactice propun un spațiu mai intim, protejat, care răspunde nevoii de liniște, apartenență și siguranță.
Astfel, ansamblul se definește ca un cadru educațional și social complex, unde arhitectura devine mijloc de coagulare a comunității. Prin distribuția atent gândită a funcțiunilor și prin articularea coerentă a volumelor, proiectul oferă o experiență integrată: învățare, locuire, socializare și recreere, într-un mediu urban viu și adaptabil.