
Comentariul autorului:
Amenajarea sediului AVOCA.DO, o firmă de avocatură fictivă specializată în dreptul afacerilor și condusă de doi parteneri seniori, se construiește pe temelia unui limbaj vizual inspirat din eleganța atemporală a stilului Mid-Century Modern, asociat frecvent cu domeniul juridic prin echilibrul său între rigoare și rafinament. Această alegere reflectă atât stabilitatea și prestigiul profesiei, cât și dorința de a proiecta un mediu contemporan, care să sprijine colaborarea și coeziunea echipei. Liniile clare, proporțiile echilibrate și materialele nobile – marmura verde, lemnul masiv de nuc, sticla texturată și metalul lucios – definesc o atmosferă sobră, dar sofisticată, completată de referințe la operele unor arhitecți și designeri faimoși, reinterpretate într-un cadru actual.
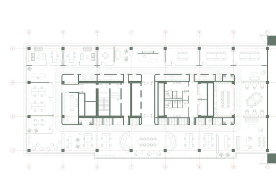
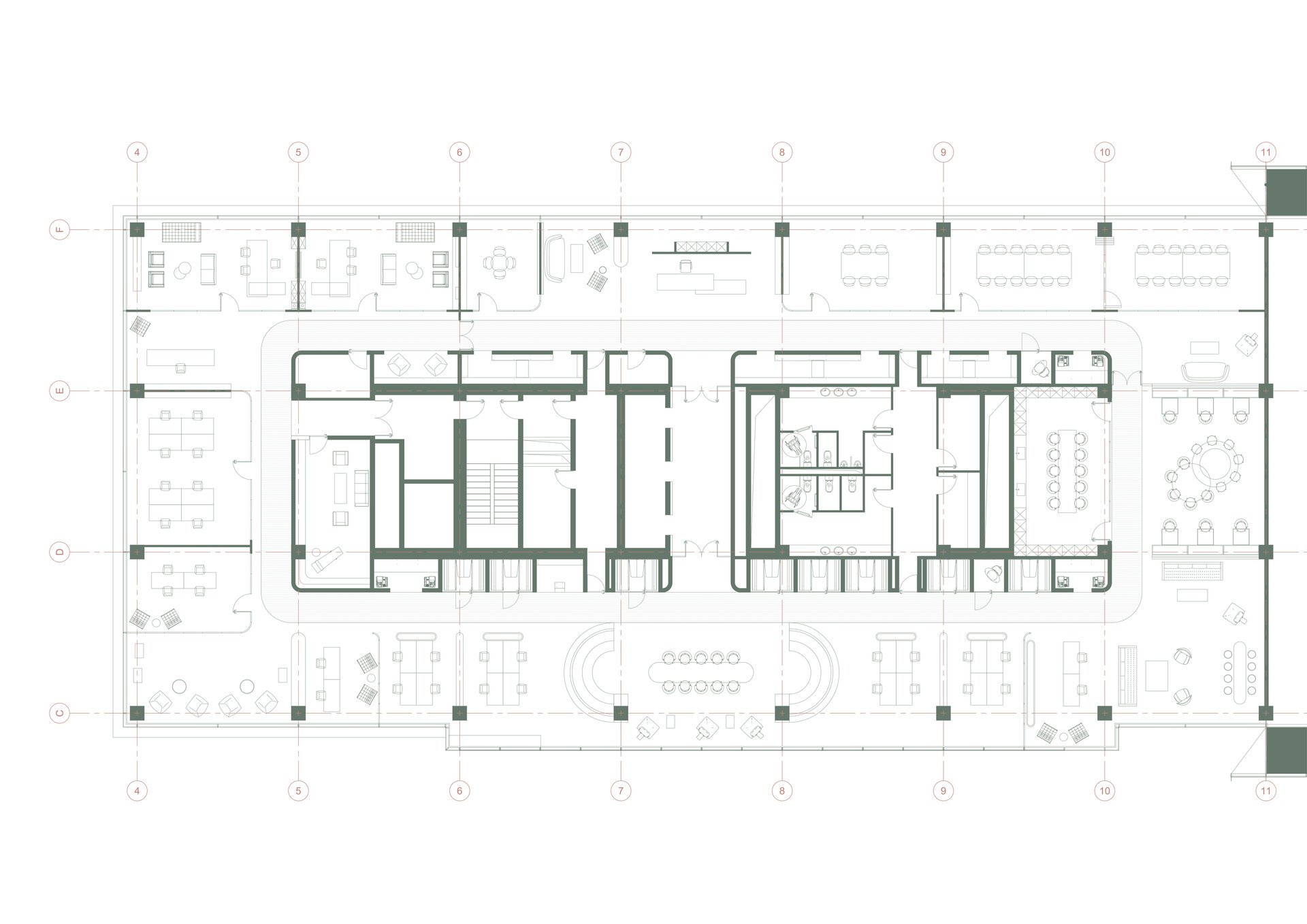
Spațiul este conceput ca un parcurs cu două registre interconectate: unul public, reprezentativ, și unul privat, rezervat în principal echipei. Vizitatorul este introdus printr-o zonă de recepție impunătoare, care se deschide treptat către sălile de conferință și birourile avocaților seniori. Aceste spații, cu un caracter mai sobru și rafinat, reprezintă interfața firmei cu exteriorul, acolo unde prestigiul și autoritatea juridică sunt comunicate printr-un cadru coerent și elegant.
Dincolo de această primă scenografie se află nucleul amenajării – biblioteca centrală. Amplasată ca un punct de referință vizual și funcțional, ea devine atât un depozitar de cunoaștere, cât și un spațiu de întâlnire și reflecție pentru întreaga echipă. Biblioteca funcționează ca un simbol al dialogului și al coeziunii, iar poziționarea ei centrală permite organizarea zonelor de lucru în jurul acestui nucleu. Open space-ul destinat avocaților juniori se desfășoară în jurul bibliotecii, păstrând transparența și comunicarea, dar fiind completat de spații mai intime pentru asociați.
Zona angajaților este astfel gândită ca o rețea flexibilă, adaptabilă la diverse moduri de lucru. Open space-ul modular, zonele de brainstorming, cabinele fonoabsorbante și spațiile de retragere creează un echilibru subtil între concentrare și comunicare. Spre deosebire de birourile tradiționale de avocatură, caracterizate prin compartimentări stricte și izolări, AVOCA.DO propune un mediu deschis și transparent, care încurajează colaborarea, mentoratul și schimbul de idei între avocați, păstrând, totuși, o ierarhizare subtilă a spațiilor.
Lounge-ul și cafeteria completează zona privată, adăugând dimensiunea socială a proiectului. Lounge-ul, conceput ca un spațiu de relaxare, poate fi transformat într-o sală de licitații pentru colecția de artă contemporană a firmei, conferind spațiului o dimensiune culturală aparte. Această funcțiune suplimentară reflectă deschiderea companiei către dialogul cu mediul artistic și comunitatea, consolidând identitatea sa rafinată.
Astfel, biroul AVOCA.DO devine mai mult decât un sediu de avocatură: este o arhitectură a încrederii. Prin claritatea organizării, prin biblioteca sa centrală și prin echilibrul dintre zonele publice și cele private, proiectul propune o interpretare diferită a spațiului juridic – una deschisă, rafinată si orientată spre oameni, unde tradiția profesiei se întâlnește cu spiritul contemporan.