
Comentariul autorului:
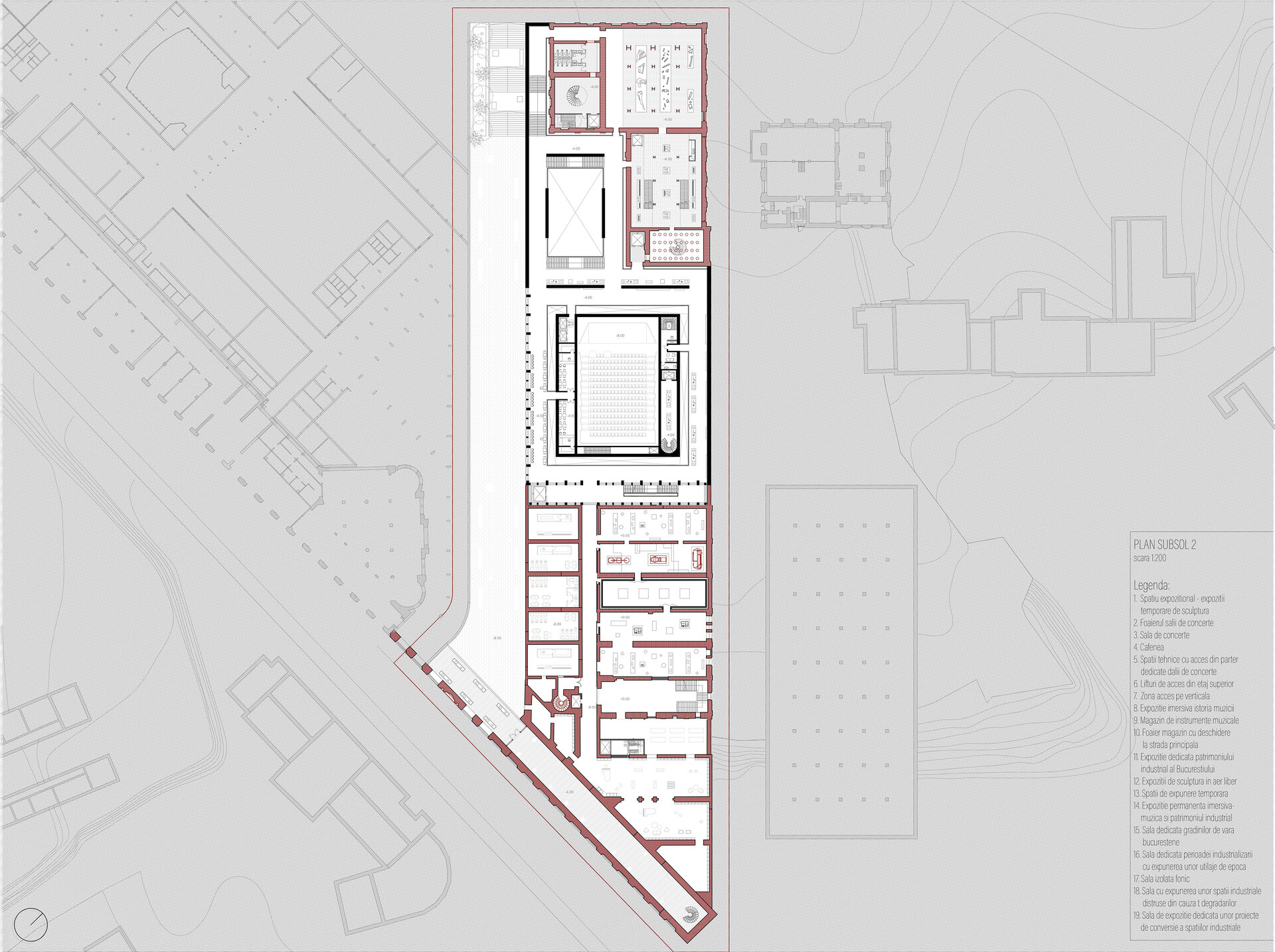
Fabrica de bere Bragadiru reprezintă un simbol important al patrimoniului industrial al Bucureștiului, un ansamblu care evocă sfârșitul secolului XIX, perioadă în care modernizarea orașului prindea contur printr-o arhitectură industrială ambițioasă. Ridicată ca un complex integrat, fabrica a devenit un reper al timpului său, martor al transformărilor urbane și punct de plecare pentru dialogul cu contextul contemporan. Proiectul de conversie pornește de la reflecția asupra zidului ca element fundamental – simbol al durabilității, al memoriei colective și al delimitării spațiului. Într-un peisaj urban marcat de fragilitatea clădirilor abandonate și de dispariția rapidă a memoriei industriale, zidul devine act de rezistență, expresie a continuității și instrument de reconstrucție identitară. Zidurile vechii fabrici devin martori tăcuți ai unei arhitecturi abandonate, păstrând urmele timpului, ale uzurii și ale tăcerii îndelungate. Noua arhitectură nu leacopera, ci le urmează și le completează. Ele nu sunt obstacole, ci puncte de plecare și repere ale memoriei colective. Zidurile noi nu ascund ruina, ci o continuă: nu mai închid, ci definesc; nu mai separă, ci conțin. În cadrul fabricii, acestea refac incinta nu pentru a izola, ci pentru a concentra sensul. Zidul devine plan, traseu, ramă, fundal, susținând funcțiunile propuse și discursul arhitectural despre timp, absență și reconstrucție. Fabrica păstrează astăzi o „muzică tăcută”, o vibrație latentă care pulsează în ziduri, hale și curți interioare. Alegerea funcțiunii este în armonie cu această muzică ascunsă, fără a șterge memoria industrială, ci oferindu-i o nouă voce. Astfel, școala de muzică și muzeul dedicate muzicii apar ca o continuitate firească: sunetele instrumentelor și ritmul lecțiilor trezesc spațiul la viață, transformând tăcerea într-un dialog vibrant între trecut și prezent. Fiecare sală de repetiții, coridor sau curte devine parte a unei simfonii urbane, iar clădirea își redescoperă rolul nu doar ca martor al istoriei, ci și ca generator de cultură, educație și emoție. Noile ziduri devin trasee, suporturi de expunere, ecrane acustice sau fundaluri tăcute, evidențiind ruina și integrând-o într-un discurs contemporan. Proiectul se concentrează pe cele două corpuri principale ale fabricii, spații care au găzduit inițial producția și care se remarcă printr-o arhitectură specifică, foarte expresivă, rezultată din necesități funcționale clare. Aceste clădiri, cu structuri robuste și ritmuri atent calibrate de gol si plin, constituie elementele de bază ale sitului, purtătoare ale identității industriale. Intervenția păstrează și valorifică interioarele existente, restaurându-le și revitalizându-le prin introducerea funcțiunii culturale. Spațiile interioare devin astfel suport pentru expunerea patrimoniului sonor și muzical și pentru experimentarea relației dintre arhitectura industrială și activitatea culturală. Extensia este concepută pe principiul „cub în cub”, facilitând realizarea unei săli de concerte izolate fonic, în exteriorul căreia se dezvoltă o varietate de trasee și pante. Această organizare rezonează cu experiența spațială a vechilor corpuri ale fabricii, amintind de circulația internă și ritmul funcțional al producției. Spațiile comune, circulațiile și pantele create în jurul sălii de concerte contribuie la o experiență complexă și dinamică pentru vizitatori, evocând labirintul intern al vechilor hale și păstrând proporțiile originale ale complexului. Extensia nu este doar un element de legătură, ci un catalizator pentru revitalizarea întregului ansamblu, stimulând interacțiunea între funcțiunea muzeală și experiența arhitecturală. Prin această abordare, proiectul integrează patrimoniul industrial cu o funcțiune culturală contemporană, evidențiind valoarea istorică a sitului și oferind un cadru activ pentru educație și cultură muzicală. Transformarea spațiilor de producție în muzee și săli de concerte permite conservarea și reinterpretarea arhitecturii originale, în timp ce extensia contemporană susține funcționalitatea și creează un dialog vizual și conceptual între trecut și prezent.