
Comentariul autorului:
Orașele au fost dintotdeauna locurile unde viețile oamenilor se întâlnesc, se amestecă și se transformă. Din cele mai vechi timpuri, locuințele s-au construit în jurul străzilor, iar străzile au fost mai mult decât simple trasee funcționale. Ele erau venele prin care pulsa viața comunității, locurile unde se schimbau povești, unde se transmiteau tradiții, unde privirile și gesturile construiau relații. Strada era scena pe care se desfășura teatrul cotidian, iar casele, cu grădinile lor mici și cu porți mereu întredeschise, erau actori vii într-un spectacol comun. În aceste spații, întâmplarea avea mereu loc: o întâlnire neașteptată, un dialog spontan, un ajutor oferit fără să fie cerut. Serendipitatea era parte integrantă a locuirii, o valoare pe care nimeni nu o numea, dar pe care toți o simțeau. Cu trecerea timpului, odată cu industrializarea și cu creșterea accelerată a populației urbane, orașele au început să se transforme. Străzile pitorești, încărcate de viață, au fost înlocuite treptat de bulevarde largi, iar tipologia locuirii s-a modificat profund. Blocurile colective au apărut ca soluție pragmatică la nevoia de densitate, oferind eficiență și economie de spațiu. Dar această schimbare a venit cu un preț greu de măsurat: pierderea interacțiunilor spontane, dispariția acelor momente de conexiune care dădeau sens vieții de cartier. Locuințele moderne, deși funcționale, au devenit insule izolate, separate de coridoare reci și scări impersonale. Oamenii au început să trăiască în paralel, fără ca viețile lor să se mai atingă, iar ceea ce numim serendipitate a dispărut din peisajul urban.
Această lipsă de serendipitate se simte cel mai acut în locuințele colective contemporane. Scările, lifturile și holurile înguste sunt spații de tranziție, nu de întâlnire. În loc să creeze contexte pentru dialog și comunitate, ele funcționează ca simple mecanisme de circulație, menite să ducă oamenii din punctul A în punctul B cât mai rapid și mai eficient. În acest proces, arhitectura și-a pierdut rolul de mediator social. Blocurile înalte au devenit simple depozite de apartamente, în care fiecare locuitor se retrage în propriul său univers, izolat de ceilalți. Orașul a devenit un puzzle de vieți paralele, lipsite de legături vizibile. Proiectul pe care îl propunem pornește de la această problemă profundă și propune o reîntoarcere la ideea de comunitate, dar într-o formă adaptată prezentului. Dorim să readucem în locuirea colectivă acea calitate organică a străzii tradiționale, dar nu prin nostalgie, ci prin inovație. În loc să privim strada ca pe un element strict orizontal, am imaginat-o suspendată, integrată în verticalitatea unei clădiri contemporane. Am creat un concept care nu doar găzduiește oameni, ci creează contexte pentru interacțiune, întâmplare și viață comunitară.
Locația aleasă pentru proiect se află într-o zonă urbană marcată de diversitate și de tensiuni vizibile între tipologii. Pe de o parte, există case individuale, aliniate pe străzi înguste, care păstrează încă memoria orașului tradițional. Acestea au scara umană, sunt permeabile, calde și conectate direct la viața comunității. Pe de altă parte, există blocuri-bară ridicate în deceniile trecute, cu volume mari și fronturi continue, care impun o ordine rigidă și marchează bulevardele principale.
Între aceste două lumi există o frontieră nevăzută, o ruptură în peisajul urban. Străzile caselor se pierd brusc în fața zidurilor masive ale blocurilor, iar dialogul dintre ele lipsește. Această situație, deși problematică, oferă și o oportunitate. Proiectul nostru se plasează exact la granița dintre aceste tipologii, asumându-și rolul de mediator. Am preluat axele de poziționare de la blocurile existente, pentru a menține o continuitate urbană, dar am lăsat volumele apartamentelor să se dispună liber, imitând fragmentarea și diversitatea fronturilor caselor. Astfel, fațada nu este un zid rigid, ci un peisaj care respiră, în care panglica noastră se poate strecura, creând legături vizuale și spațiale. Relația dintre spațiul public și cel comunitar a fost tratată cu o atenție specială. În loc să recurgem la garduri sau bariere vizibile, am ales să marcăm trecerea dintre aceste două lumi prin diferențe subtile de nivel și prin gradări de intimitate. La intrarea în ansamblu, vizitatorii întâlnesc un parc public, un spațiu deschis și prietenos, care invită la relaxare și interacțiune. Pe măsură ce pătrunzi mai adânc, spațiul devine mai protejat, mai intim, până când ajungi în curtea interioară, rezervată locatarilor. Această tranziție este fluidă, naturală, evitând „duritatea” separațiilor clasice. Spațiul comunitar devine astfel o extensie firească a spațiului public, iar locuitorii nu se simt izolați, ci parte a unei rețele mai mari.
Pentru a răspunde acestei complexități, am conceput un concept arhitectural care să îmbine ordinea și libertatea, rigurozitatea și fluiditatea. Ideea centrală este aceea a „orașului vernacular pe verticală”. În loc să privim blocul ca pe un monolit, l-am gândit ca pe un cartier vertical, în care fiecare apartament este o casă în sine, iar panglica funcționează ca o stradă suspendată.
Această panglică nu este doar un coridor de circulație, ci un spațiu comunitar viu, care leagă etajele între ele și creează contexte pentru întâlniri neașteptate. Ea se strecoară printre volume, uneori vizibilă, alteori ascunsă, asemenea unei poteci care se lasă descoperită treptat. Cursiva, elementul central al panglicii, are o formă organică, liberă, care contrastează cu rigurozitatea structurală a blocului. Ea se apropie de curtea comună, apoi se retrage, oferind perspective diferite și surprinzătoare. Prin deschiderile atent plasate, lumina pătrunde pe panglică, iar exteriorul se insinuează în interior. Din punct de vedere simbolic, panglica este expresia vieții comunitare: un fir care leagă oamenii, care creează conexiuni invizibile, care transformă clădirea dintr-o sumă de apartamente într-un organism viu.
Tranziția dintre spațiile publice, comunitare și private este una dintre temele fundamentale ale proiectului. În timp ce parcul public este deschis și permeabil, panglica devine spațiul semi-public, locul unde locatarii se întâlnesc, se cunosc și construiesc relații. Apartamentele, cu terasele lor deschise și cu jardinierele care le delimitează, reprezintă zona intimă, protejată, dar nu complet izolată. Această ierarhie subtilă permite o gradare a experienței spațiale: de la agitația bulevardului, la liniștea curții interioare, la intimitatea casei. Prin acest proiect, am dorit să demonstrăm că arhitectura poate fi mai mult decât un exercițiu tehnic. Ea poate fi un instrument de reconectare, o punte între oameni și între lumi aparent incompatibile. Panglica noastră nu este doar o soluție funcțională, ci o declarație despre modul în care vrem să trăim împreună. Este o invitație la redescoperirea bucuriei de a locui într-o comunitate, la crearea unor contexte pentru serendipitate, la construirea unui oraș care să nu fie doar eficient, ci și plin de viață. În final, credem că viitorul locuirii colective stă în astfel de experimente, care îndrăznesc să reinventeze tipologiile existente. Orașele nu trebuie să fie doar conglomerate de clădiri, ci spații vii, care respiră, care cresc organic, asemenea comunităților pe care le găzduiesc. Panglica este doar începutul unui dialog mai amplu, un prim pas către un mod de a construi care să pună oamenii și relațiile dintre ei în centrul preocupărilor arhitecturale. Este un vis despre un oraș mai bun, dar și o propunere concretă, gata să devină realitate.
Într-o lume în care orașele cresc necontenit, iar ritmul urban se accelerează până la amețeală, locuirea devine mai mult decât un simplu act de adăpostire. Devine un mod de a exista împreună, o scenă pe care viețile se întretaie, se ating sau se evită, lăsând urme vizibile și invizibile. Proiectul nostru pornește din această convingere: că arhitectura nu este doar un exercițiu al formei, ci o orchestrare a relațiilor umane. Este o încercare de a crea un cadru în care spațiul construit să nu fie doar fundal, ci un personaj activ, capabil să stimuleze întâlnirea, dialogul, comunitatea.
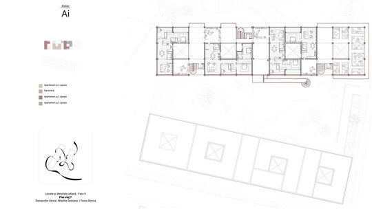
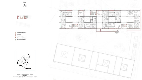
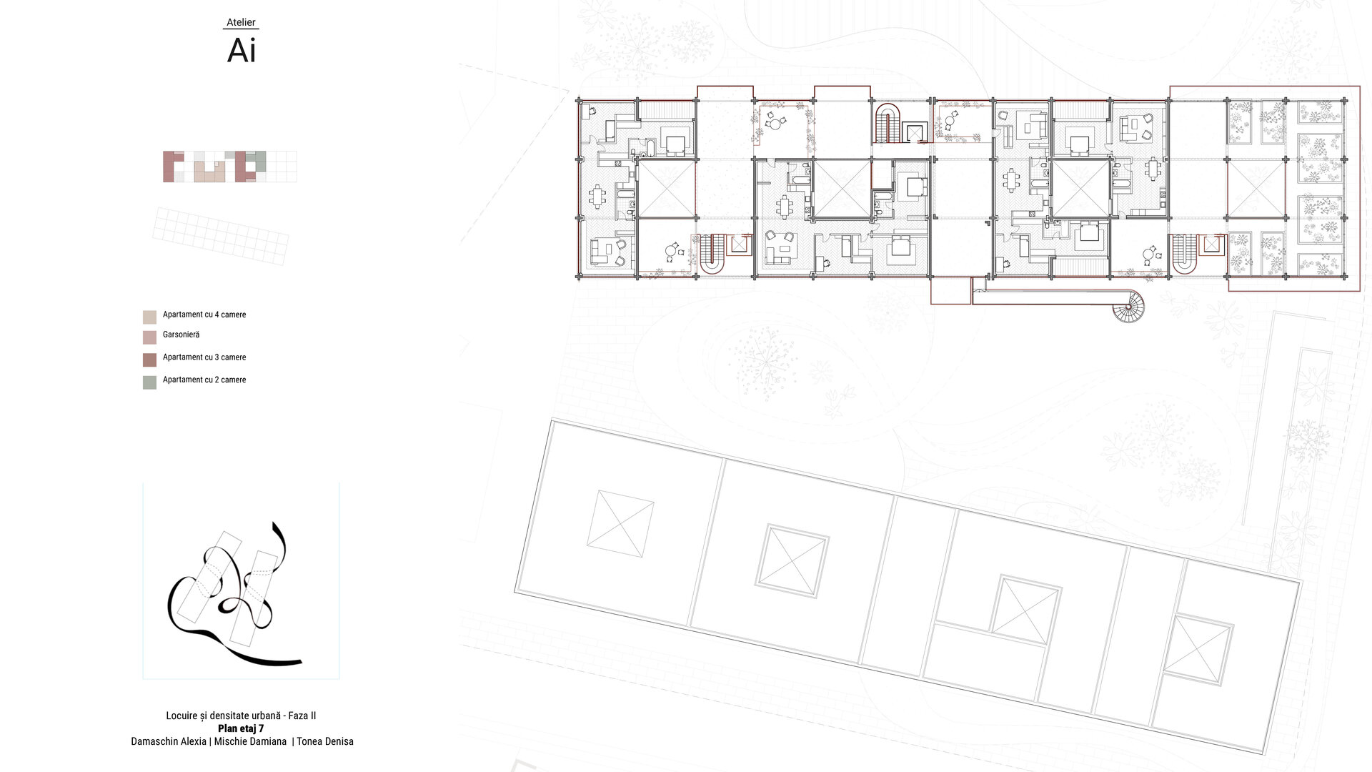
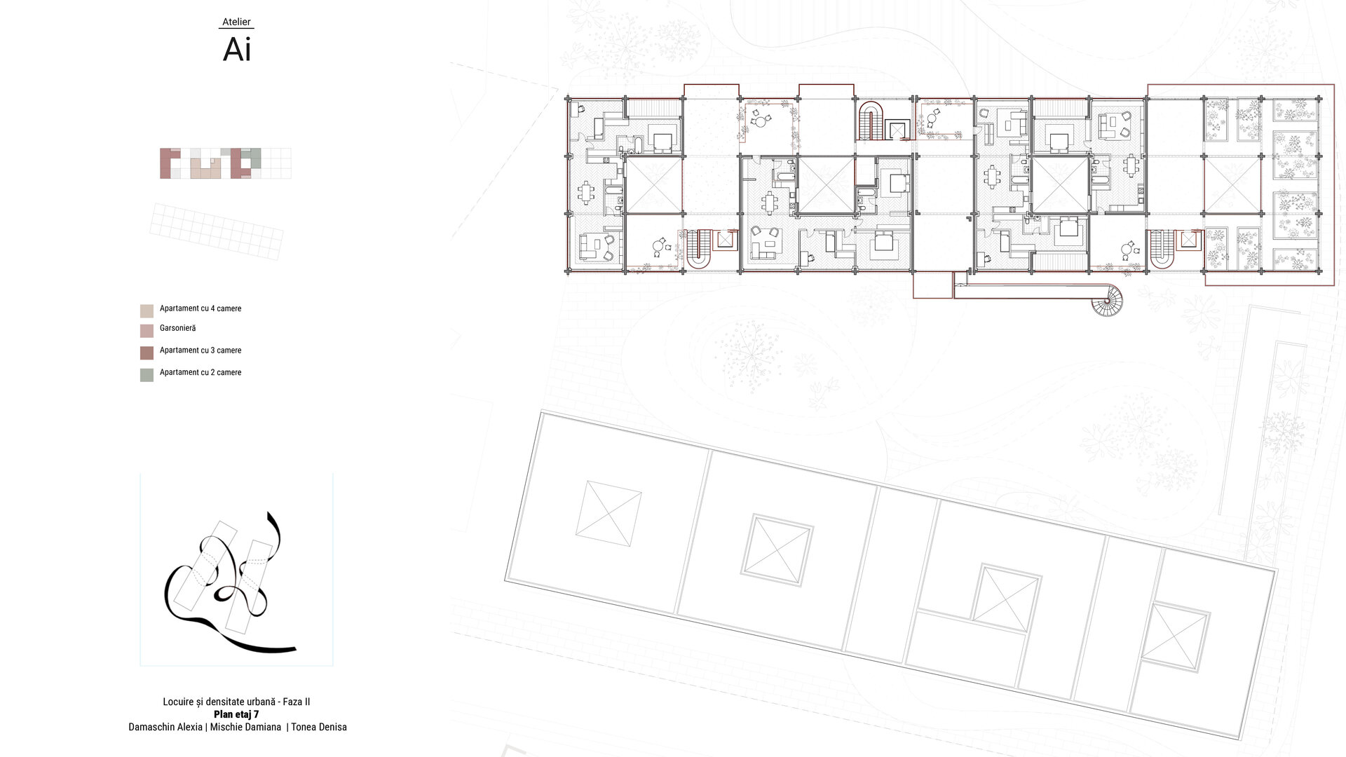
Organizarea funcțională și spațială a ansamblului este gândită asemenea unui organism viu, unde fiecare parte își are rolul său, dar totul respiră împreună. Apartamentele sunt concepute ca module independente, fiecare ca o mică „casă în casă”, dar care, prin dispunerea lor, alcătuiesc un țesut complex, un cartier vertical. Această strategie evită monotonia repetitivă a blocurilor obișnuite, introducând diversitate și libertate compozițională.
Modulul de locuit este flexibil, adaptabil la nevoile diferitelor familii sau indivizi, iar formele sale – litere C, L sau Z – nu sunt simple variații estetice, ci răspunsuri precise la orientări, priveliști și fluxuri de lumină. În proiectul nostru, am ales logia în locul balconului clasic. Logia este o retragere, o respirație a volumului, un spațiu de tranziție între interior și exterior. Ea protejează intimitatea locatarului, oferind în același timp deschidere către lumină și aer. Balconul, prin natura sa, expune viața domestică direct către oraș, în timp ce logia o filtrează, creând un cadru mai subtil, mai profund. În acest mod, panglica devine singurul element care iese din tiparul rigid al grilei structurale, singurul gest liber, fluid, care se desfășoară la vedere, conectând apartamentele și creând o rețea de întâlniri. Panglica este „strada suspendată” a clădirii, un traseu viu care înlocuiește coridorul anonim cu un spațiu comunitar cald, unde vecinii se pot opri, saluta, discuta, sau pur și simplu observa viața care curge în jur. Iluminarea naturală a fost una dintre cele mai importante preocupări în proiectarea acestui ansamblu. Ne-am dorit ca lumina să pătrundă generos în fiecare apartament, să devină un element activ al vieții cotidiene. Dar am dorit, în același timp, să protejăm intimitatea locatarilor. Ferestrele nu au fost niciodată plasate direct una în fața alteia, evitând privirile frontale care ar fi putut crea disconfort. În loc să deschidem direct către panglică, am introdus filtre: logiile, terasele de la intrare și curțile interioare de iluminare.
Acestea devin spații tampon, protejând viața privată fără a o închide. Lumina pătrunde astfel filtrată, blândă, creând atmosfere diferite pe parcursul zilei. În camerele de zi, ferestrele largi oferă perspective ample către exterior, în timp ce dormitoarele beneficiază de goluri mai discrete, orientate către curți intime sau terase private.
Grila structurală este scheletul invizibil al acestui organism arhitectural. Ea aduce ordine și stabilitate, dar nu rigiditate. Stâlpii cruciformi, vizibili la exterior, nu sunt doar elemente tehnice, ci devin parte a expresiei arhitecturale. Prin prezența lor, structura capătă transparență, iar locatarii înțeleg modul în care clădirea este susținută. Această grilă permite flexibilitate: modulele locative pot fi adăugate, rearanjate sau extinse fără a compromite stabilitatea generală. Sistemul modular extensibil este o promisiune pentru viitor – o clădire care poate crește și evolua odată cu comunitatea, asemenea unui oraș viu.
În contrast cu rigurozitatea grilei, panglica este un element liber, fluid, care se strecoară printre apartamente, uneori apropiindu-se de curtea interioară, alteori retrăgându-se către margini. Ea devine un traseu al întâmplării, al întâlnirii neașteptate. Pe panglică, oamenii nu doar se deplasează, ci trăiesc momente împreună: un salut scurt, o discuție spontană, un joc improvizat al copiilor. Panglica este, în acest sens, expresia vieții comunitare, o stradă verticală unde se nasc relații și povești. Curțile interioare joacă un rol esențial în acest ansamblu, ele aduc lumină și aer în profunzimea clădirii, dar și creează locuri de întâlnire. În jurul lor, bucătăriile sunt orientate strategic, astfel încât activitățile zilnice să se conecteze cu viața comunității. Curțile devin spații vii, animate de zgomote cotidiene: râsul copiilor, mirosul de pâine caldă, discuțiile vecinilor. În același timp, ele ajută la orientarea locatarilor, oferind repere vizuale și senzoriale. Prin aceste curți, ansamblul respiră, iar locuințele devin mai sănătoase, mai luminoase și mai conectate.
Designul fațadei reflectă această dualitate dintre ordine și libertate. Ferestrele în bandă subliniază orizontalitatea, creând o legătură vizuală între etaje, în timp ce stâlpii cruciformi marchează verticalitatea, amintind de un ritm urban ordonat. Între aceste elemente, logiile adaugă profunzime, creând jocuri de lumină și umbră care schimbă fațada pe parcursul zilei. Materialele sunt alese pentru a fi tactile, calde, prietenoase: tencuieli minerale, metal patinat, lemn tratat. Fațada nu este un zid inert, ci o suprafață vie, care comunică cu mediul și cu oamenii. Verticalitatea și orizontalitatea se întâlnesc într-un dialog constant. Orizontalitatea reprezintă viața cotidiană, rutina, fluxul constant al activităților, în timp ce verticalitatea sugerează creștere, aspirație, conexiune între niveluri. Prin această combinație, clădirea devine un simbol al echilibrului dintre stabilitate și libertate, dintre tradiție și inovație.
Stâlpii cruciformi au și un rol practic esențial: ei permit poziționarea apartamentelor în mod liber, evitând punțile termice și crescând eficiența energetică. În același timp, vizibilitatea lor la exterior face ca structura să devină un limbaj vizual, o poveste spusă prin repetiție și ritm. Locatarii nu trăiesc într-un spațiu abstract, ci într-un cadru clar, inteligibil, care le oferă siguranță și înțelegere. Terasele de la intrarea în apartamente sunt spații de tranziție, locuri unde publicul se transformă în privat. Ele sunt delimitate de jardiniere, care creează o barieră naturală, moale, între panglică și interior. Aceste terase funcționează ca mici curți suspendate, inspirate din casele tradiționale. Aici, locatarii își pot personaliza spațiul, pot planta flori, pot crea locuri de relaxare sau întâlnire. În același timp, aceste terase contribuie la protejarea intimității, oferind un filtru vizual și emoțional între viața comunitară și cea domestică.Întregul ansamblu este gândit ca o coregrafie subtilă între libertate și ordine, între intimitate și comunitate. Aerisierea naturală este o componentă vitală a sustenabilității. Curțile de lumină, plasate strategic în interiorul ansamblului, nu sunt doar surse de lumină, ci și mecanisme pasive de ventilație. Ele creează curenți de aer care răcoresc clădirea în zilele calde și aduc prospețime în spațiile interioare. Ferestrele apartamentelor, orientate cu grijă, permit o dublă ventilație, evitând dependența de sisteme mecanice costisitoare și energofage. În acest mod, ansamblul respiră odată cu locatarii săi, încurajând un climat natural și sănătos. Eficiența energetică este obținută nu doar prin ventilație naturală, ci și prin detalii constructive riguroase. Fiecare apartament este tratat ca o unitate termoizolată, evitând punțile termice care apar de obicei în blocurile convenționale. Această abordare individualizată înseamnă că locuințele pot funcționa independent, oferind confort optim chiar și atunci când unele unități nu sunt ocupate. Ferestrele adâncite în grosimea pereților asigură umbrire naturală vara, păstrând căldura iarna, iar logiile contribuie la echilibrul termic, creând zone tampon între interior și exterior. Extensibilitatea în timp este unul dintre marile atuuri ale acestui proiect. Sistemul modular permite adăugarea treptată de noi apartamente, curți sau funcțiuni comunitare, fără a fi nevoie de demolări sau restructurări majore. Clădirea devine astfel o infrastructură deschisă, care poate evolua odată cu orașul. Astăzi, poate găzdui locuințe pentru o comunitate de dimensiuni medii; mâine, poate integra spații pentru co-working, ateliere, săli de întâlnire sau chiar grădini suspendate. Această flexibilitate transformă proiectul într-o structură durabilă, adaptabilă și rezilientă.
În viziunea noastră, peste 20 de ani ansamblul poate arăta complet diferit: noi aripi se adaugă organic, panglica se ramifică asemenea unei rețele de străzi, iar spațiile comune devin tot mai diversificate. O parte din module pot fi reconfigurate pentru funcțiuni educaționale sau culturale, iar altele pot găzdui ateliere sau centre de inovație. Astfel, clădirea nu devine niciodată învechită, ci se adaptează continuu, rămânând relevantă și utilă. Impactul asupra vieții de zi cu zi este profund. Locatarii nu mai trăiesc în apartamente izolate, ci într-o rețea de relații, mediate de panglică și de curțile interioare. Dimineața, panglica adună pașii grăbiți ai celor care pleacă la muncă, dar și saluturile scurte care încep ziua. La prânz, curțile devin locuri de joacă pentru copii, iar seara, terasele de intrare se transformă în spații de socializare, unde poveștile se împletesc cu mirosul cinei și cu lumina caldă a apusului. Această viață comună naște un sentiment de apartenență, greu de obținut în ansamblurile rezidențiale clasice.
Această infrastructură socială ajută la reducerea izolării, una dintre marile probleme ale locuirii contemporane. În locul coridoarelor impersonale, panglica oferă contexte pentru interacțiune, fără a forța prezența constantă. Locatarii pot alege gradul de implicare, iar relațiile se formează natural, prin apropiere repetată și momente de serendipitate. Comunitatea se construiește organic, asemenea unei grădini care crește în timp. Din punct de vedere urban, proiectul are un rol de catalizator. El arată că densitatea nu trebuie să însemne alienare, ci poate fi o oportunitate pentru comunitate. Panglica, curțile, logiile și terasele creează un ecosistem în care publicul și privatul se împletesc într-un echilibru fragil, dar fertil. Astfel, ansamblul nu doar se integrează în cartier, ci îl regenerează, aducând un nou tip de energie și deschidere. În loc să fie un obiect izolat, devine o parte dintr-un țesut urban viu, conectat la restul orașului și la dinamica socială a acestuia.
În concluzie, proiectul nostru este mai mult decât o clădire. Este o viziune despre cum oamenii pot locui împreună, despre cum spațiile pot susține relațiile și pot crea comunități vibrante, sănătoase și durabile. Este o poveste despre modul în care vrem să locuim împreună, despre cum arhitectura poate susține relațiile dintre oameni și dintre oameni și orașul lor. Prin modularitate, sustenabilitate și deschidere, propunem un model de locuire care nu se teme de schimbare, ci o îmbrățișează. Blocul nu mai este un simbol al anonimatului, ci devine un oraș vertical, plin de viață, un loc unde întâmplarea și comunitatea se întâlnesc. Este o invitație la reinventarea modului în care trăim, la redescoperirea bucuriei de a fi parte dintr-un întreg. Pentru viitor, vedem acest proiect ca pe un reper, un început de dialog despre cum orașele pot crește organic, adaptându-se la nevoile comunităților lor. Prin extensibilitatea lui, el poate fi replicat, adaptat, transformat, devenind parte a unei rețele mai mari de spații care încurajează viața, interacțiunea și sustenabilitatea.
În acest sens, panglica nu este doar un element fizic, ci și o metaforă: un fir care leagă oameni, locuri și momente, construind o țesătură urbană vie, deschisă și mereu în schimbare.