
Comentariul autorului:
Agora Bragadiru
Centru Cultural și Mediatecă este un proiect de reconversie urbană și culturală ce readuce la viață fosta fabrică de bere Bragadiru din cartierul Rahova. Intervenția propune transformarea acestui sit industrial abandonat într-un nucleu public, cultural și educativ, deschis comunității și integrat în dinamica orașului contemporan. Poziția centrală a sitului și apartenența sa la axa culturală a Bucureștiului îl fac un loc ideal pentru un nou reper urban, capabil să atragă atât locuitorii cartierului, cât și vizitatori din întreaga capitală.
Situația existentă ridică o serie de probleme majore. Calea Rahovei este fragmentată, pierzându-și continuitatea din cauza intervențiilor din perioada socialistă, iar accesibilitatea sitului este limitată, existând o singură intrare pe frontul Bd. George Coșbuc, deși deschiderea stradală măsoară aproximativ 180 de metri. Terenul este excavat, cu fundațiile vizibile ale clădirilor adiacente, ceea ce complică circulația și utilizarea spațiului. De asemenea, fosta stradă Bragadiru a fost blocată și transformată într-o parcare improvizată, ceea ce a întrerupt legătura naturală dintre Calea Rahovei și Bd. George Coșbuc. La toate acestea se adaugă prezența unor construcții parazitare din anii ’90, care afectează caracterul și coerența ansamblului.
În ciuda acestor dificultăți, situl are un potențial remarcabil. Curtea generoasă permite amenajarea unei piețe publice active, iar proximitatea unor repere precum Palatul Bragadiru, Piața de Flori și The Ark creează premisele unei revitalizări coerente. Transportul public asigură conectivitatea cu restul orașului, iar patrimoniul industrial păstrat oferă un fundament identitar puternic, capabil să susțină transformarea sitului într-un centru cultural de referință.
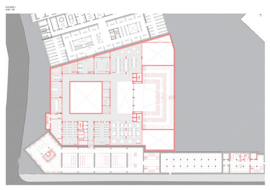
Soluția propusă urmărește trei direcții majore: refacerea topografiei și a accesibilității, diversificarea funcțiunilor și interconectivitatea clădirilor. Terenul este readus la cota inițială prin completarea zonelor excavate, piațeta centrală devine din nou spațiu public activ, iar fosta stradă Bragadiru este redeschisă circulației rutiere și pietonale, restabilind legătura dintre cele două bulevarde. În interiorul ansamblului, toate clădirile, atât cele vechi reabilitate, cât și cele noi, sunt conectate prin pasaje, circulații suspendate și spații comune, oferind un parcurs fluid și coerent.
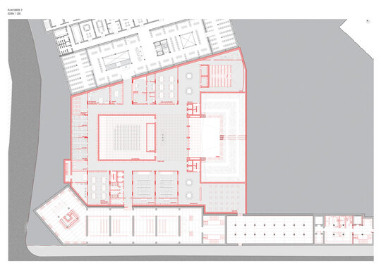
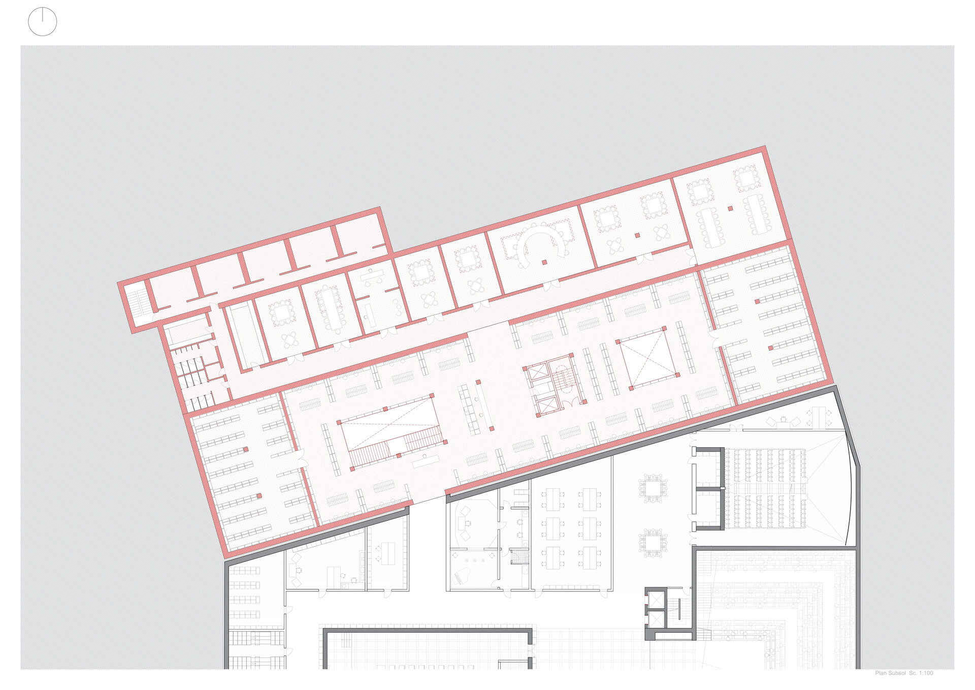
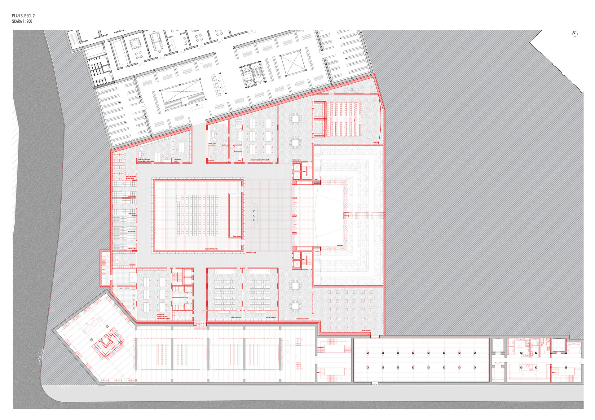
Programul propus este complex și divers, menit să activeze ansamblul pe mai multe niveluri. Componenta culturală include un muzeu al patrimoniului industrial, spații expoziționale permanente și temporare, galerii de artă, un cinematograf și o sală multifuncțională pentru conferințe și spectacole. Dimensiunea educativă este susținută de mediateca amplasată pe fundația existentă, biblioteca, sălile de curs și spațiile de studiu individual și de grup, toate concepute pentru a sprijini procesul educațional și a stimula creativitatea tinerilor.
Dimensiunea socială și de loisir este reprezentată de piațeta publică, amfiteatrul exterior și o serie de funcțiuni complementare precum cafenea, braserie, restaurant, wine bar și gelaterie. Acestea contribuie la atractivitatea ansamblului și la menținerea lui activă și în afara programului cultural. Comerțul local este sprijinit prin spații pentru magazine artizanale și gift shop-uri, continuând tradiția caselor cu prăvălie specifice zonei Rahova. În completare, spațiile destinate serviciilor și birourilor susțin integrarea ansamblului în economia urbană și diversifică profilul utilizatorilor.
Principiile de intervenție sunt orientate către respectarea patrimoniului și crearea unui dialog între vechi și nou. Autenticitatea este păstrată prin conservarea elementelor industriale originale și prin refacerea fațadelor. Inserțiile contemporane sunt minimaliste, transparente și reversibile, accentuând prin contrast valoarea istorică a ansamblului. La nivel urban, proiectul urmărește accesibilitatea și permeabilitatea, deschizând situl către cartier și integrând traseele pietonale și velo. Flexibilitatea funcțională este un alt principiu esențial: spațiile sunt concepute pentru a putea găzdui programe variate și adaptabile în timp, asigurând sustenabilitatea ansamblului.
Impactul urban și social al proiectului este semnificativ. Redeschiderea străzii Bragadiru și a piațetei readuce permeabilitatea urbană și fluiditatea circulațiilor, corectând fragmentarea produsă în ultimele decenii. Spațiul public creat devine o prelungire a cartierului, un loc accesibil și prietenos, unde locuitorii se pot întâlni, relaxa și participa la evenimente. Dimensiunea culturală și educațională contribuie la reducerea disparităților dintre zonele centrale și periferice, oferind locuitorilor din Rahova acces direct la resurse educative și culturale de calitate. Prin mixul de funcțiuni, proiectul stimulează diversitatea socială, încurajează dialogul între generații și oferă oportunități de afirmare pentru artiști și antreprenori locali. În plus, conectarea sitului la rețeaua culturală a Bucureștiului îl transformă într-un punct de atracție nu doar pentru comunitate, ci și pentru publicul larg, consolidând identitatea zonei și imaginea orașului.
Prin toate aceste intervenții, Agora Bragadiru devine un catalizator urban și cultural pentru cartierul Rahova și pentru București. Redeschiderea circulațiilor, refacerea piețetei la nivelul inițial, conectarea clădirilor și integrarea unui mix de funcțiuni transformă un sit abandonat într-un spațiu vibrant și deschis. Astfel, trecutul industrial al fabricii Bragadiru se intersectează cu prezentul cultural și educativ al orașului, generând un ansamblu modern, transparent și orientat către viitor. Agora nu este doar o reconversie de patrimoniu, ci o veritabilă agoră contemporană, un loc al comunității, al dialogului și al creativității.