
Comentariul autorului:
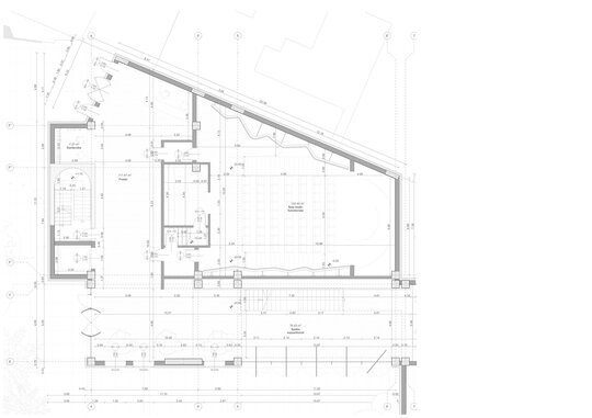
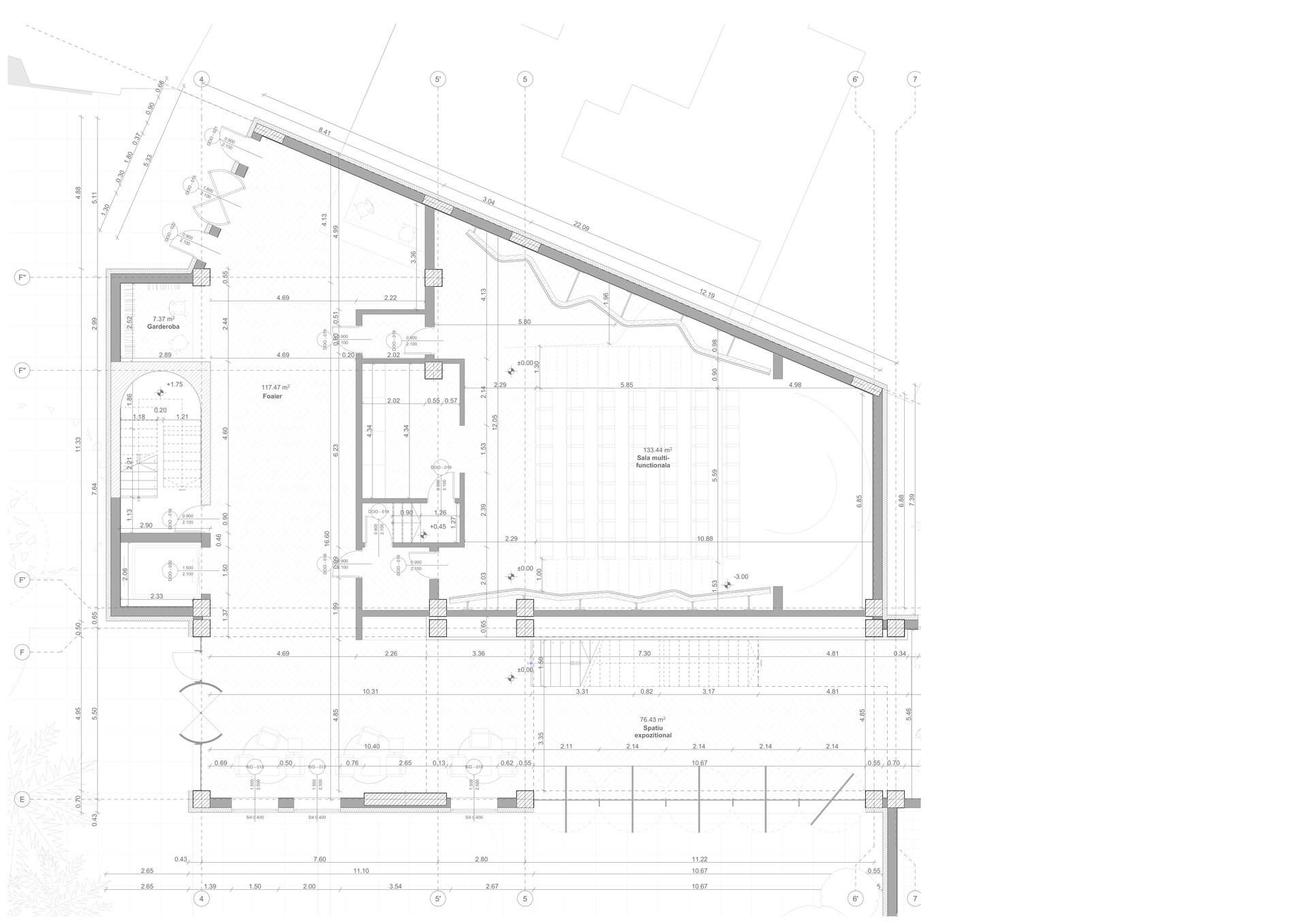
Proiectul propune realizarea unui ansamblu urban mixt , care se dezvoltă în jurul a trei direcții funcționale principale: locuirea în sistem co-living, spațiile de tip co-working și zonele destinate relaxării și loisirului. Acestea sunt gândite ca un sistem interconectat ce încurajează interacțiunea socială, colaborarea și viața comunitară, reflectând tendințele emergente din marile orașe europene în materie de locuire urbană sustenabilă și incluzivă. Complementar, proiectul include și funcțiuni secundare precum spații comerciale, unități de alimentație publică și zone destinate evenimentelor culturale sau artistice, toate concepute pentru a activa fronturile stradale și a stimula participarea comunității locale. Publicul-țintă este format în principal din tineri profesioniști, artiști independenți și nomazi digitali, care își doresc un mod de viață flexibil, conectat și colaborativ. Însă impactul ansamblului este gândit să depășească sfera utilizatorilor direcți, devenind un vector de regenerare urbană pentru întreaga zonă Mantuleasa, aflată într-un proces de revitalizare funcțională și identitară. Astfel, proiectul abordează două problematici actuale esențiale: accesul dificil la locuințe și scăderea coeziunii sociale în mediile urbane, în ciuda creșterii conectivității digitale. Prin promovarea unui nou tip de locuire colectivă, bazată pe spații comune, interacțiune și sprijin reciproc, proiectul propune o alternativă viabilă la modelul clasic de locuire individualizată și izolată. Amplasamentul proiectului se află pe strada Mantuleasa, o arteră cu valoare istorică și identitară ridicată, păstrată încă din secolul al XIX-lea. Situată într-o zonă protejată, aceasta este marcată de un țesut urban eterogen, care reflectă suprapuneri succesive de epoci, stiluri și funcțiuni. Pe lângă funcțiunea rezidențială majoritară, zona este caracterizată de prezența unor funcțiuni publice și culturale, contribuind la diversitatea și dinamica spațiului urban. Studiile (PIDU) susțin reconversia funcțională a zonei într-un pol urban mixt, în care locuirea contemporană se combină cu spații de creație, producție culturală și inovație. Intervenția propusă se integrează în contextul existent, prin racordarea la calcanele învecinate și menținerea aliniamentului stradal la nivelul parterului și mezaninului. Acest front stradal este perforat controlat prin pasaje pietonale și căi de acces, care permit pătrunderea în interiorul sitului și creează o rețea de circulații fluide între spațiile publice și cele semipublice. Astfel, se generează o curte interioară cu rol de atrium, care funcționează ca un nucleu de socializare pentru întreaga comunitate. Un alt element central este piațeta urbană amplasată la interfața cu strada, concepută ca un spațiu de tranziție între oraș și ansamblu. Aceasta este activată prin funcțiuni de alimentație publică, precum o cafenea și o ceainărie, care contribuie la crearea unui spațiu urban viu, permeabil și deschis către comunitatea extinsă. Pentru a consolida accesibilitatea urbană, se propune o axă pietonală de legătură între strada Mantuleasa și strada Paleologu, asigurând continuitatea fluxurilor pietonale și îmbunătățind conectivitatea zonală. Funcțiunea de locuire, elementul central al proiectului, este amplasată la nivelurile superioare ale ansamblului, în timp ce funcțiunile publice și comerciale se regăsesc la nivelul parterului și mezaninului, conform principiilor de organizare urbană activă. Volumele superioare sunt tratate cu retrageri progresivă, generând terase private și semi-private, care susțin relaționarea socială, dar și calitatea spațiului locuit prin acces la lumină naturală, vegetație și priveliști urbane. Zona de co-living este organizată în clustere funcționale, formate prin cuplarea unor unități locative individuale în jurul unor spații comune – bucătării, living-uri, zone de lucru – precum și a unor spații publice deschise comunității. Acest model flexibil încurajează schimbul de idei, colaborarea între locatari și formarea de comunități active, adaptându-se stilurilor de viață contemporane. Spațiile de co-working reprezintă factori esențiali în dinamizarea și activarea zonelor urbane în care sunt integrate. Prin atragerea unei comunități diverse, aceste spații generează un flux constant și variat de utilizatori, contribuind astfel la intensificarea activității urbane pe parcursul întregii zile. Această prezență continuă stimulează atât utilizarea spațiilor publice adiacente, cât și mobilitatea în interiorul zonei. Sala multifuncțională integrează în mod coerent spații expoziționale și ateliere, menite să răspundă necesităților culturale și creative ale comunității. Organizarea spațiilor reflectă o abordare flexibilă și adaptabilă, care permite desfășurarea simultană a unor activități diverse, de la expuneri artistice până la procese de creație și producție. În acest context urban, sala multifuncțională este concepută pentru a dinamiza spațiul public adiacent, prin deschiderea către exterior și integrarea unor zone de acces și circulație care favorizează includerea socială și participarea activă a comunității. Piațetele și pasajele de legătură devin astfel elemente urbane generatoare de trafic pietonal și interacțiune socială. Din punct de vedere arhitectural, proiectul propune o integrare morfologică subtilă în contextul istoric, prin reinterpretarea unor elemente specifice locuirii tradiționale bucureștene: gangul de acces, pasajul, curtea interioară – elemente care nu doar evocă memoria locului, ci și facilitează locuirea, permeabilitatea și intimitatea colectivă. Aceste instrumente formale și spațiale contribuie la umanizarea ansamblului construit și la conectarea intervenției contemporane cu stratul istoric al locului.