
Comentariul autorului:
În 1910, când Cazinoul și-a aprins luminile pentru prima dată, a reprezentat o declarație de modernitate, un manifest al unei Românii curajoase și avangardiste, care privea către viitor. Astăzi, după o restaurare de cinci ani, Cazinoul strălucește din nou, nu doar ca un monument de arhitectură, ci și ca un spațiu cultural dinamic, în care cultura contemporană și loisirul se împletesc într-un spirit viu, deschis tuturor.
Proiectul realizat de Zeppelin Design constă în crearea centrului expozițional din interiorul clădirii, integrând atât conceptul curatorial, conținutul istoric și științific cât și designul de expunere și proiectul multimedia, într-o experiență culturală și spațială unitară. Suprafața expozițiilor realizate este de aproximativ 1100mp. Până la momentul aceste jurizări, numărul de vizitatori plătitori de bilet este de aproximativ 170.000, de la deschiderea sa din mai 2025.
Noul Cazino își redeschide porțile cu expoziții pe toate nivelurile, al căror conținut este organizat pe diferite straturi de lectură, pentru a răspunde atât interesului specialiștilor cât și curiozității publicului cultural larg al anului 2025. Traseul expozițional acoperă parterul, întreg subsolul și sălile dinspre mare de la etaj, iar tematicile rezonează puternic cu spațiile care le acomodează, dezvoltând în același timp fire narative nevăzute care se întretaie prin tot edificiul. Astfel, expoziția permanentă din cadrul parterului este dedicată arhitecturii, stilului Art Nouveau și vieții culturale, sociale, urbane și politice din jurul Cazinoului, de-a lungul a mai mult de 100 de ani. Subsolul invită vizitatorii la o coborâre în adâncuri, unde se găsesc vestigii antice, epave de ambarcațiuni și legende cu orașe scufundate chiar în acest loc, peste care se suprapune lumea reală a viețuitoarelor subacvatice, aflată sub incidența unor fenomene fizice științific analizate. Etajul este destinat expozițiilor temporare, inaugurarea făcându-se cu o cercetare dedicată marelul inginer vizionar Anghel Saligny, care a avut o contribuție crucială în dezvoltarea portului Constanța și a falezei Cazinoului.
Designul sistemului expozițional se bazează pe trei principii fundamentale, definite în funcție de situl și de identitatea clădirii-gazdă.
În primul rând, instalațiile din expoziție respectă și pun în valoare clădirea-monument, arhitectura cazinoului fiind tratată ca un exponat în sine. Configurația și amplasarea mobilierului și a iluminatului expozițional, precum și traseele de vizitare accentuează logica spațială a clădirii, privilegiind cele mai bune perspective asupra elementelor arhitecturale iconice (ferestre-scoică, coloane, deschideri între spații, scări monumentale, vitralii etc.). Firma metalică de fațadă cu denuimirea de Cazino, pe care și-o amintesc mulți vizitatori ai litoralului de acum câteva decenii, este recuperată pentru spațiul dedicat recepției. Vitrinele din sala de la parter sunt orientate perpendicular pe fațada cu ferestre dinspre mare, pentru a lăsa liberă panorama asupra apei. Sistemul modular pentru expoziții temporare de la etaj este realizat dintr-un grid metalic transparent, pentru a asigura trecerea luminii naturale și o prezență cât mai discretă.
În al doilea rând, intervenția într-un context foarte ornamentat și decorat impune o ocupare fizică minimală a spațiului și o estetică minimalistă a sistemelor expoziționale, conținutul informațional fiind oferit în formate extinse multimedia (augmented reality, virtual reality, filme, animații, vizualizări 3D, experiențe imersive secvențiale, navigare în conținut digital etc.). Tot pentru o ocupare minimală a spațiului, biletele scrise de deținuții politic care au lucrat la reconstrucția cazinoului în anii ‘50, găsite odată cu decopertarea zidăriei, sunt expuse în firide existente în volumul coloanelor de la parter, în loc de vitrine dedicate.
În fine, pentru un public cultural larg, într-o clădire la malul mării, transferul de cunoaștere se face într-un mod experiențial și ludic, spre deosebire de muzeele tradiționale în care abordarea este una pedagogică, unidirecțională. În acest sens, în toate expozițiile sunt prevăzute instalații interactive, cu funcționalitate intuitivă, accesibilă și care asezonează cele mai serioase informații istorice sau științifice și cu câte o doză de umor.
EXPOZIȚII
_________
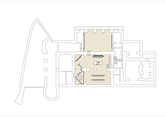
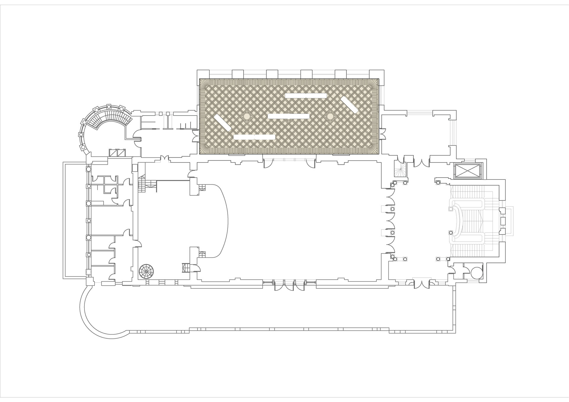
PARTER
Istoria Cazinoului
De la viziunea Regelui Carol I și talentul arhitectului Daniel Renard până la transformările prin care a trecut de-a lungul a mai mult de-un secol de viață, Cazinoul a fost martor la strălucirea și declinul unor lumi, rezistând războaielor și altor momente teribile, urmate de reparații și reinventări.
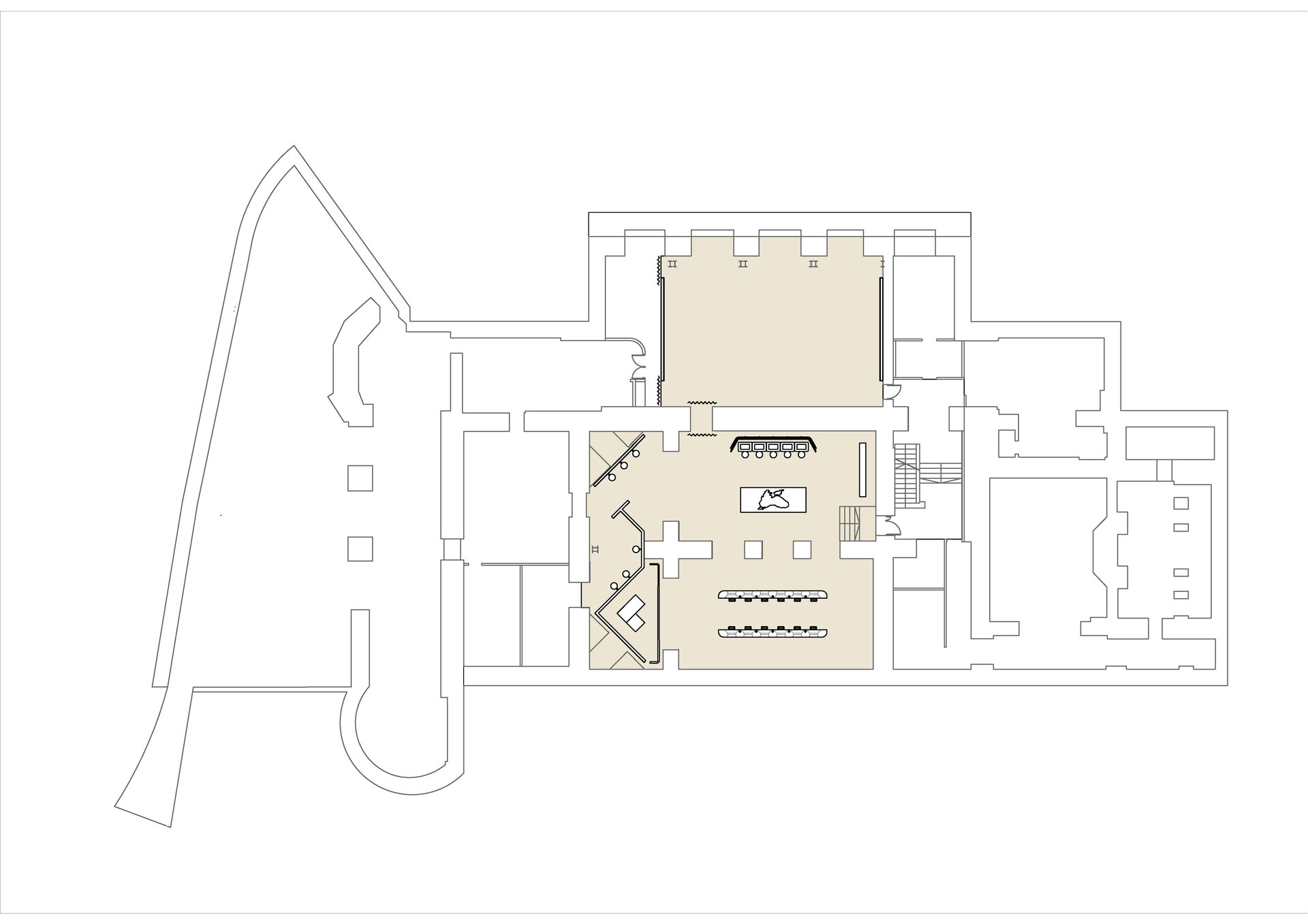
SUBSOL
Povești din adâncurile Mării Negre
Metamorfozele lui Ovidiu
Un spectacol imersiv despre creația lumii, zei, oameni, iubire, război și destin, inspirat din capodoperele Metamorfoze și Tristele: Scrisori din Pont ale marelui poet roman Ovidiu, exilat la Tomis.
În căutarea Arcei lui Noe
O explorare VR a epavelor din Marea Neagră: de la corăbii grecești și bizantine, la cargouri interbelice, modelate după descoperiri arheologice reale - unele conservate aproape integral sub apă.
Zeii care mișcă marea
O hartă simbolică a mării prezintă forțele zeităților antice Pontos, Fortuna sau Șarpele Glycon, care dezlănțuie furtuni, trăsnete și valuri, într-o experiență interactivă.
Adâncimile Mării Negre
Panoul de comandă face posibilă explorarea viații stratificate a Mării Negre, de la păsări vânătore pe luciul apei la epave antice din adâncuri, într-o călătorie subacvatică fascinantă.
Submarinul ARGO - O călătorie în adâncuri
O experiență multi-modală și multi-senzorială pentru explorarea ecosistemului complex al Mării Negre, descoperind cum viețuitoarele marine percep lumina, se protejează și se orientează.
Valul
O instalație interactivă simulează formarea valurilor din apă și vânt, pe fundalul hazardului mării, unde știința și credința în zei se întâlnesc în fața naturii neîmblânzite.
Costume de scafandru
O istorie scufundarilor subacvatice: de la clopotul de sticlă al lui Alexandru cel Mare cu 300 de ani înainte de Hristos, până la descoperirile comandorului Constantin Scarlat – fondatorul primei unități de scafandri de luptă în România – și participarea scafandrilor militari români la misiuni NATO de neutralizare a minelor în Marea Neagră astăzi.
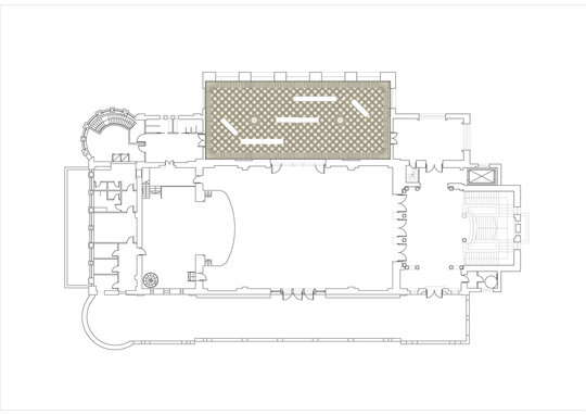
ETAJ
Anghel Saligny – Dincolo de pod
Expoziție temporară dedicată lui Anghel Saligny – un inginer vizionar care a avut o misiune clară: construirea unei rețele solide de infrastructură în slujba unui stat puternic și modern. Din acest sistem au făcut parte și ansamblul de poduri peste Dunăre, cel mai important fiind Podul Regele Carol I de la Cernavodă, și modernizarea Portului Constanța (silozuri, uzina electrică, Pavilionul regal, tunel, faruri, stația de petrol, rețea feroviară, cheiuri, clădiri portuare, faleza).