
Comentariul autorului:
Intenția proiectului este de a revitaliza Roșia Montană prin arhitectura și design-ul unui centru pentru vizitatori care integrează armonios conservarea patrimoniului cu principiile devoltării durabile. Respectând identitatea istorică a satului și introducând intervenții moderne, atent gândite, urmărim să creăm spații care susțin creșterea economică locală, stimulezează turismul responsabil și îmbunătățesc calitatea vieții locuitorilor.
Practica mineritului din Roșia Montană a modelat profund stilul de viață al comunității, influențând totul - de la rutina zilnică la portul tradițional. De-a lungul secolelor, extracția aurului și argintului a avut un impact major asupra structurii sociale și a activităților economice din zonă. Multe familii și-au câștigat existența din minerit, iar cultura locală era strâns legată de această industrie. Totuși, odată cu dispariția viabilității economice a mineritului, apare o nevoie tot mai mare de a identifica surse alternative și durabile de venit, care să conserve tradițiile locale și să ofere un viitor comunității.
Propunerea arhitecturală se concentrează pe revitalizarea țesutului ca element-cheie al micilor afaceri locale, integrând acest meșteșug tradițional în nevoile moderne ale satului. Țesutul, asemenea mineritului odinioară, este profund înrădăcinat în identitatea culturală a Roșiei Montane. Istoric, țesutul nu era doar o necesitate practică pentru familiile locale, ci și un mijloc de expresie și creativitate.
Această îndeletnicire tradițională reprezintă o legătură directă cu trecutul satului și oferă o oportunitate valoroasă de a reinventa meșteșugurile locale și de a stimula dezvoltarea economică.
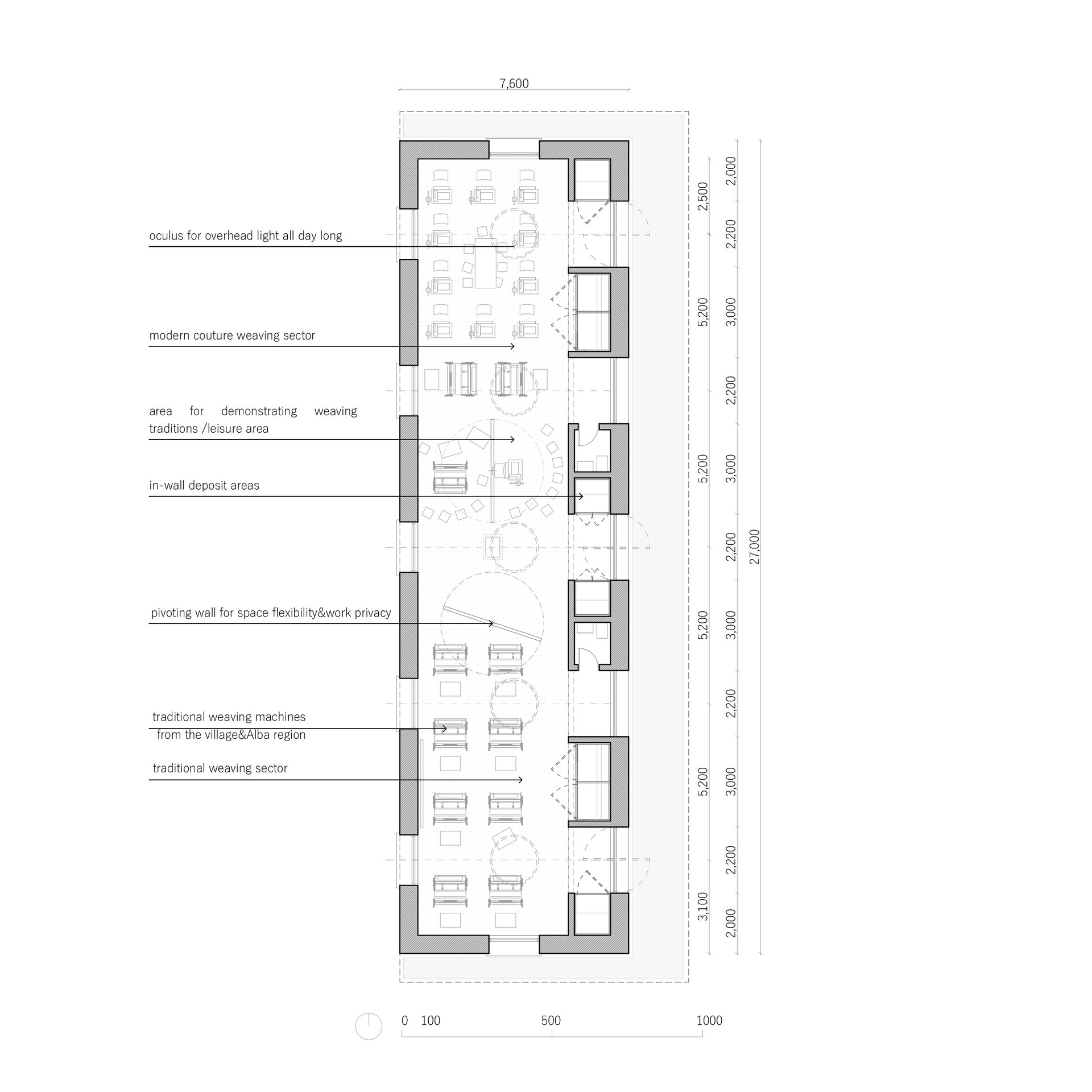
Centrul pentru vizitatori propus în Roșia Montană promovează reutilizarea adaptivă, educația și viața comunitară. Prin restaurare, nu prin înlocuire, proiectul păstrează identitatea arhitecturală a satului, oferindu-i totodată un scop nou.
Durabilitatea este un principiu central, prin utilizarea materialelor locale și naturale, precum lemnul, piatra și betonul de cânepă – produs local, din resurse regionale. Materialele recuperate din structuri abandonate sunt reintegrate, reducând risipa și întărind legătura dintre trecut și prezent.
Inima proiectului este centrul și atelierul de țesut, un spațiu în care meșteșugul tradițional este recuperat și împărtășit. Mai mult decât o clădire, centrul pentru vizitatori creează un sentiment de comunitate, oferindu-le localnicilor, artizanilor și vizitatorilor posibilitatea de a se conecta cu patrimoniul prin experiențe practice.
Prin prioritizarea restaurării, sustenabilității și revitalizării conduse de comunitate, acest proiect asigură că moștenirea culturală a Roșiei Montane va continua să trăiască și să evolueze ca parte activă a viitorului satului.