
Comentariul autorului:
Satul Corna este puternic afectat de o criză a depopulării specifice satelor de munte. De-a lungul istoriei, zona Roșiei Montane a atras interesele multor actori din cauza resurselor de metale prețioase ce se regăsesc în zonă. Totuși, protestele civile au făcut ca astăzi satul Corna să nu se afle sub un uriaș lac de decantare pentru cianuri ce ar fi eradicat orice urmă de viață. Din păcate, compania minieră ce a dorit demersul de exploatare hazardos a reușit pe parcursul a mai multor ani să achiziționeze o bună parte din proprietățile oamenilor zonei.
De asemenea, situl ce include Biserica Greco-Catolică și cimitirul aferent au fost cumpărată de aceeași entitate. Astăzi, Biserica este într-un stadiu de degradare ce poate deveni ireversibil în scurt timp: moșii satului au fost strămutați din locurile de veci lăsând în urmă doar numele pe cruce, iar gospodăriile aferente siturilor achiziționate au fost demolate. Rana este adâncă, iar întrebarea care iese la suprafață este dacă acest pacient mai poate fi salvat de la moarte.
Bisericile și cimitirele sunt în mentalul colectiv arhaic locuri ferite. Specificul sitului ales include Biserica Greco-Catolică și cimitirul și se află în directă vecinătate cu Biserica Ortodoxă (cea mai veche din zona Roșiei Montane, 1719). Astfel, terenul studiat face legătura între două locuri ferite, astăzi având valența de loc rău (casă demolată). Se propune convertirea locului, prin intervenția propusă, în loc bun ce face legătura între două locuri ferite.
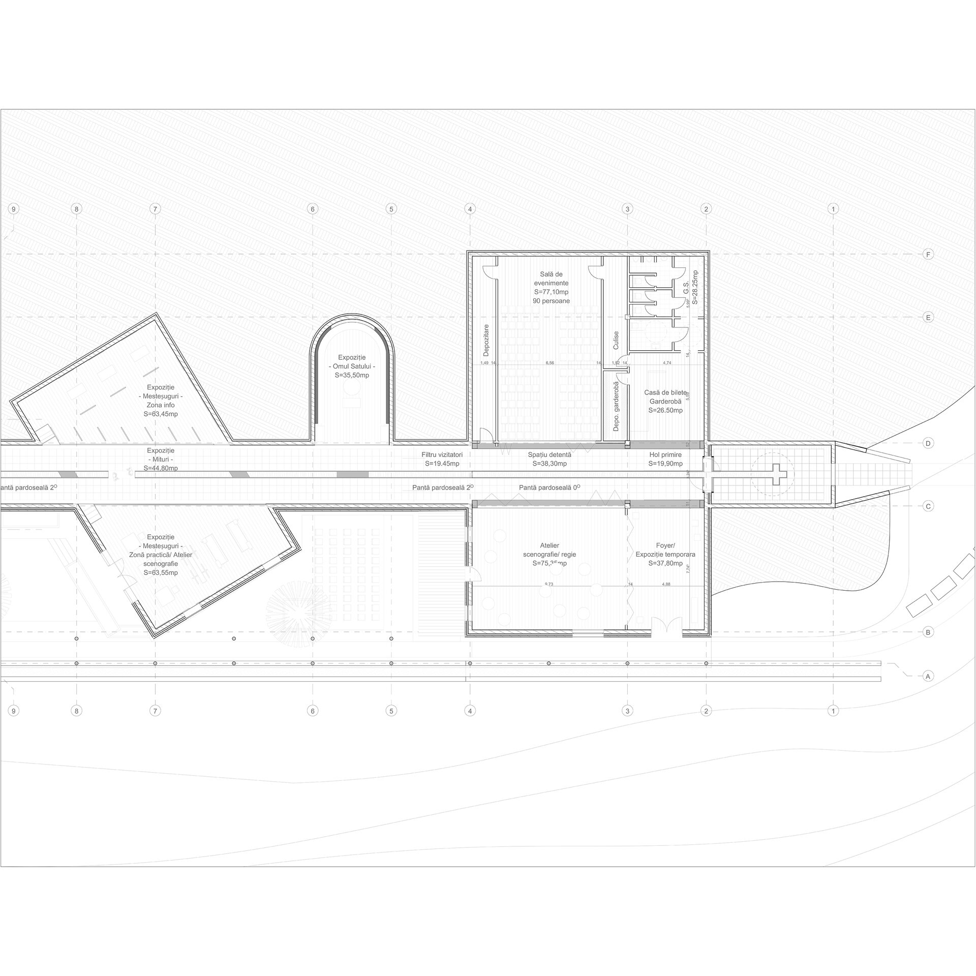
Una dintre observațiile din teren este perceperea pe secvențe a Bisericii de pe sit. Prin intervenția propusă, aceste secvențe, precum și traseul existent spre cimitir dinspre centrul satului ce se va desfășura la nivelul acoperișului verde, nu vor fi alterate. De asemenea, se propune relatarea în secvențe a poveștii Țării Moților, prin mai multe momente narative. Introducerea începe odată cu troița de la baza dealului și se continuă cu urcarea dealului, intersecția între memorial și biserică, aparatul de acces și primele două expoziții-omul satului și meșteșuguri. Intriga este reprezentată de prima instalație de pe firul central. Punctul culminant este reprezentat în două etape: instalația aurul între cele două expoziții antitetice (comuniștii și partizanii) și instalația hazardul care e reprezentată de o machetă a satului Corna scufundată sub apă ca o simulare a bazinului de cianură ce se află la intrarea expoziției de istorie recentă. Deznodământul este reprezentat de expoziția descoperirilor arheologice și de aparatul de ieșire cu perspectivă către centrul satului și Biserica Ortodoxă.
Un alt concept de specific local este tratarea edificiului ca o mină: coborârea sub pământ, precum și texturile alese (beton amprentat, metal, lemn). A fost propus și la nivelul pardoselii un bazin de apă, finisat cu corten, acest element având ca inspirație galița (șanț lateral cu apă specifică minelor). Elementul are incipitul în aparatul de acces unde ia forma unei cruci și se încheie odată cu ieșirea spre sat, urmărind firul narativ menționat mai sus.
În spațiul minei se produc „rupturi” ce generează perspective spre ambele Biserici. Inserția este atent proporționată pentru a nu obtura perspectivele existente către cele două Biserici. Pe traseul secvențial sunt gândite mai multe puncte de percepție graduale: un punct are vizibilitate spre Biserica Greco-Catolică (aparatul de acces - se observă la nivelul plafonului), un alt punct median are vizibilitate către ambele biserici (în partea de practică a meșteșugurilor - vedere printr-o fereastră către Biserica Ortodoxă, iar la nivelul plafonului cea Greco-Catolică), iar punctul de încheiere are perspectiva direcționată către Biserica Ortodoxă.
Totuși, propunerea nu s-a dorit a fi una strict comemorativă, ci și o oportunitate pentru comunitatea satului Corna, poate chiar a întregii comunități din Roșia. Spațiul bisericii greco-catolice va fi folosit pentru evenimente ce au nevoie de o acustică bună, dar s-a propus și o sală de spectacole și conferințe în relație cu biserica, precum și cu aparatul de intrare. S-a propus și o curte pentru spectacole în aer liber. De asemenea, parte din expoziția de meșteșuguri este și sala pentru practică unde pot fi produse decorurile necesare pentru spectacole. Aceasta este și în relație cu o curte dotată cu bancuri de lucru. Nu în ultimul rând, punctul gastronomic poate fi folosit atât pentru considerente economice, dar și pentru evenimente ale comunității, întrucât se află în relație cu ambele biserici și cimitirul.