
Comentariul autorului:
Milestone Team este un brand local de barbershop, conceput exclusiv pentru bărbați, care se extinde într-o nouă locație, într-o clădire socialistă, unde elementele brute ale spațiului se îmbină cu detaliile rafinate ale designului.
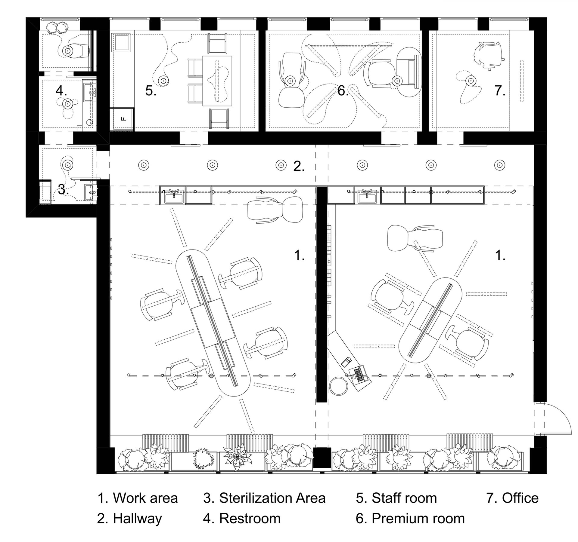
Cel mai relevant aspect al unui barbershop este chiar activitatea sa – spectacolul oferit de bărbierii profesioniști. Prin urmare, întregul spațiu a fost organizat astfel încât să pună în evidență zona de lucru, amplasată central în cele două încăperi. Oglinzile suspendate deasupra fiecărei mese subliniază procesul artistic, care poate fi admirat și de trecători.
Un contrast puternic se creează prin îmbinarea dintre asprimea materialelor existente și textura delicată a noilor elemente. Atmosfera tehnică generată de această asociere dintre suprafețele dure și cele fine ilustrează natura activității desfășurate aici.
Zona „din culise” este gândită strict din punct de vedere funcțional, folosind materiale simple, dar rezistente, precum OSB, care reușește totodată să aducă un plus de căldură spațiului.
Ce face acest proiect unic?
Punând accent pe activitatea propriu-zisă, designul interior a fost conceput într-un mod unic, în care zona de lucru este dispusă central, subliniind măiestria artistică a bărbierilor.
Spațiul beneficiază de o fereastră mare, care permite luminii naturale să pătrundă în cea mai mare parte a încăperii și oferă locul ideal pentru multe plante, aducând o notă naturală ce conferă prospețime și, totodată, protecție împotriva excesului de lumină. Descoperirea pardoselii, realizată în mozaic în perioada socialistă ca material brut, este o surpriză plăcută și creează un contrast frumos cu designul rafinat. Un alt aspect care a contribuit la buna organizare a spațiului a fost implicarea directă a proprietarului în proces, ceea ce a dus și la reducerea costurilor întregului proiect.