
Comentariul autorului:
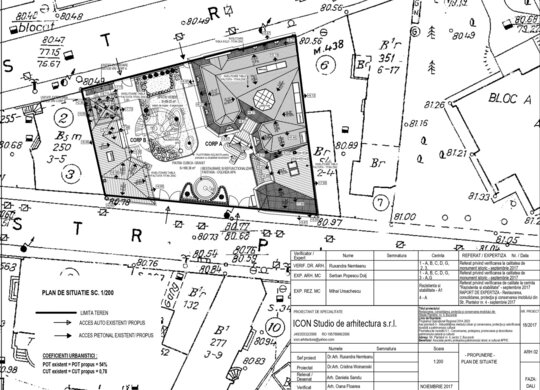
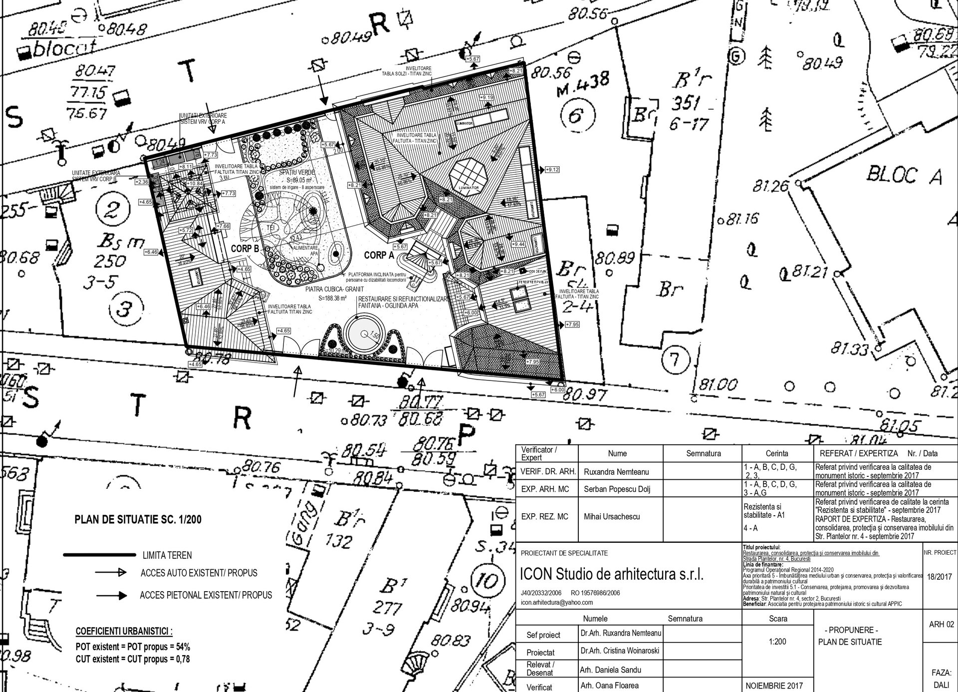
Imobilul din str. Plantelor nr. 4 din București, ce a aparținut căpitanului Dimitrie Pandele, este format din două corpuri de clădire, fosta locuință construită în 1891 și fostul grajd construit în 1897, și grădina. Imobilul face parte din ZP. nr. 37 – Sf. Ștefan și este clasat monument istoric clasa B.
Deoarece această intervenție de consolidare și restaurare, derulată în 2017-2024, a fost realizată cu ajutorul fondurilor europene, în prezent imobilul este deschis publicului, având funcțiunea de centru cultural. Stilistic, ansamblul se încadrează în eclectismul sfârșitului de secol XIX. În decursul timpului și mai ales după naționalizarea din anii ’50, imobilul a suferit mai multe intervenții improprii: la exterior, tencuieli de culoare ocru, zidirea serei, pierderea profilaturilor decorative, iar la interior, compartimentări abuzive, acoperirea cu zugrăveli a decorației originale a pereților și plafoanelor, montarea aparentă a instalațiilor, astfel încât în 2017 se afla într-o stare avansată de degradare.
Conform expertizei tehnice de rezistență, ambele corpuri au fost încadrate în clasa RS - I, necesitând operații delicate de consolidare: injectarea fisurilor cu material consolidant special, consolidarea fundațiilor, introducerea unor stâlpișori de beton în grosimea zidurilor structurale și turnarea unui planșeu de beton peste parter, structura de lemn a planșeului existent rămânând suport pentru plafoanele decorative.
Proiectul de arhitectură a propus mai multe demersuri în vederea protecției, conservării și restaurării monumentului. Pentru exterioare, s-a considerat necesară desființarea corpului parazitar de pe fațada dinspre grădină a fostei locuințe, unde la interior sondajele stratigrafice au dezvăluit existența unei picturi ce ducea cu gândul la o seră care ulterior a fost zidită. Deoarece nu s-au găsit desene cu plastica acestei sere, s-a ales realizarea unei sere pe structură metalică și sticlă, pe suprafața subsolului existent, având ca model de inspirație serele din epocă. S-a considerat utilă refacerea tâmplăriilor exterioare din lemn stratificat identice cu originalul. A fost necesară schimbarea învelitorilor existente cu învelitori din titan zinc de tip solzi pentru pantele abrupte ale fostei locuințe, păstrând forma și dimensiunile solzilor originali, și de tip tablă lisă fălțuită pentru pantele line ale corpului-locuință și corpului-anexă. Au fost refăcute identic lucarnele oculus de la fosta locuință și cele de la turnul fostului grajd. S-a refăcut sistemul pluvial pentru ambele corpuri.
Pentru toate tipurile de profilaturi și elemente decorative deteriorate s-au luat mostre care au fost curățate, s-au făcut matrițe, s-au turnat mulaje noi conforme cu originalele, fiind astfel reîntregită plastica fațadelor. Marchiza de la intrare, precum și grilajele gardurilor au fost recuperate, restaurate în atelier și remontate pe poziție. La interior, pentru corpul-locuință s-a păstrat planimetria originală în subsol, la parter pentru camerele de locuit și la mansardă. S-a urmărit păstrarea a cât mai mult din substanța originală a spațiilor și a componentelor artistice.
În cazul fostei locuințe, în urma sondajelor stratigrafice, a rezultat că pe lângă cele două plafoane pictate, vizibile dar degradate, în celelalte camere, straturile de vopsea ascundeau pictura originală în ulei atât la pereți, cât și la plafoane. Prin planimetria, plastica arhitecturală și bogăția componentelor artistice originale care au ieșit la iveală de sub straturile de vopsitorii comuniste și a șantierului de restaurare, astăzi ne aflăm în fața unui obiect arhitectural complet. Un întreg care, pe lângă o arhitectură tipologică a momentului, grupează un evantai al artelor decorative specifice epocii, foarte rar păstrat în totalitate ca în cazul de față: picturile în ulei semnate de autor ale pereților și plafoanelor, stucaturile plafoanelor, pictura ușilor interioare, arta vitraliilor, a bronzurilor, arta sobelor, arta feroneriei prin marchiza de intrare și gardurile de incintă. Toate aceste componente artistice au fost restaurate minuțios de specialiștii-restauratori în baza studiilor stratigrafice realizate în prealabil: pictura în ulei a pereților și plafoanelor, cea a ușilor pictate, stucomarmura, profilaturile din ipsos. Vitraliul original de la supralumina ferestrei fostei sufragerii a fost restaurat și reîntregit cu același model în partea inferioară. Sobele au fost consolidate și restaurate. De asemenea, au fost recuperate, reparate și restaurate cremoanele din fontă de la ferestre, clanțele și șildurile din bronz ale ușilor interioare.
Au fost refăcute și modernizate toate instalațiile. Spațiile de la subsol au fost evidențiate prin restaurarea bolțișoarelor existente, iar cele de la mansardă au fost tratate modern. Deoarece nu s-au păstrat corpuri de iluminat și mobilier originale, s-a optat pentru achiziționarea unor piese contemporane realizate de designeri renumiți. În grădină, au fost refăcute spațiile verzi conform planului din 1897 găsit în arhive, au fost sădite plante specifice grădinilor bucureștene de sfârșit de secol XIX și a fost refăcut havuzul identic cu originalul degradat.
Lucrările efectuate au constituit o operațiune complexă, care a grupat tehnici dificile de consolidare și bune practici de restaurare a tuturor componentelor artistice, reunind o paletă largă de echipe specializate: arhitecți, ingineri, constructori, restauratori de componente artistice. Toate operațiunile de intervenție și restaurare au condus la (re)descoperirea și recuperarea unui obiect arhitectural autentic, ce constituie o mărturie a unui altfel de model de locuire reprezentativ pentru burghezia mijlocie de la sfârșitul secolului al XIX-lea.