
Comentariul autorului:
O transformare drastica, din hala industriala in restaurant cald, primitor si vibrant. O provocare care ne-a facut placere si ne-a dat libertatea de a ne juca cu o paleta de culori dinamica si vioaie, care sa imbine elemente contemporane cu detalii care sa duca cu gandul la o gradina italiana.
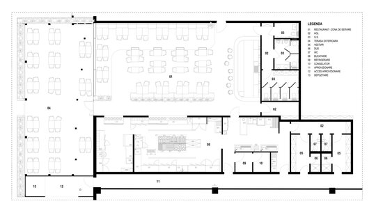
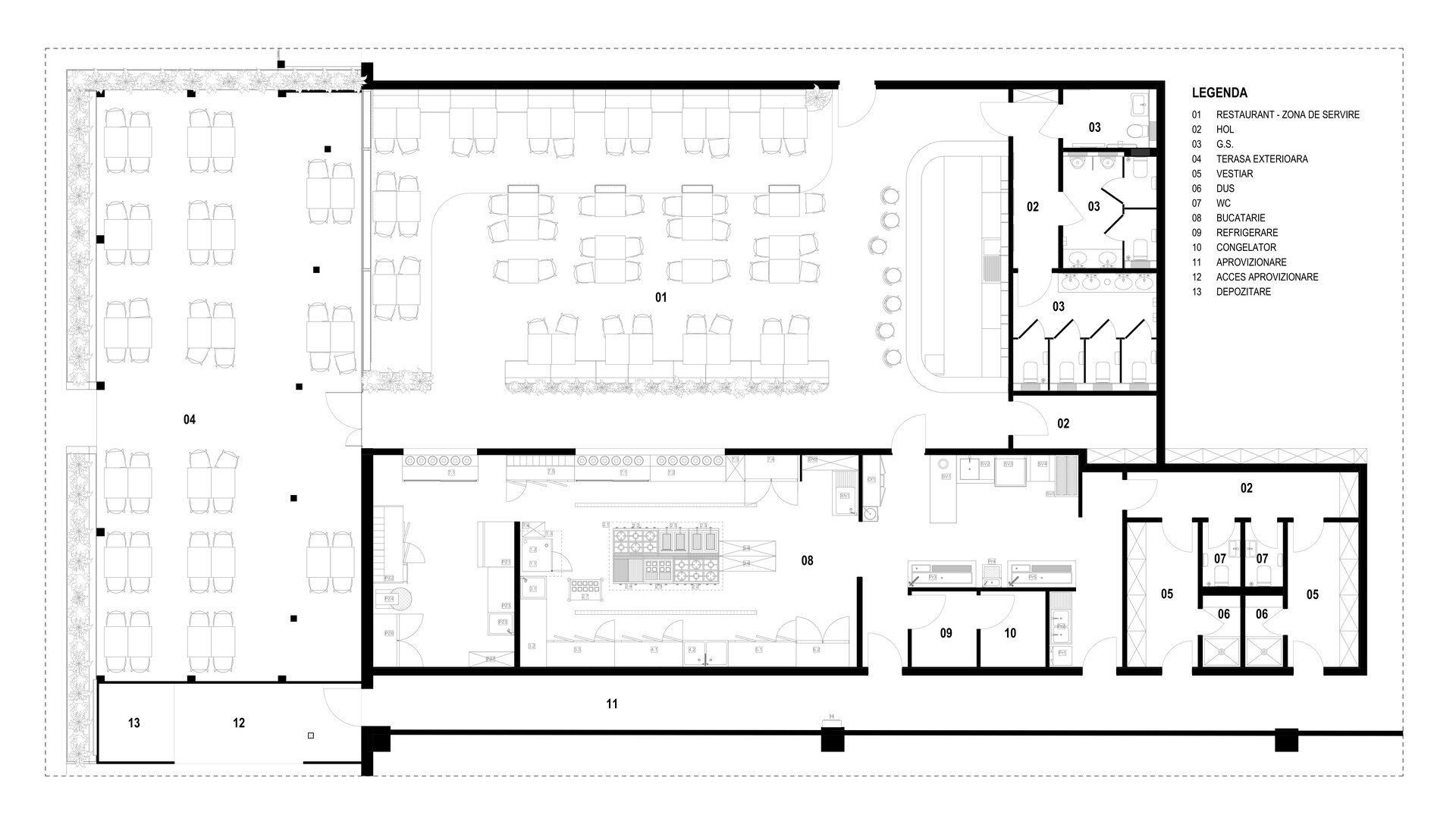
Transformarea a fost gandita in asa fel incat sa ofere o dinamica cat mai placuta restaurantului, cu optimizarea locurilor insa intr-un mod care nu creeaza disconfort utilizatorilor. Spatiile perimetrale au fost gandite incat sa ofere locuri cu mese care se pot alipi langa banchete fixe.
Iluminatul a pus in valoare un luminator deja existent in spatiu, care ne-a ajutat sa creem o ambianta luminoasa de gradina acoperita cu verdeata, oferind prin corpurile de iluminat folosite un contrast si o dimanica vizuala placuta pentru utilizator.
Utilizarea mai multor registre orizontale a ajutat la aducerea spatiului la o scara umana, avand in vedere ca s-a convertit un spatiu industrial in spatiu HO.RE.CA., iar ultimul registru, cel al corpurilor de iluminat si plante a fost coborat la 1/3 din inaltimea spatiului tocmai pentru a accentua aceasta scara si pentru a crea un confort natural in utilizarea spatiuliu.
Tonurile naturale, combinate cu culorile contrastante prună și verde, asigură o paletă de culori intensă, dar plăcută ochiului. Culorile oferă o notă plăcută brandingului și unicității tip "gradina interioara" a spațiului.
Din punct de vedere functional, spatiul a fost gandit in asa fel incat fiecare masa aleasă sa fie placuta pentru utilizare, sa existe perspective interesante de vizualizat in orice directie si pentru circulatiile principale sau de evacuare sa existe zone dedicate care nu se pot denatura din mobilarea restaurantului, repsectiv sa creeze o delimitare intre spatiile dedicate bucatariei si sala de mese.