
Comentariul autorului:
Hotelul Peakture Balvanyos este o extindere a hotelului Grand Hotel Balvanyos și a Spa-ului Grand Santerra Spa.
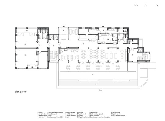
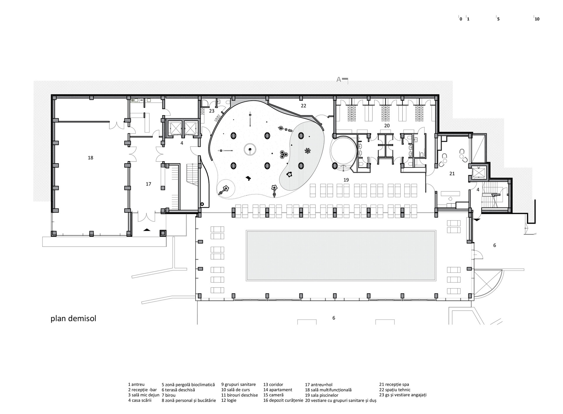
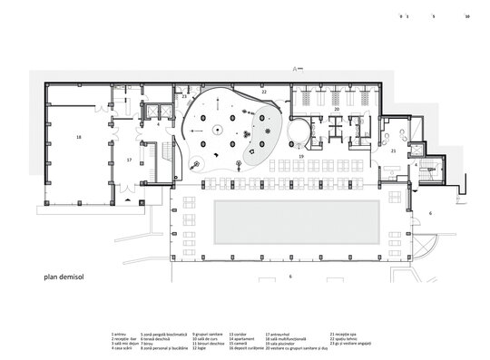
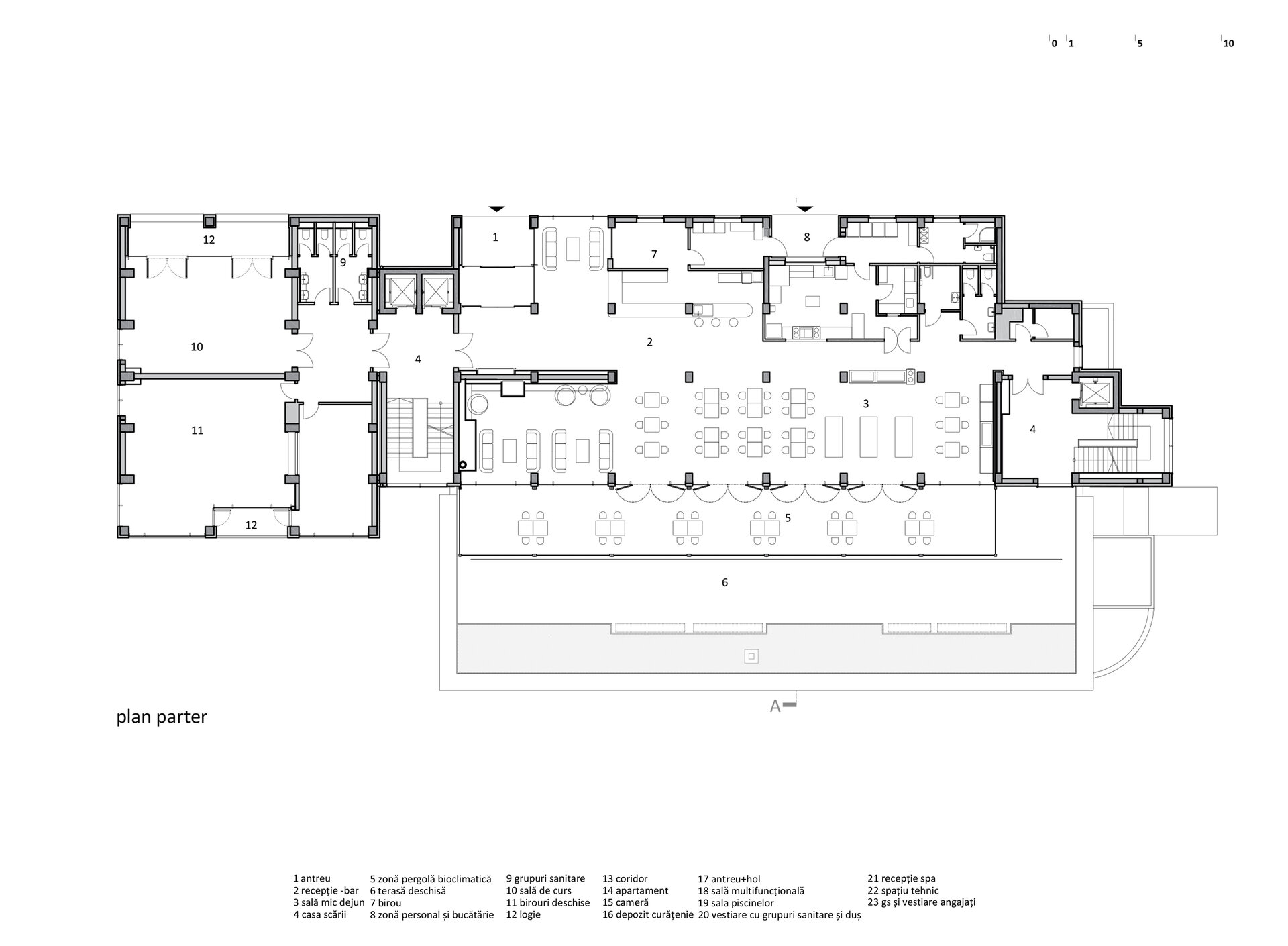
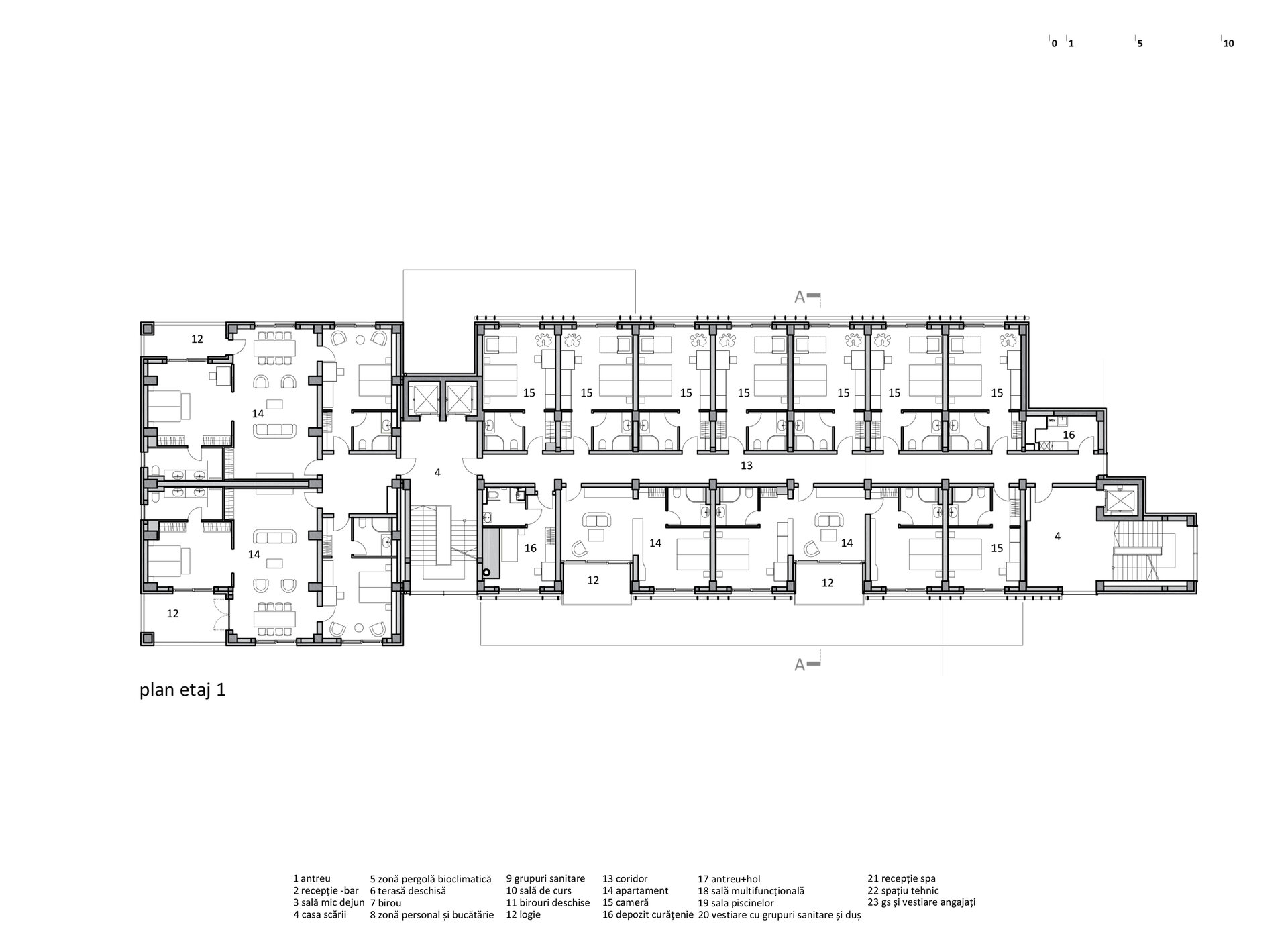
Conectat în subteran cu clădirile existente, Hotelul Peakture dispune la etajele superioare de 45 de unități de cazare în diferite tipologii (camere duble, suite, apartamente, camere pentru persoane cu dizabilități și apartamente de serviciu), două săli de conferințe și birouri administrative. Subsolul și demisolul clădirii sunt dedicate funcțiunii de spa, dotate cu o piscină semi-olimpică și o zonă pentru copii, cu jocuri acvatice, interactive. În cadrul spa-ului se mai regăsesc zone de relaxare și camere de tratament. Recepția, barul, lobby-ul și sala pentru micul dejun sunt situate la parter, într-un spațiu de tip open-plan, ce se deschide pe latura lungă către o terasă generoasă și o priveliște montană panoramică. În total, hotelul are o suprafață desfașurată de 6576mp distribuită pe 7 niveluri, două niveluri subterane și cinci supraterane.
Volumul urmărește și folosește panta terenului natural pentru a se conecta la clădirile existente și pentru a relaționa cu peisajul. Astfel, noua extindere, articulează proporțiile și gabaritele ansamblului prin relații volumetrice graduale ce mențin echilibrul și complexitatea compoziției în totalitatea ei. În relația cu peisajul, volumetria clădirii își are clar definite limitele, în spiritul modernist al hotelului original.
Cele șase tipologii ale unităților de cazare răspund necesităților diferite ale clienților complexului, oferind în același timp priveliști neîntrerupte către pădure și munte. Camerele cu orientare sudică beneficiază de terase iar cele orientate către nord au ferestre de dimensiuni generoase. Simple, cu o geometrie clară și culori deschise, interiorul lor susține discret priveliștea și frumusețea naturii.
În același spirit, la parterul clădirii, recepția, lobby-ul, barul și sala pentru micul dejun sunt caracterizate printr-o atmosferă calmă, realizată cu ajutorul culorilor și materialelor naturale, precum și de relația directă cu terasa principală ce lasă peisajul să domine impresiile. Pe acoperișul corpului secundar, la etajul 3, s-a amenajat o terasă rooftop-bar cu o mică oglindă de apă și care beneficiază de panorame spectaculoase de jur-împejur.
În zona de spa, sala piscinelor a fost special gândită să primească familii cu copii, clienți ai hotelului sau externi. De la recepție, circuitul te conduce prin vestiarele generoase și prin zona de dușuri către piscine și apoi către o terasa intimă la exterior. Piscina semi-olimpica pentru antrenament și relaxare și zona de splash-pad cu elemente interactive pentru copii sunt cele două puncte de atracție ale sălii, ele sunt marcate și separate în spațiu prin lumină și culoare - alb și albastru.