
Comentariul autorului:
Tema
Feminitate și transformare, perla, în aspectul său modest surprinde esența identității imaginate. O bijuterie ascunsă ce așteaptă să fie descoperită devine, simbolic, expresia unei destinații mereu în schimbare: o cafenea pe timp de zi mereu înlocuită de atmosfera intimă, târzie, a unui bar.
Spațiul
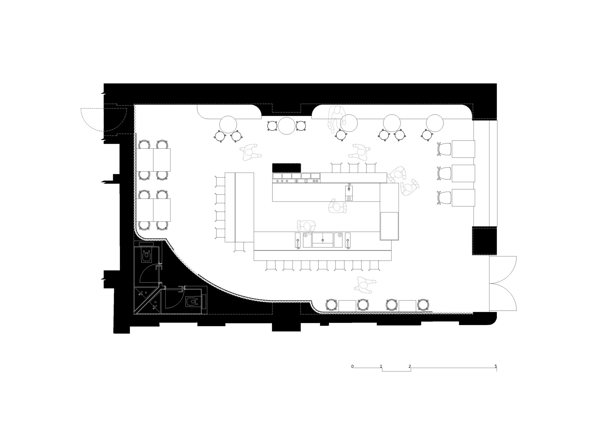
O încăpere simplă, rectangulară, în care singura orientare este dată de profunzimea fațadei dinspre bulevardul Regina Elisabeta și eleganța clădirii ce o găzduiește. O colonadă de stâlpi a unei perioade de consolidare perforează spațiul central, iar diametral opus accesului o legătură îngustă cu ceea ce urmează a fi bucătăria, prelungește adâncimea spațiului. Lumina își pierde din intensitate gradual și ierarhizează spațiul, alterându-i oarecum centralitatea.
Propunerea
Spațiul este definit de barul de tip central care, prin amplasarea sa, ordonează circulațiile. Încăperea inițială este remodelată pentru a compartimenta două grupuri sanitare și a reda spațiului centralitatea. Un perete-paravan de-a lungul intrării maschează unul dintre stâlpii de consolidare dar și “decupează” spațiul băilor. Stâlpul de consolidare al peretelui opus este “dizolvat” prin integrarea într-o nisă cu mobilier fix. Aceste gesturi oferă posibilitatea de a acomoda 45 de locuri de ședere iar diversitatea acestora permite experimentarea spațiului din ipostaze diferite: la bar sau în nișa peretelui, pe pervazul ferestrei sau la masa înaltă din spate, la tejgheaua din vecinătatea intrării sau pe bancheta din spate.
Barul central, prin înălțimea joasă, elimină bariera vizuală, devenind un catalizator pentru interacțiunea dintre personal și utilizatori dar și dintre utilizatorii din diferitele locuri de ședere, care astfel devin spectatori la modul de desfășurare a activităților, întreg spațiul devenind o scenă pentru interacțiune socială.
Paleta de materiale și texturi se bazează pe tensiunea dintre modest și rafinat. Învelișuri moi și tari dispuse într-o combinație de elemente clasice, minimaliste și industriale: barul monolitic din inox periat - rece la atingere dar capabil să reflecte luminile serii; furnirul de stejar – băițuit și finisat lucios, aduce căldura tonurilor clasice; tencuiala minerală - aplicată manual în tonuri de sidef, difuzează lumina pe pereții curbi, conferind fluiditate încăperii; pardoseala de microciment - creează un fundal neutru și continuu; draperii de pânză – cu falduri sinuoase, redau delicatețea eleganței atemporale în timp ce tavanul casetat din lamele rigide de feltru – conferă ritm și rotunjește întregul.
Spațiul capătă multiple profunzimi atunci când lumina întâlnește momentele meștesugite. Ziua, lumina soarelui se revarsă peste betonul brut, lemnul cald și metalul aproape mat - acestea sunt orele de contemplare matinală. Seara, spațiul trece prin propria metamorfoză: prezența industrială și rece a barului este atenuată de coregrafia ambientală a luminii; un display-wall luminos schimbă în tonuri aurii metalul iar decupajul perfect rotund din peretele-paravan revarsă lumină galbenă menită să simuleze o a doua fațadă a încăperii; Iluminatul este conceput asemenea unui mise-en-scène adaptabil și permite transformarea spațiului pentru a crea scenografii diferite.
Diversitatea spațială, diferitele grade de reflexie a materialelor, conversațiile luminii ambientale, mobilierul nefix atent selecționat ce întruchipează armonia dintre simplitate și calitate, compun cadrul unor atmosfere în care fiecare detaliu își spune propria poveste.